Eladó újszerű állapotú ház - Dabas
- INGYENES HIRDETÉS FELADÁS
Ingatlan adatai
- Eladó vagy kiadó:Eladó
- Település:Dabas
- Kategória:Ház
- Alkategória:Családi ház
- Alapterület:92 m2
- Telekterület:1039 m2
- Csere is:Nem
- Hirdető:Cég
- Élő videón megtekinthető:Nem
- Építés éve:1965
- Szobaszám:4
- Állapot:Újszerű, kitűnő
- Hány szintes az ingatlan:Földszintes
- Tetőtér:nincs megadva
- Komfortosság:nincs megadva
- Pince:nincs megadva
- Parkolási lehetőség:nincs megadva
- Fűtés:Elektromos
- Bútorozottság:nincs megadva
- Fényviszony:Jó
- Tájolás:DNY
- Kilátás:nincs megadva
- Internet:nincs megadva
- Klíma:nincs megadva
- Akadálymentesített:nincs megadva
- Energiatanúsítvány:nincs megadva
- Villany:Van
- Víz:Van
- Gáz:Telken belül
- Csatorna:Van
- Kapcsolatfelvétel

Szabóné Kristóf Beáta
+36-(70)-625-1223
Mondd meg a hirdetőnek, hogy a megveszLAK-on találtad a hirdetést.
Referencia szám: HZ096059
Hitel ajánlatok
Ingatlan hirdetés leírása
Eladó ház, Dabas, Eladó újszerű állapotú ház - Dabas
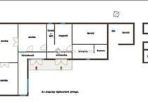
Dabas-Sári központi részén, eladóvá vált egy 1039 nm alapterületű telken elhelyezkedő 92 nm -es családi ház. Az 1960-ban vályogból épült ingatlan, szőlős kerttel várja új tulajdonosát. Felosztása: konyha+étkező, nappali, 3 szoba és egy fürdő+ wc. Az épület mellett található tárolóból akár egy harmadik szoba is kialakítható, ezen kívül plusz tároló és egy füstölő is található-fűtés: elektromos radiátoros hőleadás- meleg víz: villanybojler- beton alap- fedett terasz- tárolók- füstölő- minden ablakon redőny- központi elhelyezkedés- fúrt kútBudapest autóval, 30 percen belül elérhető, volánbusszal a Népliget 40-45 perc. Bölcsőde, óvoda, gimnázium, egészségügyi központ, szépségszalon. . , És minden igényt kielégítő vásárlási lehetőségek adottak! Ez az, amit keresett? Ne habozzon, a hét bármely napján elérhető vagyok telefonon és e-mailen is! Csak bátran, legyen Öné a lehetőség, hogy kihozza belőle azt, amit megálmodott! Amennyiben ajánlatom megfelelne az elvárásainak, de nem rendelkezik a kiválasztott ingatlan vételárával, a Credipass hitelügyintéző munkatársai díjmentesen biztosítják a legkedvezőbb, személyre szabott hitelkonstrukciót a kedves vevők számára. Keressen bizalommal a hét bármely napján! FIX 3% lakáshitelre megvehető
Tetszett ez az eladó Dabasi újszerű állapotú 4 szobás családi ház? Hívd fel a hirdetőt most, és tudj meg mindent erről az eladó családi házról! Ha gondolod nézelődj tovább az eladó ház Dabas oldal hirdetései között. Ennek az eladó háznak az ára 54900000 Ft és mivel az alapterülete 92 négyzetméter, ezért az átlagos négyzetméterára 596739 HUF/m2.
Az eladó házak menüpontban további hirdetések között is böngészhetsz. Ha van kedved, akkor böngészhetsz a Szabóné Kristóf Beáta összes hirdetése között, vagy akár a/az Duna House Dabas összes hirdetése között is.

