Eladó új építésű ház - Dabas
- INGYENES HIRDETÉS FELADÁS
Ingatlan adatai
- Feladva:86 napja a megveszLAK-on
- Eladó vagy kiadó:Eladó
- Település:Dabas
- Kategória:Ház
- Alkategória:Családi ház
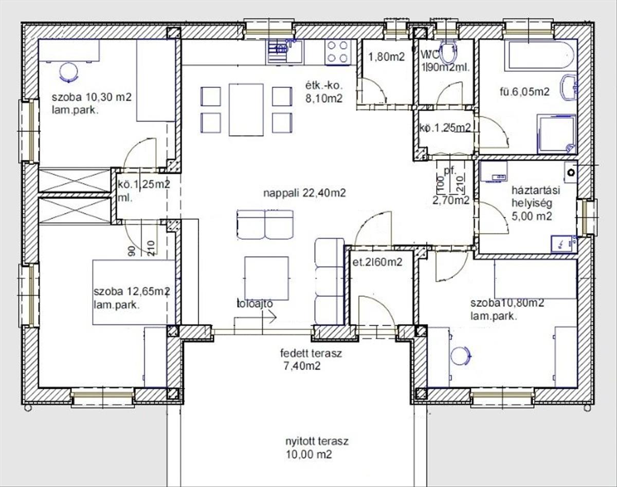
- Alapterület:87 m2
- Telekterület:728 m2
- Csere is:Nem
- Hirdető:Cég
- Élő videón megtekinthető:Nem
- Építés éve:2025
- Szobaszám:3
- Állapot:Új építésű
- Hány szintes az ingatlan:Földszintes
- Tetőtér:Nem beépíthető
- Komfortosság:nincs megadva
- Pince:nincs megadva
- Parkolási lehetőség:nincs megadva
- Fűtés:Gáz (cirko)
- Bútorozottság:Bútorozatlan
- Fényviszony:Jó
- Tájolás:D
- Kilátás:nincs megadva
- Internet:nincs megadva
- Klíma:Van
- Akadálymentesített:Nem akadálymentesített
- Energiatanúsítvány:nincs megadva
- Villany:Van
- Víz:nincs megadva
- Gáz:Van
- Csatorna:nincs megadva
- Kapcsolatfelvétel
Kecskés Zoltán
+36-(70)-772-2430
Mondd meg a hirdetőnek, hogy a megveszLAK-on találtad a hirdetést.
Hitel ajánlatok
Ingatlan hirdetés leírása
Eladó egy modern, energiatakarékos családi ház Dabason, nyugod...
Eladó egy modern, energiatakarékos családi ház Dabason, nyugodt környezetben!
A 87 nm alapterületű, praktikus elrendezésű, 3 szobás, Leier téglából épült otthon várja új tulajdonosát, 728 nm -es, körbekerített, rendezett telekkel.
Az ingatlan korszerű műszaki tartalommal készült:
•hőszigetelt falazat
•padlófűtés az egész házban
•4 klíma
•modern, gazdaságos Vaillant gázkazán
•igényes burkolatok és beltéri ajtók
•viacolorral burkolt beálló
•esztétikus, masszív utcafronti kerítés
•az ablakokon redőny, a nappalin elektromos redőny
Az otthon egyik különleges előnye a saját fúrt kút, erről üzemel a ház és amely jelentősen csökkenti a vízdíjat, továbbá kiváló megoldás öntözésre, kertfenntartásra – így a telek gondozása költséghatékonyan megoldható.
A zárt emésztőrendszer modern, biztonságos és ellenőrizhető megoldás, amely függetlenséget biztosít a közcsatorna-hálózattól. Az utcában a vízközmű elérhető.
A falakon 10 cm szigetelés, a könnyűszerkezetes födémen 35 cm szigetelés van. a házban 3x16 a áram áll rendelkezésre.
Ez az ingatlan ideális választás mindazoknak, akik egy korszerű, alacsony fenntartású otthont keresnek nyugodt környezetben.
Ha fontos Önnek a gazdaságosság, a modern komfort és a saját kert szabadsága, ezt a házat érdemes megnézni! FIX 3% lakáshitelre megvehető
Tetszett ez az eladó Dabasi új építésű 3 szobás családi ház? Hívd fel a hirdetőt most, és tudj meg mindent erről az eladó családi házról! Ha gondolod nézelődj tovább az eladó ház Dabas oldal hirdetései között. Ennek az eladó háznak az ára 92500000 Ft és mivel az alapterülete 87 négyzetméter, ezért az átlagos négyzetméterára 1063218 HUF/m2.
Az eladó házak menüpontban további hirdetések között is böngészhetsz. Ha van kedved, akkor böngészhetsz a Kecskés Zoltán összes hirdetése között, vagy akár a/az Nagy Ingatlan összes hirdetése között is.

