Eladó jó állapotú ház - Dabas
- INGYENES HIRDETÉS FELADÁS
Ingatlan adatai
- Eladó vagy kiadó:Eladó
- Település:Dabas
- Kategória:Ház
- Alkategória:Családi ház
- Alapterület:240 m2
- Telekterület:1158 m2
- Csere is:Nem
- Hirdető:Cég
- Élő videón megtekinthető:Nem
- Építés éve:1993
- Szobaszám:5
- Állapot:Jó állapotú
- Hány szintes az ingatlan:3 szintes
- Tetőtér:nincs megadva
- Komfortosság:nincs megadva
- Pince:Nincs
- Parkolási lehetőség:nincs megadva
- Fűtés:Gáz
- Bútorozottság:Részben bútorozott
- Fényviszony:nincs megadva
- Tájolás:nincs megadva
- Kilátás:nincs megadva
- Internet:Optikai
- Klíma:Van
- Akadálymentesített:Nem akadálymentesített
- Energiatanúsítvány:nincs megadva
- Villany:Van
- Víz:Van
- Gáz:Van
- Csatorna:Van
- Rezsi:50 000 Ft
- Kapcsolatfelvétel
Burkáné Balázs Eszter
+36-(30)-325-1293
Mondd meg a hirdetőnek, hogy a megveszLAK-on találtad a hirdetést.
Hitel ajánlatok
Ingatlan hirdetés leírása
Eladó kétgenerációs családi ház nagy telekkel, csendes környéken
Eladó kétgenerációs családi ház!
Budapesttől elérhető közelségben, jó környéken kínálunk megvételre egy 1993-ban épült, 1158m²-es telken álló, 2 külön bejáratú lakrésszel rendelkező családi házat.
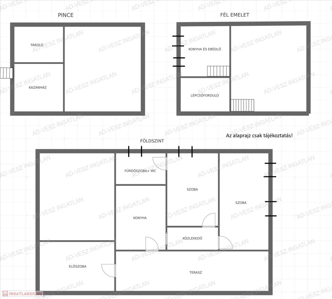
Alsó szint (külön bejárattal, befejezést igényel):
- 2 szoba, konyha, fürdő+WC
- belső befejezést igényel (burkolatok, fürdőszoba)
- ideális kiadásra, vendégeknek vagy többgenerációs családnak
Felső szint (szinteltolásos, felújított):
- tágas előszoba
- nagy konyha + étkező
- nappali
- 2 hálószoba + dolgozósarok
- fürdő és külön WC
- legfelső szinten egy különálló, nagy hálószoba
- teljes felújításon esett át (nyílászárók kivételével)
Műszaki adatok:
- beton alap, tégla falazat, cseréptető
- közművesített ingatlan
- nyílászárók: hőszigetelt fa és részben műanyag (cseréjük folyamatban van)
- padlózat: laminált padló és járólap
- fűtés: központi gáz, klíma, konvektor és infra panel
Telek adottságai:
- két utcáról bejárható
- nagy kocsibeálló + fedett parkoló
- medence helye már kibetonozva
- fúrt kút
- pince kb. 30M²
- gyümölcsfák, tyúkól, állattartásra is alkalmas
Előnyök:
- két különálló lakrész → több generációnak vagy befektetésnek is ideális
- csendes, fiatalos szomszédság, barátságos közeg, jó infrastruktúra és közlekedés
- a felújítás, korszerüsítés folyamatosan zajlik, így már az alsó szinten is új nyílászárók és bejárati ajtó van
Ha egy tágas, sok lehetőséget kínáló ingatlant keres családja vagy befektetés céljára, akkor ne hagyja ki ezt a lehetőséget, keressen bizalommal, akár hétvégén is!
Amennyiben az ingatlan felkeltette érdeklődését, kérem, hívjon bizalommal!
Burkáné Balázs Eszter
+36-30-3251293
Hitelügyintéző kollégánk államilag támogatott kamatozású hitelkonstrukciókkal, és CSOK teljeskörű ügyintézéssel áll rendelkezésére térítésmentesen!
Az adásvételi szerződés megkötéséhez igény szerint megbízható ügyvédi közreműködést biztosítunk. FIX 3% lakáshitelre megvehető
Tetszett ez az eladó Dabasi jó állapotú 5 szobás családi ház? Hívd fel a hirdetőt most, és tudj meg mindent erről az eladó családi házról! Ha gondolod nézelődj tovább az eladó ház Dabas oldal hirdetései között. Ennek az eladó háznak az ára 98000000 Ft és mivel az alapterülete 240 négyzetméter, ezért az átlagos négyzetméterára 408333 HUF/m2.
Az eladó házak menüpontban további hirdetések között is böngészhetsz. Ha van kedved, akkor böngészhetsz a Burkáné Balázs Eszter összes hirdetése között, vagy akár a/az AD-VESZ INGATLAN összes hirdetése között is.

