Eladó új építésű ház - Dánszentmiklós
- INGYENES HIRDETÉS FELADÁS
Ingatlan adatai
- Eladó vagy kiadó:Eladó
- Település:Dánszentmiklós
- Kategória:Ház
- Alkategória:Családi ház
- Alapterület:65 m2
- Telekterület:400 m2
- Csere is:Nem
- Hirdető:Cég
- Élő videón megtekinthető:Nem
- Építés éve:2026
- Szobaszám:3
- Állapot:Új építésű
- Hány szintes az ingatlan:Földszintes
- Tetőtér:nincs megadva
- Komfortosság:nincs megadva
- Pince:nincs megadva
- Parkolási lehetőség:Udvaron
- Fűtés:Hőszivattyús
- Bútorozottság:nincs megadva
- Fényviszony:Napfényes
- Tájolás:DNY
- Kilátás:nincs megadva
- Internet:nincs megadva
- Klíma:nincs megadva
- Akadálymentesített:nincs megadva
- Energiatanúsítvány:nincs megadva
- Villany:Van
- Víz:Van
- Gáz:Nincs
- Csatorna:Van
- Kapcsolatfelvétel

Turcsányi István
+36-(30)-263-3889
Mondd meg a hirdetőnek, hogy a megveszLAK-on találtad a hirdetést.
Referencia szám: HZ028633
Hitel ajánlatok
Ingatlan hirdetés leírása
Eladó ház, Dánszentmiklós
Minőség modern technológia kiváló lokáció minden egy HELYEN!
OTTHON start program IGÉNYELHETŐ!
Ha egy valóban igényesen kivitelezett, korszerű otthont keres, most megtalálta!
Több éves, megbízható együttműködés egy bevált kivitelezővel referencia munkák megtekinthetők!
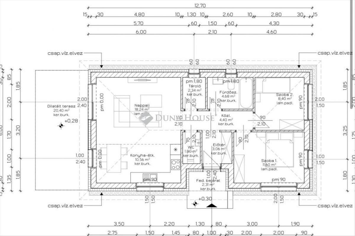
Ingatlan ADATAI
65 m² lakótér
400 m² telek
20, 4 m² nyitott terasz
Elrendezés:
2 külön nyíló szoba
nappali + konyha + étkező
fürdőszoba
külön WC
tároló
előtér
még most a saját ízlésére SZABHATJA!
Hidegburkolat: 10. 000 Ft/m²-ig választható
melegburkolat: 6. 000 Ft/m²-ig választható
beltéri ajtók: 100. 000 Ft/db-ig
szaniterek: 450. 000 Ft-ig
műszaki TARTALOM
30 cm Porotherm falazat
15 cm homlokzati szigetelés
8 cm xps lábazati szigetelés
Leier betoncserép
10 cm Ytong válaszfalak
Silka 30 hanggátló fal a lakások között
MODERN GÉPÉSZET
padlófűtés minden helyiségben
6 kW-os Mitsubishi hőszivattyú
3, 5 kW inverteres Gree klíma
EXTRÁK
elektromos kapu kiállás
napelem előkészítés
3×20 a + 1×16 a (h tarifa)
LOKÁCIÓ
iskola, óvoda, bolt a közelben
Budapest 30 perc autóval (M4)
Nyugati pályaudvar 55 perc vonattal
Teljes körű ügyintézés egy helyen!
Hitel, CSOK / támogatások, ügyvédi háttér biztosított.
Turcsanyi Istvan +36302633889 FIX 3% lakáshitelre megvehető
Tetszett ez az eladó Dánszentmiklósi új építésű 3 szobás családi ház? Hívd fel a hirdetőt most, és tudj meg mindent erről az eladó családi házról! Ha gondolod nézelődj tovább az eladó ház Dánszentmiklós oldal hirdetései között. Ennek az eladó háznak az ára 52000000 Ft és mivel az alapterülete 65 négyzetméter, ezért az átlagos négyzetméterára 800000 HUF/m2.
Az eladó házak menüpontban további hirdetések között is böngészhetsz. Ha van kedved, akkor böngészhetsz a Turcsányi István összes hirdetése között, vagy akár a/az Duna House Home Center összes hirdetése között is.

