Eladó újszerű állapotú ház - Délegyháza
- INGYENES HIRDETÉS FELADÁS
Ingatlan adatai
- Eladó vagy kiadó:Eladó
- Település:Délegyháza
- Kategória:Ház
- Alkategória:Családi ház
- Alapterület:135 m2
- Telekterület:950 m2
- Csere is:Nem
- Hirdető:Cég
- Élő videón megtekinthető:Nem
- Építés éve:2003
- Szobaszám:3 + 1 fél
- Állapot:Újszerű, kitűnő
- Hány szintes az ingatlan:Földszintes
- Tetőtér:nincs megadva
- Komfortosság:nincs megadva
- Pince:nincs megadva
- Parkolási lehetőség:Udvaron
- Fűtés:Egyéb
- Bútorozottság:nincs megadva
- Fényviszony:Napfényes
- Tájolás:nincs megadva
- Kilátás:nincs megadva
- Internet:nincs megadva
- Klíma:Van
- Akadálymentesített:nincs megadva
- Energiatanúsítvány:nincs megadva
- Villany:nincs megadva
- Víz:nincs megadva
- Gáz:nincs megadva
- Csatorna:nincs megadva
- Kapcsolatfelvétel

Hackenberger Rita
+36-(70)-423-8794
Mondd meg a hirdetőnek, hogy a megveszLAK-on találtad a hirdetést.
Referencia szám: M326249
Hitel ajánlatok
Ingatlan hirdetés leírása
Eladó Ház, Délegyháza
Eladó álomotthon délegyházán a tavak KÖZELÉBEN! ! !
Eladóvá vált egy igazi álomotthon Pest vármegyében, Budapesttől 30 percre, Délegyházán a tavak közelében!
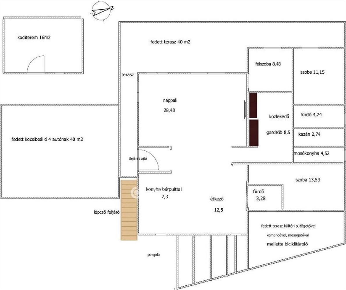
Egy minden igényt kielégítő nappali + 3 szobás, 135 m2-es családi fészek várja új lakóit.
Az ingatlan 950 m2-es telken helyezkedik el, délnyugati fekvésű. Igényes kivitelezés, átgondolt tervezés jellemzi, finom eleganciával ötvözött praktikum.
Az ingatlanba belépve egy tágas, széles előszoba tárul elénk, ahonnan nyílnak a helyiségek. Hatalmas, modern, minden igényt kielégítő konyhai gépekkel szerelt konyha bárpulttal és nagy étkezőasztallal, tágas, modern nappali hófehér dekorfallal és szekrényekkel kijárattal a teraszra, 3 szoba, beépített szekrények, két fürdőszoba, mosókonyha, amely gardróbszoba is, illetve egy pazar árnyékolható, intim környezetet biztosító fedett terasz nyújtja a kényelmet és a nyugalmat. a pezsgő élet helyszíne pedig a ház előtti részben található pergolás, nagyrészt fedett kerti sütögető és az ehhez tartozó minden igényt kielégítő kemence, mosogató, előkészítő pultok, nyolc személyes kerti bútor. Mellette szintén fedett külön tárolórész a bicikliknek, supnak, motornak, amelyek a környék felfedezésére, a mintegy 50 méterre található tavak kihasználására szuper lehetőséget kínálnak. Ha pedig a napi kondíciónkat szeretnénk karban tartani, és egyéb sportra vágyunk csak a hátsó kertig kell mennünk, ahol egy külön 16 m2 es, 32 m2-es betonalapú szigetelt faházban egy modern, szinte új gépekkel felszerelt kondi terem vár minket. Ennek betonozott terasza alkalmas lehet jakuzzi, vagy medence felállítására is, de a hátsó kert is bőven ad lehetőséget akár nagyobb medence, vagy gyermekeknek játszótér kialakítására, ehhez a több helyen kialakított kerti csap is nagy segítség. Gyönyörű zöld tujákkal, pampafüvekkel határolt a ház és a telek, a kertben jónéhány termő gyümölcsfa rügyezik.
A kényelmünket, az otthon melegét padlófűtés és 5 klíma biztosítja. a műanyag nyílászárók szúnyoghálóval és aluminium redőnyökkel szereltek. Kaputelefon, elektromos kapu, Sion security riasztó rendszer és védelem, fedett minimum 6 autó beállására lehetőséget biztosító kocsibeálló ebből 4 fedett, a padlás, tetőtér pedig további bővítési lehetőségre is adott.
Az ingatlan minden beépített bútorzattal, géppel eladó, kivétel a mosó és szárítógép, a kávéfőző. a kerti bútorok és a kondi terem összes gépe is az ár részét képezi! ! !
A közlekedés Budapestre busszal, vonattal egyszerűen elérhető, az infrastruktúra kiváló. Dunavarsány, Dunaharaszti, Taksony közelsége még szélesíti az egyébként helyben is elérhető remek lokációt, kitűnő választás hosszútávon egy akár három-négy gyermekes családnak is igazi otthoni környezetet biztosítva a mindennapokra, az adottságaiban, elhelyezkedésében rejlő állandó szabadságon vagyunk érzéssel megfűszerezve.
Az ingatlan 1/1 tulajdonú, hitelezhető! Az Otp Ingatlanpont Irodánk teljeskörü hitelfelvételi ügyintézéssel, tanácsadással áll az érdeklődő rendelkezésére, valamint szakértő, ingatlanjogászi ügyvédi hátteret is biztosítunk az adásvételhez. Ne habozzon sokáig, tekintse meg az ingatlant, rugalmasan állunk a nap bármely szakában rendelkezésére az egyeztetés tekintetében.
Hívjon bizalommal, hivatkozzon az alábbi referencia számra: m326249 Hitel.hu - Hasonlítsa össze a bankok lakáshitel ajánlatait
Tetszett ez az eladó Délegyházai újszerű állapotú 3 egész és 1 fél szobás családi ház? Hívd fel a hirdetőt most, és tudj meg mindent erről az eladó családi házról! Ha gondolod nézelődj tovább az eladó ház Délegyháza oldal hirdetései között. Ennek az eladó háznak az ára 157000000 Ft és mivel az alapterülete 135 négyzetméter, ezért az átlagos négyzetméterára 1162963 HUF/m2.
Az eladó házak menüpontban további hirdetések között is böngészhetsz. Ha van kedved, akkor böngészhetsz a Hackenberger Rita összes hirdetése között, vagy akár a/az OTPip Szigetszentmiklós Tököli út 19.B - OTP Ingatlanpont Iroda összes hirdetése között is.

