Eladó új építésű ház Diósd
| Kedvencbe | Megosztás | Árfigyelő |
| Kedvezményes lakáshitel ajánlatok | ||
| 199 000 000 HUF | ||
Ingatlan adatai
- Eladó vagy kiadó:Eladó
- Település:Diósd
- Kategória:Ház
- Alkategória:Családi ház
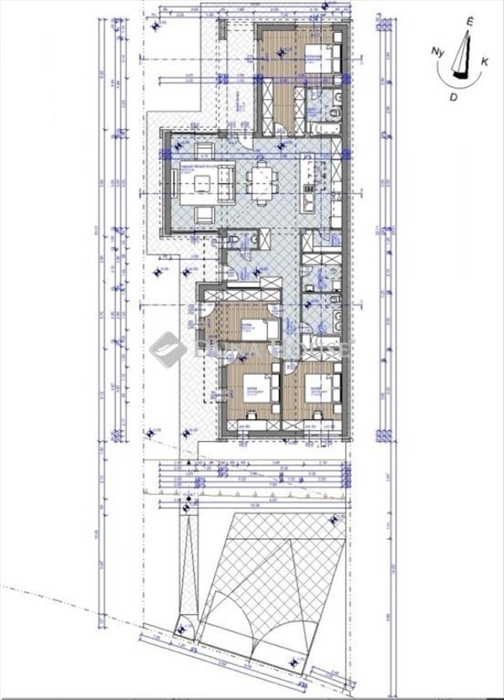
- Alapterület:150 m2
- Telekterület:721 m2
- Csere is:Nem
- Hirdető:Cég
- Élő videón megtekinthető:Nem
- Építés éve:2025
- Szobaszám:5
- Állapot:Új építésű
- Hány szintes az ingatlan:Földszintes
- Tetőtér:nincs megadva
- Komfortosság:nincs megadva
- Parkolási lehetőség:nincs megadva
- Fűtés:Hőszivattyús
- Bútorozottság:nincs megadva
- Fényviszony:Napfényes
- Tájolás:DNY
- Kilátás:nincs megadva
- Internet:nincs megadva
- Akadálymentesített:nincs megadva
- Energiatanúsítvány:A+
- Villany:nincs megadva
- Víz:nincs megadva
- Gáz:nincs megadva
- Csatorna:nincs megadva
- Üzenetküldés
- Hívás

Referencia szám: HZ011887

Hitel ajánlat
Ingatlan hirdetés leírása
Eladó ház, Diósd, Eladó új építésű ház - Diósd
Azonnal költözhető, kulcsrakész új építésű ház diósdon az árpád-házi lakóparkban!Nappali és a konyha hangulatos 3, 7 méteres belmagassággal!
Az ingatlant 2025-ös év kedvezményes feltételeivel tudja megvásárolni.
CSOK plusz és a hozzá kapcsolódó támogatások mind igénybe vehetőek.
A családi ház 10% befizetéssel foglalható.
Az ingatlanról:
- 143 nm hasznos lakótér
- 4 szoba+nappali
- 11, 16 nm terasz
- 721 nm telek
- hőszivattyú, padlófűtéssel, fürdőszobai radiátorok
- az udvarban 2 db autó részére van kialakítva parkoló
Műszaki adatok:
- 30-as tégla falazat, (x-therm dryfix okostégla)
- lábazati szigetelés 8 cm XPS
- homlokzati szigetelés, 15 cm homlokzati eps80 polisztirol, bázis szín kategóriájú vakolattal
- tetőszigetelés 30 cm kétrétegű kőzetgyapot és hő-tükörfólia
- cserépfedés
- riasztó/elektromos kapu kiépítése
-Fűtés tartályos hőszivattyúval, padlófűtéses hőleadókkal minden helységben
- 3 rétegű, 6 légkamrás, német alapanyagú, műanyag, a ház megjelenését emelő antracit színű nyílászárók
- Utcafronton vakolt, színezett zsalukőkerítés, zártszelvény oszlopokkal, wpc kerítéslécekkel
- Kocsibelló elektromos kapu előcsövezés kiépítve
EXTRA:
- Elektromos alumínium redőny
- Parkosított kert
A beruházónak több jelenleg is futó kivitelezése zajlik, amelyek előzetes egyeztetéssel megtekinthetőek.
A teljes műszaki tartalom és az ingatlannal kapcsolatos dokumentáció megtekintést követően rendelkezésre áll.
A környék infrastruktúrája és közlekedése kiváló, a közelben minden könnyen elérhető. Az M0-ás autópálya 2 perc alatt megközelíthető, de a távolsági busz is gyakorta jár.
Bevásárlási lehetőségek, szabadidőközpont, iskola, óvoda, amerikai iskola.
A személyes megtekintés kapcsán kérem keressen bizalommal, örömmel megmutatom az ingatlant. Hitel.hu - Hasonlítsa össze a bankok lakáshitel ajánlatait

