Eladó átlagos állapotú ház Doboz
| Kedvencbe | Megosztás | Árfigyelő |
| FIX 3% lakáshitelre megvehető | ||
| 18 000 000 HUF | ||
Ingatlan adatai
- Eladó vagy kiadó:Eladó
- Település:Doboz
- Kategória:Ház
- Alkategória:Családi ház
- Alapterület:95 m2
- Telekterület:567 m2
- Csere is:Nem
- Hirdető:Cég
- Élő videón megtekinthető:Nem
- Építés éve:1970
- Szobaszám:2
- Állapot:Átlagos állapotú
- Hány szintes az ingatlan:Földszintes
- Tetőtér:nincs megadva
- Komfortosság:nincs megadva
- Parkolási lehetőség:Udvaron
- Fűtés:Egyéb
- Bútorozottság:nincs megadva
- Fényviszony:Napfényes
- Tájolás:nincs megadva
- Kilátás:nincs megadva
- Internet:nincs megadva
- Akadálymentesített:nincs megadva
- Energiatanúsítvány:nincs megadva
- Villany:Telken belül
- Víz:Telken belül
- Gáz:Telken belül
- Csatorna:nincs megadva
- Üzenetküldés
- Hívás

Lakatos Henrietta
Mondd meg a hirdetőnek, hogy a megveszLAK-on találtad a hirdetést.
Referencia szám: M290235

Hitel ajánlat
Ingatlan hirdetés leírása
Eladó Ház, Doboz, Eladó átlagos állapotú ház - Doboz
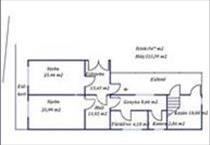
Árcsökkenés! Békés megye Doboz településen családi házat kínálok eladásra, akár falusi CSOK igénybevételével is! Doboz Békéscsabától 13 km-re fekszik, de könnyedén elérhető Gyula város és Sarkad is Turisztikai szempontból a település négy adottsága figyelemre méltó:az erdők, a nagy vízfelület, az országos hírű Doboz-Szanazug üdülőhely, illetve maga a település, Doboz nagyközség. a településről bővebb információt talál a https://www. Doboz. Hu/ oldalon. a kínált lakóház 547 m2 -es sarok telken főút mellett fekszik a település szélén, a lakás 95, 53 m2 + a kazánház 18, 1 m2 alapterületű. a tulajdonos elmondása szerint a lakóház alapozása 2 m mélyen km téglából készült 60 cm vastagságban. a felmenő falak vályogtéglából állnak. Salétromosság, nedvesedés nyomai nem láthatóak. Kisebb repedések azonban igen, melyek szemrevételezéssel a ház állékonyságát nem befolyásolják. Az épület az évek során többször átépítésre, felújításra korszerűsítésre került, így érte el jelenlegi állapotát. Nagyobb felújítás 2008-ban történt, amikor kiépítették a jelenlegi központi fűtés rendszerét, kicserélték viz és szennyvízvezeték csöveket, új kerítés készült, valamint beépítetésre került a hőszigetelt lakásbejárai ajtó és a folyosón lévő hőszigetelőablak is. 2 Szoba, konyha, étkező előszoba, fürdőszoba wc-vel, kamra és kazánház kerültek kialakításra. a telek teljes közművel ellátott, az elektromos áram tekintetében a 3 fázist is kiépítették, a gáz ellátás azonban nem került bevezetésre az épületbe. a ház melegéről vegyes tüzelésű kazánról működtetett központi fűtés gondoskodik. a melegvíz ellátást villanybojler biztosítja. a konyhai tűzhely is elektromos üzemű. a nyílászárók hagyományos fából készült szerkezetek sima üvegezéssel. a lakás egyik bejárati ajtaja korszerű hőszigetelt műanyag szerkezet. Erőssége az ingatlannak a sarki fekvés, amely lehetőséget kínál, arra is az új tulajdonosnak, hogy megosztás után azt, akár értékesítéssel hasznosítsa, vagy beépítse! a kertben évelő gyógynövények, virágok, valamint termő gyümölcsfák kínálják zamatos gyümölcseiket!A karcagi OTP Ingatlanpont és OTP Pénzügyi Pont teljeskörű ügyintézéssel áll az eladók és a vevők rendelkezésére! Ha eladná ingatlanját, hogy ezt megtudja vásolni keressen bizalommal. Az adásvételi szerződés megkötéséhez igény szerint megbízható ügyvédi közreműködést biztosítunk, és segítséget nyújtunk az adásvételhez kapcsolódó ügyek intézéséhez, hiteligényléshez, CSOK-hoz (igazolások igénylése, nyomtatványok kitöltése, benyújtása stb. ). a közművek átírásában is segítséget nyújtunk. Amennyiben felkeltette érdeklődését az ingatlan vagy további kérdése lenne hívjon akár hétvégén is! ! ! ! ! ! ! ! !
Referencia szám: m290235 FIX 3% lakáshitelre megvehető
Tetszett ez az eladó Dobozi átlagos állapotú 2 szobás családi ház? Hívd fel a hirdetőt most, és tudj meg mindent erről az eladó családi házról! Ha gondolod nézelődj tovább az eladó ház Doboz oldal hirdetései között. Ennek az eladó háznak az ára 18000000 Ft és mivel az alapterülete 95 négyzetméter, ezért az átlagos négyzetméterára 189474 HUF/m2.
Az eladó házak menüpontban további hirdetések között is böngészhetsz. Ha van kedved, akkor böngészhetsz a Lakatos Henrietta összes hirdetése között, vagy akár a/az OTPip Karcag Püspökladányi út 9 - OTP Ingatlanpont Iroda összes hirdetése között is.

