Eladó jó állapotú ház Dombrád
| Kedvencbe | Megosztás | Árfigyelő |
| FIX 3% lakáshitelre megvehető | ||
| 15 000 000 HUF | ||
Ingatlan adatai
- Eladó vagy kiadó:Eladó
- Település:Dombrád
- Kategória:Ház
- Alkategória:Családi ház
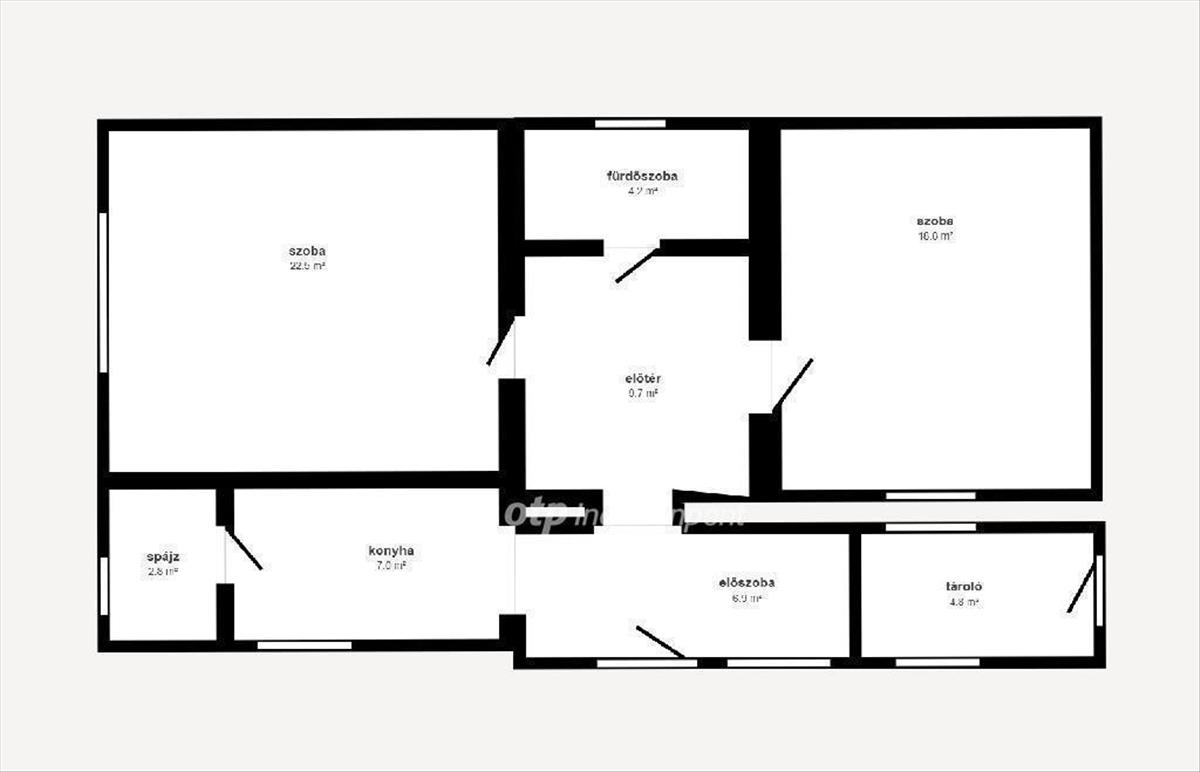
- Alapterület:80 m2
- Telekterület:577 m2
- Csere is:Nem
- Hirdető:Cég
- Élő videón megtekinthető:Nem
- Építés éve:1960
- Szobaszám:2 + 1 fél
- Állapot:Jó állapotú
- Hány szintes az ingatlan:Földszintes
- Tetőtér:nincs megadva
- Komfortosság:nincs megadva
- Parkolási lehetőség:Udvaron
- Fűtés:Gáz (konvektor)
- Bútorozottság:nincs megadva
- Fényviszony:Jó
- Tájolás:nincs megadva
- Kilátás:nincs megadva
- Internet:nincs megadva
- Akadálymentesített:nincs megadva
- Energiatanúsítvány:nincs megadva
- Villany:Telken belül
- Víz:Telken belül
- Gáz:Telken belül
- Csatorna:nincs megadva
- Üzenetküldés
- Hívás

Balázscsikné Hanzel Re...
Mondd meg a hirdetőnek, hogy a megveszLAK-on találtad a hirdetést.
Referencia szám: M305974

Hitel ajánlat
Ingatlan hirdetés leírása
Eladó Ház, Dombrád, Eladó jó állapotú ház - Dombrád
Eladó családi ház Dombrád központjában.A két szobás 76 m2-es ingatlan 1960-ban épült, terméskő alapra, vályog falazattal.
A tető szerkezetileg kifogástalan, héjazata cserepeslemez.
Az udvarra néző homlokzat 5 cm szigetelést kapott, valamint halózva, színezve lett.
Az épület fűtéséről minden szobában gázkonvektor gondoskodik, valamint két cserépkályha.
A kültéri ajtó és ablakok műanyag tokozásúak, többrétegű hőszigetelt üveggel.
A fürdőszobában villanybojler felel a meleg víz előállításáért.
A ház teljes mértékben közművesített (víz, gáz, villany (réz vezeték), csatorna).
A ház hátsó szobája alatt pince található.
A telek 577 m2, amelyen a ház mögött egy vegyes falazatú melléképület áll. Az udvar füvesített, ápolt, rendezett.
A környék kifejezetten nyugodt, csendes, könnyen megközelíthető. a háztól 1000 méteren belül található óvoda, általános iskola, posta, buszmegálló valamint több élelmiszer bolt is.
Ideális lehet fiatalabb, idősebb pároknak, vagy családok számára.
Referencia szám: M305974
Pénzügyi tanácsadással, hitel ügyintézéssel (FalusiCSOK, CSOKPlusz, Babaváró, kedvezményes lakáshitel) segítjük ügyfeleinket, melyről részletes tájékoztatást adunk OTP Ingatlanpont, és OTP Pénzügyi Pont irodáinkban. FIX 3% lakáshitelre megvehető

