Eladó jó állapotú ház - Dombrád
- INGYENES HIRDETÉS FELADÁS
Ingatlan adatai
- Eladó vagy kiadó:Eladó
- Település:Dombrád
- Kategória:Ház
- Alkategória:Családi ház
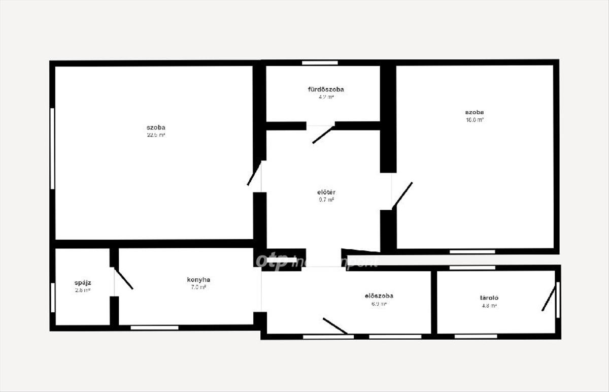
- Alapterület:80 m2
- Telekterület:577 m2
- Csere is:Nem
- Hirdető:Cég
- Élő videón megtekinthető:Nem
- Építés éve:1960
- Szobaszám:2 + 1 fél
- Állapot:Jó állapotú
- Hány szintes az ingatlan:Földszintes
- Tetőtér:nincs megadva
- Komfortosság:nincs megadva
- Pince:nincs megadva
- Parkolási lehetőség:Garázsban
- Fűtés:nincs megadva
- Bútorozottság:nincs megadva
- Fényviszony:nincs megadva
- Tájolás:nincs megadva
- Kilátás:nincs megadva
- Internet:nincs megadva
- Klíma:nincs megadva
- Akadálymentesített:nincs megadva
- Energiatanúsítvány:nincs megadva
- Villany:Telken belül
- Víz:Telken belül
- Gáz:Telken belül
- Csatorna:Telken belül
- Kapcsolatfelvétel

Marczi Dániel
+36-70-632-0808
Mondd meg a hirdetőnek, hogy a megveszLAK-on találtad a hirdetést.
Hitel ajánlatok
Ingatlan hirdetés leírása
Eladó családi ház Dombrád központjában. A két szobás 76 m2-es...
Eladó családi ház Dombrád központjában.
A két szobás 76 m2-es ingatlan 1960-ban épült, terméskő alapra, vályog falazattal.
A tető szerkezetileg kifogástalan, héjazata cserepeslemez.
Az udvarra néző homlokzat 5 cm szigetelést kapott, valamint halózva, színezve lett.
Az épület fűtéséről minden szobában gázkonvektor gondoskodik, valamint két cserépkályha.
A kültéri ajtó és ablakok műanyag tokozásúak, többrétegű hőszigetelt üveggel.
A fürdőszobában villanybojler felel a meleg víz előállításáért.
A ház teljes mértékben közművesített (víz, gáz, villany (réz vezeték), csatorna).
A ház hátsó szobája alatt pince található.
A telek 577 m2, amelyen a ház mögött egy vegyes falazatú melléképület áll. Az udvar füvesített, ápolt, rendezett.
A környék kifejezetten nyugodt, csendes, könnyen megközelíthető. a háztól 1000 méteren belül található óvoda, általános iskola, posta, buszmegálló valamint több élelmiszer bolt is.
Ideális lehet fiatalabb, idősebb pároknak, vagy családok számára.
Referencia szám: M305974
Pénzügyi tanácsadással, hitel ügyintézéssel (FalusiCSOK, CSOKPlusz, Babaváró, kedvezményes lakáshitel) segítjük ügyfeleinket, melyről részletes tájékoztatást adunk OTP Ingatlanpont, és OTP Pénzügyi Pont irodáinkban. FIX 3% lakáshitelre megvehető
Tetszett ez az eladó Dombrádi jó állapotú 2 egész és 1 fél szobás családi ház? Hívd fel a hirdetőt most, és tudj meg mindent erről az eladó családi házról! Ha gondolod nézelődj tovább az eladó ház Dombrád oldal hirdetései között. Ennek az eladó háznak az ára 15000000 Ft és mivel az alapterülete 80 négyzetméter, ezért az átlagos négyzetméterára 187500 HUF/m2.
Az eladó házak menüpontban további hirdetések között is böngészhetsz. Ha van kedved, akkor böngészhetsz a Marczi Dániel összes hirdetése között, vagy akár a/az Nyíregyháza Bocskai utca 18-20 - OTP Ingatlanpont Iroda összes hirdetése között is.

