- >>
- eladó ingatlanok
- >>
- eladó ház
- >>
- eladó ház Dunaharaszti
- >>
Eladó új építésű ház - Dunaharaszti
| | |||
| Kedvencnek jelölöm | Elküldöm emailben | Megosztás | Szavazás |
| FIX 3% lakáshitelre megvehető | |||
| 99 990 000 HUF | |||
Ingatlan adatai
- Eladó vagy kiadó:Eladó
- Település:Dunaharaszti
- Kategória:Ház
- Alkategória:Családi ház
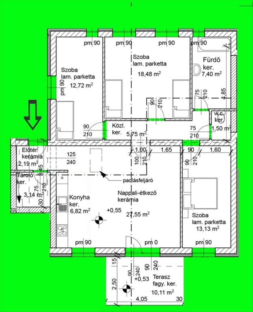
- Alapterület:99 m2
- Telekterület:306 m2
- Csere is:Nem
- Hirdető:Cég
- Élő videón megtekinthető:Nem
- Építés éve:2025
- Szobaszám:4
- Állapot:Új építésű
- Hány szintes az ingatlan:Földszintes
- Tetőtér:nincs megadva
- Komfortosság:nincs megadva
- Parkolási lehetőség:Udvaron
- Fűtés:Hőszivattyús
- Bútorozottság:nincs megadva
- Fényviszony:Napfényes
- Tájolás:DNY
- Kilátás:nincs megadva
- Internet:nincs megadva
- Akadálymentesített:nincs megadva
- Energiatanúsítvány:A
- Villany:Van
- Víz:Van
- Gáz:Utcában
- Csatorna:Van
- Üzenetküldés
- Hívás

Referencia szám: CD80243

Hitel ajánlat
Ingatlan hirdetés leírása
Új építésű, egyszintes, energiatakarékos lakások saját kerttel...
Dunaharaszti csendes, kertvárosias részén, jól megközelíthető helyen épül ez a háromlakásos sorházi projekt.Minden ingatlan külön helyrajzi számon szerepel, saját, körbekerített kerttel, 10 m²-es nyitott terasszal és udvari autóbeállóval rendelkezik.
Átadás várható időtartama: 2026 év közepe
Lakások méretei:
A lakás
Nettó alapterület: 99, 74 m²
Bruttó alapterület: 109, 85 m²
Saját telek: 544 m²
B lakás
Nettó alapterület: 98, 68 m²
Bruttó alapterület: 109, 79 m²
Saját telek: 306 m²
C lakás
Nettó alapterület: 95, 98 m²
Bruttó alapterület: 106, 09 m²
Saját telek: 373 m²
Műszaki tartalom:
- Közművek: víz, villany, csatorna
- Villamos hálózat: H-tarifás óra, 1x32A teljesítménnyel
- Fűtés és melegvíz: hőszivattyús rendszer padlófűtéssel
- Beton alap, 15 cm aljzatszigetelés
- Falazat: Leier 30 cm-es tégla, 15 cm dryvit homlokzati szigetelés
- Válaszfalak: tégla
- Födém: fa szerkezet, 25 cm ásványgyapot szigetelés
- Tető: Bramac betoncserép, antracit színben
- Nyílászárók: 6 légkamrás, 3 rétegű műanyag ablakok (kívül-belül fehér), redőnnyel és szúnyoghálóval
- Beltéri ajtók: dekorfóliás kivitelben, 50. 000 Ft/db értékhatárig választhatók
- Hidegburkolatok: 4. 000 Ft/m² értékhatárig
- Melegburkolatok: 3. 500 Ft/m² értékhatárig
- Szaniterek, csaptelepek: műszaki tartalom szerinti keretösszegből
- Kaputelefon, elektromos kapu előkészítés
- Klíma és riasztórendszer előkészítés
Parkolás:
- Lakásonként 1 udvari, murvázott gépkocsi-beálló tartozik az ingatlanhoz.
Elhelyezkedés:
Könnyen elérhető közelségben található az M0-s autóút, HÉV-megálló, buszmegálló, iskola, óvoda, bevásárlási lehetőségek és gyógyszertár.
Ha felkeltette érdeklődését ez az ingatlan, keressen minket bizalommal, és örömmel mutatjuk be a lehetőségeket személyesen is!
A Custom Dream Home teljes körű ügyintézéssel áll eladók és vevők rendelkezésére – ingatlanközvetítés szívvel-lélekkel, az Ön igényeire szabva.
Szolgáltatásaink:
- Ingyenes hiteltanácsadás, csok+, Babaváró és lakáshitel-ügyintézés pénzügyi szakértő bevonásával
- Díjmentes ingatlanérték-meghatározás
- Energetikai tanúsítvány készítés
- Ügyvédi és jogi tanácsadás kedvező áron
A megjelenő információk tájékoztató jellegűek.
Referencia szám: cd80243-ml FIX 3% lakáshitelre megvehető

