Eladó új építésű ház Dunaharaszti
| Kedvencbe | Megosztás | Árfigyelő |
| Kedvezményes lakáshitel ajánlatok | ||
| 239 000 000 HUF | ||
Ingatlan adatai
- Eladó vagy kiadó:Eladó
- Település:Dunaharaszti
- Kategória:Ház
- Alkategória:Családi ház
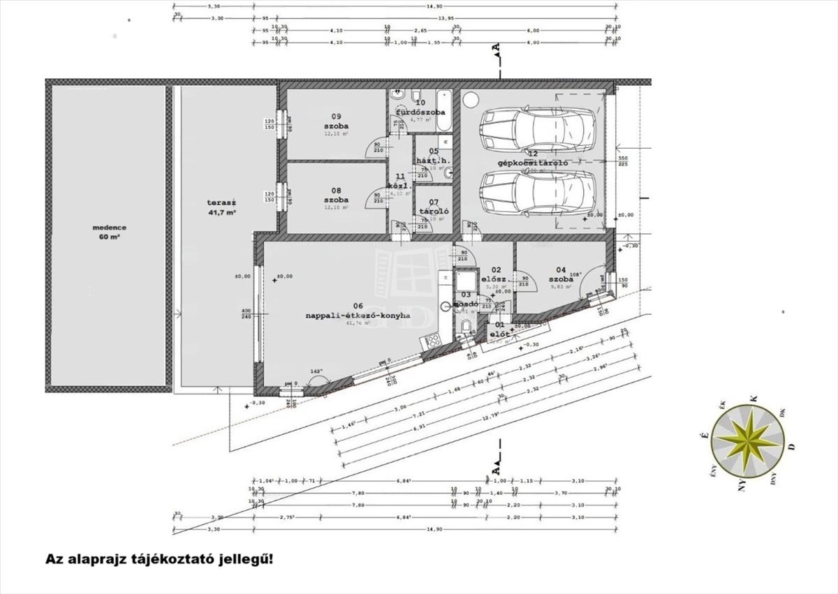
- Alapterület:137 m2
- Telekterület:1023 m2
- Csere is:Nem
- Hirdető:Cég
- Élő videón megtekinthető:Nem
- Építés éve:2024
- Szobaszám:3 + 1 fél
- Állapot:Új építésű
- Hány szintes az ingatlan:Földszintes
- Tetőtér:nincs megadva
- Komfortosság:nincs megadva
- Pince:Van
- Parkolási lehetőség:Garázsban
- Fűtés:nincs megadva
- Bútorozottság:nincs megadva
- Fényviszony:nincs megadva
- Tájolás:nincs megadva
- Kilátás:nincs megadva
- Internet:nincs megadva
- Akadálymentesített:nincs megadva
- Energiatanúsítvány:nincs megadva
- Villany:Van
- Víz:Van
- Gáz:nincs megadva
- Csatorna:Van
- Üzenetküldés
- Hívás


Hitel ajánlat
Ingatlan hirdetés leírása
Eladó Dunaharasztin egy impozáns 4 szobás dupla komfortos 135,...
Eladó Dunaharasztin egy impozáns 4 szobás dupla komfortos 135, 47m2-es önálló családi ház 1023m2-es telekkel.**Épület jellemzői:**
•Az ingatlan 2024-ben épült egyedi tervezéssel a tetőszerkezet beton gerendás beton födémmel készült 40 cm-es szigeteléssel. a homlokzati 15 cm-es, lábazati 15 cm-es, az aljzat 15 cm-es hőszigetelést kapott. a terasz 42m2-es.
•A fűtés: Hőszivattyús Hűtés-fűtés rendszer, minden helyiségben padlófűtés/hűtés és mennyezeti fűtés/hűtés. Helyiségeként külön hőfokvezérlés. Fischer légkondicionáló került a nappaliban felhelyezésre.
•Hőcserélős, friss levegőszellőztető rendszer.
•A műanyag nyílászárok automata alumínium rejtett redőnyökkel és szúnyoghálóval szereltek.
•A hálózat 3x25 amperrel betáppal rendelkezik, Napelem rendszer kiépítve. 19, 5 KW + H tarifás mérővel.
•Biztonságot fokozza a kiépített riasztó és kamerarendszer.
•A parkosított térkövezett kertet fúrt kúttal ellátott elektromos öntözőrendszer locsolja.
•A gondozott kertben egy 15x4 méteres, ledvilágítással, vízeséssel ellátott 60m2-es medence, valamint 30 méteres, öntisztuló kerti tó is helyet kapott.
•8 Személyes kültéri finn szauna „csillagos égbolt” belső dizájnnal.
•A parkolás elektromos kapun keresztül a garázsban megoldott.
•Az összes helyiségben a világítás egyedi, mind formailag mind fényerejét tekintve.
**INGATLAN helyszíne, LOKÁCIÓ:**
Az eladó családi ház csendes, rendezett környezetben, jól megközelíthető helyen van. a környék infrastruktúrája kiváló, a főbb közlekedési csomópontok gyorsan elérhetők.
Az ingatlan környéke biztonságos és barátságos lakóközösséggel büszkélkedhet.
Kihagyhatatlan ajánlatok: csok+, kedvezményes kamatozású lakáshitelek.
Az ország szinte összes bankjának a hiteleit is kínáljuk, egyedi, általunk igénybe vehető kedvezményekkel, díjmentes ügyintézéssel
Amennyiben felkeltette a hirdetés a figyelmét, hívjon bizalommal! Hitel.hu - Hasonlítsa össze a bankok lakáshitel ajánlatait

