Eladó jó állapotú ház - Eger (49892973)
ELADÓ INGATLANOK
KIADÓ INGATLANOK
CSERE INGATLANOK
KÜLFÖLDI INGATLANOK
RÉSZLETES KERESÉS
INGATLAN HÍREK
HIRDETÉS FELADÁS
BELÉPÉS
REGISZTRÁCIÓ
hirdetés 1. fotó
hirdetés 2. fotóhirdetés 3. fotó
hirdetés 4. fotóhirdetés 5. fotó
hirdetés 6. fotó
+ 13 fotó
hirdetés 7. fotó
+ 10 fotó
hirdetés 7. fotóhirdetés 8. fotóhirdetés 9. fotóhirdetés 10. fotóhirdetés 11. fotóhirdetés 12. fotóhirdetés 13. fotóhirdetés 14. fotóhirdetés 15. fotóhirdetés 16. fotó

Ingatlan adatai

  • Eladó vagy kiadó:Eladó
  • Település:Eger
  • Kategória:Ház
  • Alkategória:Családi ház
  • Alapterület:120 m2
  • Telekterület:244 m2
  • Csere is:Nem
  • Hirdető:Cég
  • Élő videón megtekinthető:Nem
  • Építés éve:2010
  • Szobaszám:3 + 1 fél
  • Állapot:Jó állapotú
  • Hány szintes az ingatlan:Földszintes
  • Tetőtér:nincs megadva
  • Komfortosság:nincs megadva
  • Pince:nincs megadva
  • Parkolási lehetőség:Udvaron
  • Fűtés:Gáz (cirko)
  • Bútorozottság:nincs megadva
  • Fényviszony:Napfényes
  • Tájolás:nincs megadva
  • Kilátás:nincs megadva
  • Internet:nincs megadva
  • Klíma:nincs megadva
  • Akadálymentesített:nincs megadva
  • Energiatanúsítvány:nincs megadva
  • Villany:nincs megadva
  • Víz:nincs megadva
  • Gáz:nincs megadva
  • Csatorna:nincs megadva
  • Kapcsolatfelvétel
Czibolya Andrea
Czibolya Andrea
+36-(30)-744-7630
Mondd meg a hirdetőnek, hogy a megveszLAK-on találtad a hirdetést.
Referencia szám: M320165
Érdekel kedvezményes lakáshitel ajánlat is
Az ASZF-et és az Adatkezelési tájékoztatót elfogadom

Hitel ajánlatok

 

Ingatlan hirdetés leírása

Eladó Ház, Eger, Eladó jó állapotú ház - Eger


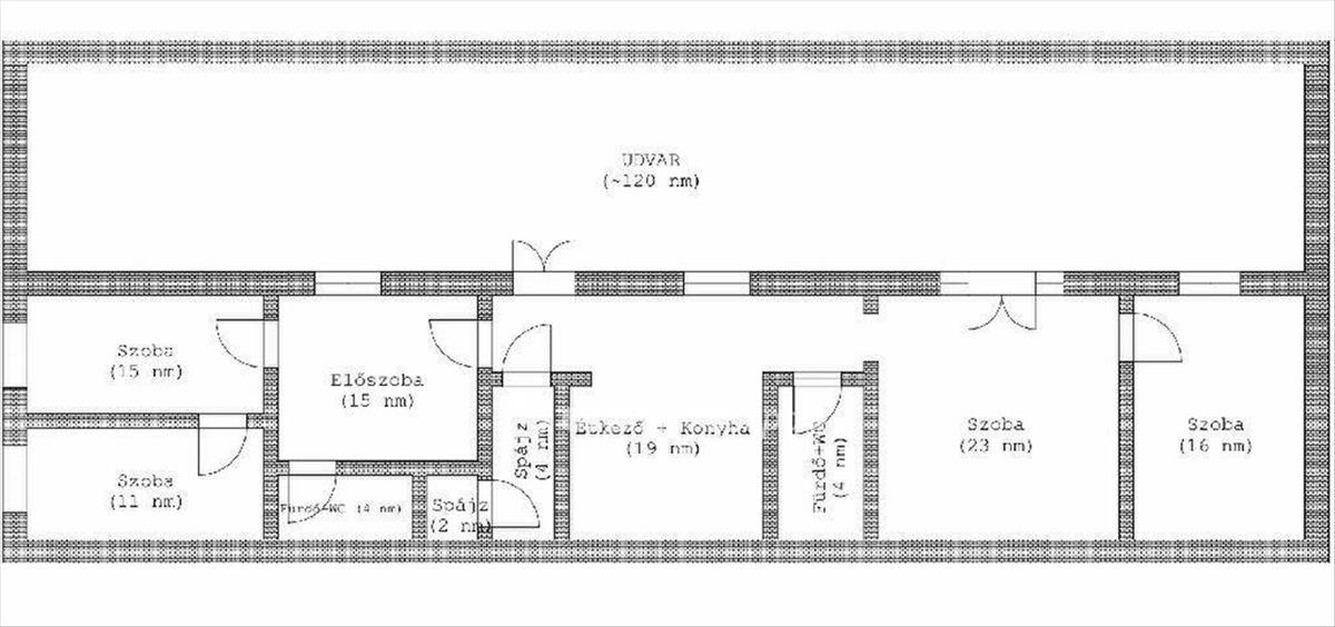
Kizárólag ingatlanirodánk kínálatában! Heves megye, Eger Hatvani hóstya városrészen, kb. 10 Perc sétára a belvárostól, 120m2-es, 4 szobás, szigetelt, jó állapotú családi ház eladó. Helyiségei: bejárat, előszoba, konyha-étkező, 4 szoba, 2 fürdőszoba WC-vel és kamra, mely alatt pince található. a 2 lakrészre tagolódó ingatlan az 1970-es években épült 244m2-es telekre és a 2000-es évek elején 2 szoba hozzáépítésével bővült. a fűtésért kondenzációs cirko kazán felel radiátorokon keresztül, ill. 2 Db Midea hűtő- fűtő klíma is beszerelésre került. a fűtés kényelmesen szabályozható távvezérléssel interneten keresztül. a ház az elmúlt években jelentős felújításokon esett át. a 2010-es években megújult a tető, 2022-ben új Westen kondenzációs gázcirko kazán került beépítésre, 2023-ban pedig új Berg külső- és belső nyílászárókat szereltek be. a villamoshálózat is megújult ill. 3 Fázisra és éjszakai árammal bővült. a homlokzati kőzetgyapot szigetelésnek köszönhetően a ház rezsije alacsony. a biztonságért korszerű, bejelzős riasztórendszer felel. Parkolásra a térkövezett udvaron van lehetőség. Ez a belváros közeli, tágas, praktikus otthon ideális választás lehet kisebb vagy nagyobb családok számára, akár 2 generáció együtt élésére is, de lokációjánál fogva remek lehetőségeket rejt magában befektetési céllal is, akár rövid- akár hosszú távú kiadásra. Per-, teher- és igénymentes. Ingatlanirodánk ügyvédi háttérrel, Otthon Start, Babaváró, csok+, falusi CSOK és egyéb kamatkedvezményes hitel ügyintézés lehetőségével áll ügyfelei rendelkezésére. Rugalmas megtekintés lehetőségével várom megtisztelő hívását!
Otthon Start Hitelprogram

Referencia szám: m320165 FIX 3% lakáshitelre megvehető

Tetszett ez az eladó Egeri jó állapotú 3 egész és 1 fél szobás családi ház? Hívd fel a hirdetőt most, és tudj meg mindent erről az eladó családi házról! Ha gondolod nézelődj tovább az eladó ház Eger oldal hirdetései között. Ennek az eladó háznak az ára 89900000 Ft és mivel az alapterülete 120 négyzetméter, ezért az átlagos négyzetméterára 749167 HUF/m2.

Az eladó házak menüpontban további hirdetések között is böngészhetsz. Ha van kedved, akkor böngészhetsz a Czibolya Andrea összes hirdetése között, vagy akár a/az OTPip Eger Kertész utca 25 - OTP Ingatlanpont Iroda összes hirdetése között is.

 
 
© megveszLAK.hu - Az egyszerűen jó ingatlan hirdetési oldal