Eladó felújított ház - Eger
- INGYENES HIRDETÉS FELADÁS
Ingatlan adatai
- Feladva:87 napja a megveszLAK-on
- Eladó vagy kiadó:Eladó
- Település:Eger
- Kategória:Ház
- Alkategória:Családi ház
- Alapterület:220 m2
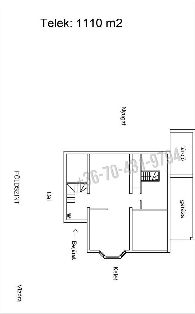
- Telekterület:1110 m2
- Csere is:Nem
- Hirdető:Cég
- Élő videón megtekinthető:Nem
- Szobaszám:5 + 1 fél
- Állapot:Felújított
- Hány szintes az ingatlan:nincs megadva
- Tetőtér:nincs megadva
- Komfortosság:Komfortos
- Pince:Van
- Parkolási lehetőség:Garázsban
- Fűtés:nincs megadva
- Bútorozottság:nincs megadva
- Fényviszony:nincs megadva
- Tájolás:nincs megadva
- Kilátás:nincs megadva
- Internet:nincs megadva
- Klíma:nincs megadva
- Akadálymentesített:nincs megadva
- Energiatanúsítvány:nincs megadva
- Villany:Van
- Víz:Van
- Gáz:Van
- Csatorna:Van
- Kapcsolatfelvétel

Vass Anett
+36-(70)-431-9794
Mondd meg a hirdetőnek, hogy a megveszLAK-on találtad a hirdetést.
Hitel ajánlatok
Ingatlan hirdetés leírása
Eladó Családi ház, Eger, Lajosváros, 220nm, 78000000 Ft
Eger kedvelt kertvárosi részén, a Lajosváros csendes utcájában 220 m²-es családi ház, városi viszonylatban nagynak számító 1110 m²-es telekkel eladó!
Az ingatlan ideális választás azoknak, akik nem akarnak hatalmas felújításba kezdeni, viszont saját ízlésükre szabott otthont szeretnének.
A ház statikailag kifogástalan állapotú, masszív szerkezetű. 1987-Ben épült beton sávalappal, szilikát falazattal, beton födémmel és cserép tetőfedéssel.
A ház már csak az utolsó simításokat várja!
- a teljes víz-, villany- és gázvezeték csere megtörtént. a fűtés és víz leállások az emeleten is kiépítésre kerültek.
- a falak hang- és tűzgátló gipszkarton borítást kaptak, amit gletteltek és fehérre festettek.
- Prémium kategóriás Fenstherm 3 rétegű, gázzal töltött hő- és hangszigetelt ablakok kerültek beépítésre (az alsó szinten teljes, az emeleten részleges csere).
- Minden helyiség aljzatkiegyenlítővel lett ellátva, azonnal burkolható állapotban van.
A padlóburkolatok, a szaniterek és a fűtésrendszer (kazán és fűtőtestek) kiválasztása már az új tulajdonosra vár.
A 220 m²-es lakótér kitűnő elrendezésű:
Földszinten (110 m²): Tágas nappali (30 m²), konyha-étkező (22 m² – villany és gáz főzési lehetőség is kiépítve), hálószoba (20 m²), fél szoba, fürdő, spejz és mosókonyha.
Emeleten (110 m²): 3 külön nyíló szoba (14, 16 és 19 m²), fürdőszoba, gardrób, tároló és terasz.
Az 1110 m²-es kertben minden kialakítható ami a kellemes pihenést szolgálja, legyen szó konyhakertről, medencéről, játszótérről, bográcsozóról.
A kertben egy 16 méter mély betongyűrűs kút található, amely kifogástalan vízhozamot biztosít az öntözéshez.
A ház mellett garázs és fedett tároló, a ház alatt 14 m²-es, száraz borospince található.
Csendes, kertvárosi lakókörnyezet, kiváló közlekedéssel és infrastruktúrával. Orvos, gyógyszertár, játszótér, boltok, óvoda, iskolák pár percre találhatóak.
Ne maradjon le erről a kiváló házról, alakítsa ki saját igényei szerint álmai otthonát!
Megtekintésért és további információért keressen bizalommal!
Ideális választás családoknak, akár több generáció kényelmes együttélésére is!
A képek után, hogy segítsem döntésében a mesterséges intelligencia segítségével mutatom hogy nézne ki 1-1 helyiség berendezve.
Igény esetén teljeskörű ügyintézéssel: ügyvédi háttérrel, ingyenes bankfüggetlen hitelügyintézéssel (3%, babaváró, CSOK és egyéb hitelek) segítem ügyfeleim ingatlanvásárlását. FIX 3% lakáshitelre megvehető
Tetszett ez az eladó Egeri felújított 5 egész és 1 fél szobás családi ház? Hívd fel a hirdetőt most, és tudj meg mindent erről az eladó családi házról! Ha gondolod nézelődj tovább az eladó ház Eger oldal hirdetései között. Ennek az eladó háznak az ára 78000000 Ft és mivel az alapterülete 220 négyzetméter, ezért az átlagos négyzetméterára 354545 HUF/m2.
Az eladó házak menüpontban további hirdetések között is böngészhetsz. Ha van kedved, akkor böngészhetsz a Vass Anett összes hirdetése között.

