- >>
- eladó ingatlanok
- >>
- eladó ház
- >>
- eladó ház Eger
- >>
Eladó átlagos állapotú ház - Eger
| | |||
| Kedvencnek jelölöm | Elküldöm emailben | Megosztás | Szavazás |
| FIX 3% lakáshitelre megvehető | |||
| 53 000 000 HUF | |||
Ingatlan adatai
- Eladó vagy kiadó:Eladó
- Település:Eger
- Kategória:Ház
- Alkategória:Családi ház
- Alapterület:105 m2
- Telekterület:135 m2
- Csere is:Nem
- Hirdető:Cég
- Élő videón megtekinthető:Nem
- Építés éve:1983
- Szobaszám:2 + 2 fél
- Állapot:Átlagos állapotú
- Hány szintes az ingatlan:2 szintes
- Tetőtér:nincs megadva
- Komfortosság:nincs megadva
- Parkolási lehetőség:nincs megadva
- Fűtés:Gáz (cirko)
- Bútorozottság:nincs megadva
- Fényviszony:Napfényes
- Tájolás:nincs megadva
- Kilátás:nincs megadva
- Internet:nincs megadva
- Akadálymentesített:nincs megadva
- Energiatanúsítvány:nincs megadva
- Villany:Telken belül
- Víz:Telken belül
- Gáz:Telken belül
- Csatorna:nincs megadva
- Üzenetküldés
- Hívás

Utasi Attila Csaba
Mondd meg a hirdetőnek, hogy a megveszLAK-on találtad a hirdetést.
Referencia szám: M298162

Hitel ajánlat
Ingatlan hirdetés leírása
Eladó Ház, Eger, Eladó átlagos állapotú ház - Eger
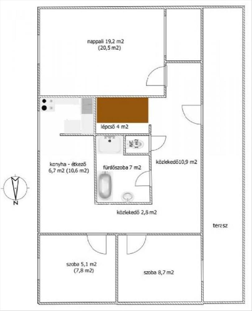
Az OTP Ingatlanpont Kizárólagos forgalmazásában! Eladó családi ház Egerben, a vár környékén!Téglaépítésű, felújítandó családi ház eladó Eger történelmi belvárosának közvetlen közelében, a vár szomszédságában. a ház két szinten, földszint + tetőtér elrendezésben kínálja új tulajdonosának az alábbi előnyöket:
? Hasznos alapterület: 148, 5 m2
? Telek területe: 135 m2
? Fa hőszigetelt üvegezésű ablakok
? Dupla komfortos (fürdő és wc mindkét szinten)
? Belső elrendezésének köszönhetően akár kétlakásos társasházzá is átalakítható
? a földszinten található egyik helyiség garázzsá is alakítható
A ház ideális lehetőség azoknak, akik egy kényelmes otthonra vágynak Eger szívében, ugyanakkor van lehetőségük saját elképzeléseik szerint felújítani és akár befektetési céllal két különálló lakássá alakítani.
Amennyiben a fotók és az ingatlan paraméterei felkeltették érdeklődését kérem, forduljon hozzám bizalommal. Irodánk, teljes körű ügyintézéssel áll az eladók és a vevők rendelkezésére! Az adásvételi szerződés megkötéséhez igény szerint megbízható ügyvédi közreműködést biztosítunk, és segítséget nyújtunk az adásvételhez kapcsolódó ügyek intézéséhez és ingyenes pénzügyi tanácsadással, kedvezményes hitelekkel (Babaváró hitel, államilag támogatott hitel, CSOK Plusz igényelhető, stb) Lakástakarék megtakarítással segítjük vásárlását. Ne hagyja ki ezt a ritka lehetőséget, hívjon minket még ma! FIX 3% lakáshitelre megvehető

