Eladó felújítandó ház - Eger
- INGYENES HIRDETÉS FELADÁS
Ingatlan adatai
- Eladó vagy kiadó:Eladó
- Település:Eger
- Kategória:Ház
- Alkategória:Családi ház
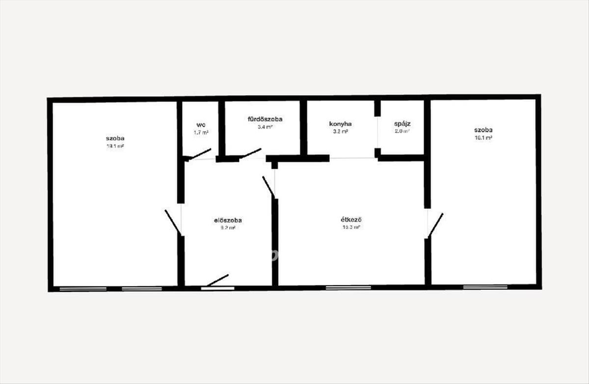
- Alapterület:68 m2
- Telekterület:100 m2
- Csere is:Nem
- Hirdető:Cég
- Élő videón megtekinthető:Nem
- Építés éve:1970
- Szobaszám:3
- Állapot:Felújítandó
- Hány szintes az ingatlan:Földszintes
- Tetőtér:nincs megadva
- Komfortosság:nincs megadva
- Pince:nincs megadva
- Parkolási lehetőség:nincs megadva
- Fűtés:Gáz (konvektor)
- Bútorozottság:nincs megadva
- Fényviszony:Jó
- Tájolás:nincs megadva
- Kilátás:nincs megadva
- Internet:nincs megadva
- Klíma:nincs megadva
- Akadálymentesített:nincs megadva
- Energiatanúsítvány:nincs megadva
- Villany:nincs megadva
- Víz:nincs megadva
- Gáz:nincs megadva
- Csatorna:nincs megadva
- Kapcsolatfelvétel

Herger-Varga Hajnalka
+36-(20)-433-4804
Mondd meg a hirdetőnek, hogy a megveszLAK-on találtad a hirdetést.
Referencia szám: M319522
Hitel ajánlatok
Ingatlan hirdetés leírása
Eladó Ház, Eger, Eladó felújítandó ház - Eger
Eladó felújítandó családi ház Eger belvárosában, saját udvarral!
Eger egyik legkeresettebb részén, a történelmi belváros közvetlen közelében, a Rózsa Károly utcában kínálunk eladásra egy nettó 68 nm hasznos alapterületű felújítandó családi házat, amelyhez egy megközelítőleg 100 nm -nyi elkerített udvar is tartozik. Az ingatlanhoz továbbá egy 16 nm -es tároló is tartozik, mely felújítással szintén lakófunkciót tölthet be a jövőben. a ház felújítandó állapotú, azonban 2024-ben a tetőszerkezet felújításra került, továbbá a korábbi vizesedés megszüntetésére falinjektálás és víz szigetelés történt. Az ingatlan kiváló adottságokkal rendelkezik, ideális választás lehet saját otthonnak vagy akár befektetési célra (kiadásra, apartmanná alakításra) is. Belvárosi elhelyezkedésnek köszönhetően valamennyi szolgáltatás, infrastruktúra néhány perc sétára található. Jöjjön és tekintsük meg együtt, akár hétvégén is! OTP Banki hátterünknek köszönhetően finanszírozási igényekben (pl. Otthon Start Program, Babaváró, Falusi csok, CSOK Plusz, Lakáshitel, Személyi kölcsön stb. ), Illetve biztosítások tekintetében is díjmentesen, soron kívüli ügyintézéssel segítem ügyfeleim! Az adásvételi szerződéshez igény esetén ügyvédet biztosítunk. Referenciaszám: M319522
Referencia szám: m319522 FIX 3% lakáshitelre megvehető
Tetszett ez az eladó Egeri felújítandó 3 szobás családi ház? Hívd fel a hirdetőt most, és tudj meg mindent erről az eladó családi házról! Ha gondolod nézelődj tovább az eladó ház Eger oldal hirdetései között. Ennek az eladó háznak az ára 40000000 Ft és mivel az alapterülete 68 négyzetméter, ezért az átlagos négyzetméterára 588235 HUF/m2.
Az eladó házak menüpontban további hirdetések között is böngészhetsz. Ha van kedved, akkor böngészhetsz a Herger-Varga Hajnalka összes hirdetése között, vagy akár a/az OTPip Eger Kertész utca 25 - OTP Ingatlanpont Iroda összes hirdetése között is.

