Eladó felújítandó ház - Emőd
- INGYENES HIRDETÉS FELADÁS
Ingatlan adatai
- Feladva:4 hónapja a megveszLAK-on
- Eladó vagy kiadó:Eladó
- Település:Emőd
- Kategória:Ház
- Alkategória:Családi ház
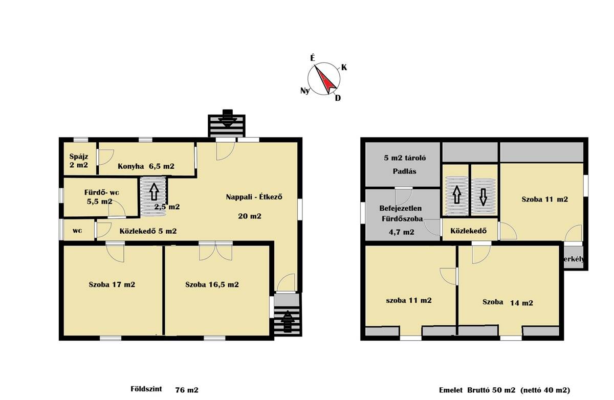
- Alapterület:116 m2
- Telekterület:1469 m2
- Csere is:Nem
- Hirdető:Cég
- Élő videón megtekinthető:Nem
- Építés éve:1987
- Szobaszám:5
- Állapot:Felújítandó
- Hány szintes az ingatlan:nincs megadva
- Tetőtér:nincs megadva
- Komfortosság:nincs megadva
- Pince:nincs megadva
- Parkolási lehetőség:nincs megadva
- Fűtés:Egyéb
- Bútorozottság:nincs megadva
- Fényviszony:nincs megadva
- Tájolás:nincs megadva
- Kilátás:nincs megadva
- Internet:nincs megadva
- Klíma:Van
- Akadálymentesített:nincs megadva
- Energiatanúsítvány:nincs megadva
- Villany:nincs megadva
- Víz:nincs megadva
- Gáz:nincs megadva
- Csatorna:nincs megadva
- Kapcsolatfelvétel

Siroki Zoltán
+36303337774
Mondd meg a hirdetőnek, hogy a megveszLAK-on találtad a hirdetést.
Hitel ajánlatok
Ingatlan hirdetés leírása
Miskolc közelében Emődön, a Margit utcában tetőtér beépítéses ...
Miskolc közelében Emődön, a Margit utcában tetőtér beépítéses családi ház eladó.
Az ingatlan felújításra szorul. Étkezős nappalival, konyhával, 5 szobával, 116 m2-es fűtött lakótérrel rendelkezik. Az udvaron kazánházzal, és tárolóval várja új tulajdonosát. a lakótér bővíthető, a tetőtér egy részének befejezésével.
Említést érdemlő extrák:
– Hőszigetelt műanyag ablakok cserélve több helyiségben.
– Beépített, gépesített egyedi konyhabútor.
– Vegyes tüzelésű kazán, és régi típusú gázkazán, központi fűtés.
– Étkezős nappali, konyha, spájz.
– Cserép fedéses, jó állapotú tető. B30-as tégla falazat. 1987-Ben épült.
– Nagy 1469 m2-es gondozott kert. Dupla tároló, pince, és kazánház.
– Klímaberendezés, ami jelenleg javításra szorul.
– Villamos hálózat egy minimális része cserélve, érintésvédelmi relével. (Éjszakai áram, bővített 3 fázis).
– Összközműves + fúrt kút.
– Statikailag, és szerkezetileg remek állapot.
– Remek tájolás, egyedi hangulatú, világos, tágas lakótér.
Az épület beköltözhető, lakható állapotban várja új tulajdonosát, aki ízlése szerint kialakíthatja. a gépészete modernizálásra, és belső- külső esztétikai felújításra, befejezésre szorul.
Szimpatikus szomszédok. Emőd központja, iskola,
óvoda, orvosi rendelő, élelmiszerbolt pár perc alatt elérhető.
Rendezett, biztonságos település.
A kedvező ingatlan árak miatt kedvelt település Emőd. Miskolc közelsége, és a dinamikusan fejlődő település magával ragadó hangulata miatt sokan választják a környéket.
Így várhatóan, rövid ideig lesz elérhető a ház, az ingatlanpiacon.
Az ingatlan per, és tehermentes, szinte azonnal birtokba vehető.
További információért keressen bizalommal!
Irodánkban bank független hitellehetőségekkel, ingyenes Csok, Csok +, Fix 3%-os hitel, és Babaváró ügyintézéssel várjuk. Teljes körű ingyenes szolgáltatás! FIX 3% lakáshitelre megvehető
Tetszett ez az eladó Emődi felújítandó 5 szobás családi ház? Hívd fel a hirdetőt most, és tudj meg mindent erről az eladó családi házról! Ha gondolod nézelődj tovább az eladó ház Emőd oldal hirdetései között. Ennek az eladó háznak az ára 29900000 Ft és mivel az alapterülete 116 négyzetméter, ezért az átlagos négyzetméterára 257759 HUF/m2.
Az eladó házak menüpontban további hirdetések között is böngészhetsz. Ha van kedved, akkor böngészhetsz a Siroki Zoltán összes hirdetése között, vagy akár a/az Express ingatlan Kerek Edina Mária irodája összes hirdetése között is.

