Eladó újszerű állapotú ház - Érd
- INGYENES HIRDETÉS FELADÁS
Ingatlan adatai
- Eladó vagy kiadó:Eladó
- Település:Érd
- Kategória:Ház
- Alkategória:Családi ház
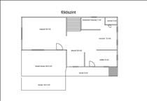
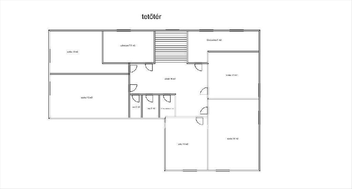
- Alapterület:350 m2
- Telekterület:920 m2
- Csere is:Nem
- Hirdető:Cég
- Élő videón megtekinthető:Nem
- Építés éve:2001
- Szobaszám:5
- Állapot:Újszerű, kitűnő
- Hány szintes az ingatlan:2 szintes
- Tetőtér:nincs megadva
- Komfortosság:nincs megadva
- Pince:nincs megadva
- Parkolási lehetőség:Teremgarázsban
- Fűtés:Elektromos
- Bútorozottság:nincs megadva
- Fényviszony:Napfényes
- Tájolás:nincs megadva
- Kilátás:nincs megadva
- Internet:nincs megadva
- Klíma:Van
- Akadálymentesített:nincs megadva
- Energiatanúsítvány:nincs megadva
- Villany:nincs megadva
- Víz:nincs megadva
- Gáz:nincs megadva
- Csatorna:nincs megadva
- Kapcsolatfelvétel

Terjék Nikolett Erzsébet
+36-(70)-941-9494
Mondd meg a hirdetőnek, hogy a megveszLAK-on találtad a hirdetést.
Referencia szám: M315453
Hitel ajánlatok
Ingatlan hirdetés leírása
Eladó Ház, Érd, Eladó újszerű állapotú ház - Érd
Eladó kétgenerációs, azonnal költözhető családi ház Érd zöldövezeti részén, parkvárosban.
Eladásra kínálunk 2001-ben, prémium alapanyagokból épült, 350 m2-es, kétgenerációs családi házat Érd egyik legkedveltebb, nyugodt, családias környékén.
Az ingatlan azonnal költözhető állapotban van, és kiváló választás nagycsaládosoknak, összeköltözőknek, vállalkozóknak vagy befektetőknek is.
Főbb jellemzők
Építés éve: 2001
Szerkezet: tégla
Tető: cserép
Fűtés: gázkazán + napelem-rendszer, így a rezsi minimális
Nyílászárók: tömör borovi fenyő, hőszigetelt üvegezéssel
Belső burkolatok: tölgy színű, eredeti fa lépcső, korlát és lambéria, nem laminált!
Központi porszívó rendszer
Beépített szennyesruha-kémény
Hatalmas Francia kandalló a nappaliban
Az ingatlanhoz tartozik egy teljes értékű melléképület, amely külön lakrészként is funkcionál, saját fürdőszobával, konyhával és lakószobával.
Tökéletes megoldás nagyszülők, felnőtt gyerekek számára, de irodaként vagy vendégházként is kiválóan hasznosítható.
Az ingatlan alsó szintje teljesen beépített, tökéletes otthoni iroda, munkahelység, vendég vagy akár teljes értékű lakószintnek.
Energiahatékonyság
A házra magas teljesítményű napelemrendszer lett telepítve, melynek köszönhetően a havi rezsi szinte elhanyagolható. a rendszer fedezi a ház elektromos energiaigényének jelentős részét.
Környezet és elhelyezkedés
Az ingatlan Érd egyik legkeresettebb részén, parkváros zöldövzeti, újépítésű részén található. Az utcában sorra épülnek az újépítésű házak, melyek közül kitűnik a 2000-s éve elején meditárran stílusban épített családi ház.
Közelben található:
Iskolák, óvodák, bölcsődék (5, 10 perc sétatávolság)
Élelmiszerboltok, pékség, gyógyszertár
Buszmegálló 3 perc sétára, közvetlen járat Budapest felé
Vasútállomás és autópálya-felhajtó (m7, m6) 5 perces autóúton belül
Érd központ, bevásárlóközpont, posta, orvosi rendelő mind elérhető közelségben
Extrák
Nagyméretű, térkövezett autóbeálló és fedett kocsibeálló
Tágas terasz és erkély
Igényesen kialakított fa konyhabútor és beépített szekrények
Gondozott, teljesen körbekerített telek
Csendes, rendezett aszfaltos utcafront, ahol minimális az átmenő forgalom
Kültéri nyílászárók anyagai:
Műszárított szibériai borovi fenyő
Szerkezeti jellemzők:
68 mm-es szerkezeti vastagság
Kétirányú, 4 vagy 6 rétegű tömítés
Szárnyszerkezetek színoldala hossztoldás nélküli
Szárnyszerkezet egy soros szilikonos gumitömítéssel
Tok- és vasalatszerkezet:
Tokszerkezet alumínium vízvetővel ellátva
Vasalatszerkezet: roto centro többpontos záródó vasalat
Üveg:
Hőszigetelt üveg: 6, 18, 4 mm-es, ragasztott biztonsági kivitel
Hőszigetelési érték: K = 1, 3 W/mK
Felületkezelés:
Lenolajkencés beeresztés (alapkezelés)
Beltéri ajtók anyagai
Tokszerkezet:
Utólag szerelhető 13 cm-es tokszerkezet, keményfa küszöbbel
Műszárított szibériai borovi fenyő
Szerkezeti felépítés:
Többrétegben ragasztott, 43 mm-es szerkezeti vastagság
Zár és vasalat:
Belső oldali zárszerkezet (kilincs és címtábla nélkül)
Díszes ajtópánt
Felületkezelés:
Lenolajkencés beeresztés Hitel.hu - Hasonlítsa össze a bankok lakáshitel ajánlatait

