Eladó jó állapotú ház - Érd
- INGYENES HIRDETÉS FELADÁS
Ingatlan adatai
- Eladó vagy kiadó:Eladó
- Település:Érd
- Kategória:Ház
- Alkategória:Családi ház
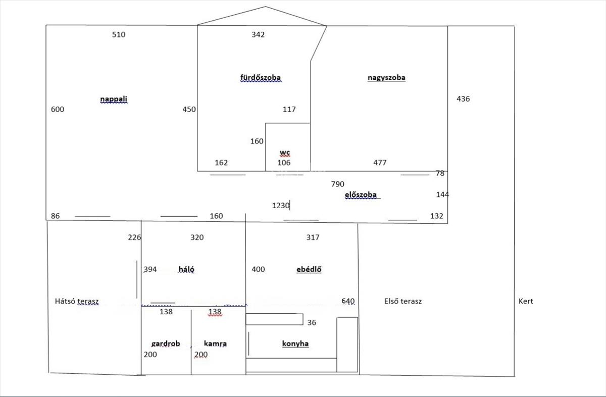
- Alapterület:195 m2
- Telekterület:850 m2
- Csere is:Nem
- Hirdető:Cég
- Élő videón megtekinthető:Nem
- Építés éve:2000
- Szobaszám:5
- Állapot:Jó állapotú
- Hány szintes az ingatlan:2 szintes
- Tetőtér:nincs megadva
- Komfortosság:nincs megadva
- Pince:nincs megadva
- Parkolási lehetőség:Garázsban
- Fűtés:Gáz (cirko)
- Bútorozottság:nincs megadva
- Fényviszony:nincs megadva
- Tájolás:nincs megadva
- Kilátás:nincs megadva
- Internet:nincs megadva
- Klíma:nincs megadva
- Akadálymentesített:nincs megadva
- Energiatanúsítvány:nincs megadva
- Villany:Van
- Víz:Van
- Gáz:Van
- Csatorna:Van
- Kapcsolatfelvétel

Dora Kriszta
+36-(70)-370-7396
Mondd meg a hirdetőnek, hogy a megveszLAK-on találtad a hirdetést.
Hitel ajánlatok
Ingatlan hirdetés leírása
--- ÉRD PARKVÁROSBAN, FANEVES UTCÁBAN TALÁLHATÓ, 2 GENERÁCIÓS ...
Érd parkvárosban, faneves utcában található, 2 generációs családi ház keresi új tulajdonosát ---
KÖRNYÉK:
ÉRD egyik legjobb részén található az ingatlan. Csendes, nyugodt mellékutca, rendezett környék, jó szomszédság.
Közlekedése kiváló. Pár perc sétával elérhető a buszmegálló, mely a Bem térig vagy bp Kelenföldi pályaudvarig közlekedik.
Autóval 15 perc alatt BP-en lehet.
HÁZ:
KÉT genereciós, a két lakás két külön szinten található. Mindkettő közvetlen KERTKAPCSOLATOS.
A ház szigetelt, stabil. Műszaki és statikai problémája nincsen.
Fűtése gázcirkó, padlófűtéssel a hidegburkolatos helyiségekben és radiátorral a szobákban.
Az ingatlan külső állapota jó, a beltér egyedi ízlés alapján felújítandó.
EMELETI lakás lakótere 130 nm.
Helyiségei:
- Konyha étkezővel
- Nappali
- 2 hálószoba
- Fürdőszoba
- WC
- Terasz és erkély kapcsolat
AZ emeleti lakás tetőtere beépithető, tovább nővelve a LAKÓTERET.
ALSÓ SZINT
Itt található a dupla garázs, 20 nm tároló és a 62 nm LAKÁS
LAKÁS HELYISÉGEI:
- Amerikai konyhás nappali
- Hálószoba
- Fürdőszoba
TELEK 850 nm
A kert gyönyörű, igazi kikapcsolódás az egész család számára, de külön hasznosítás esetén a kert is jól elszeparálható.
Szép fű, parkosított virágos kert.
A telek adottságai miatt mindkét lakásból közvetlen kertkapcsolat élvezhető.
Az ingatlan per-, teher- és igénymentes, 3 hónapos birtokbaadási határidővel költözhető.
További információkért, vagy megtekintéssel kapcsolatban keressen bizalommal!
AMENNYIBEN nem rendelkezik a teljes vételárral, segítünk Önnek megtalálni a legjobb megoldást!
BANKFÜGGETLEN hitelcentrumunk minden elérhető bank és hitelintézet ajánlatát versenyezteti az Ön kedvéért, ráadásul díjmentesen. Önnek nincs más dolga, mint elbeszélgetni munkatársunkkal, aki a hallott információk alapján versenyre hívja a bankokat, hogy Ön hosszú távon is a legjobb konstrukciót kaphassa. a legjobb ajánlatokból végül Ön választhatja ki a nyertest. Munkatársaink sokéves szakmai tapasztalattal várják Önt, előre egyeztetve akár a normál munkaidő után is. Hitel.hu - Hasonlítsa össze a bankok lakáshitel ajánlatait

