Eladó felújított ház - Érd
- INGYENES HIRDETÉS FELADÁS
Ingatlan adatai
- Eladó vagy kiadó:Eladó
- Település:Érd
- Kategória:Ház
- Alkategória:Családi ház
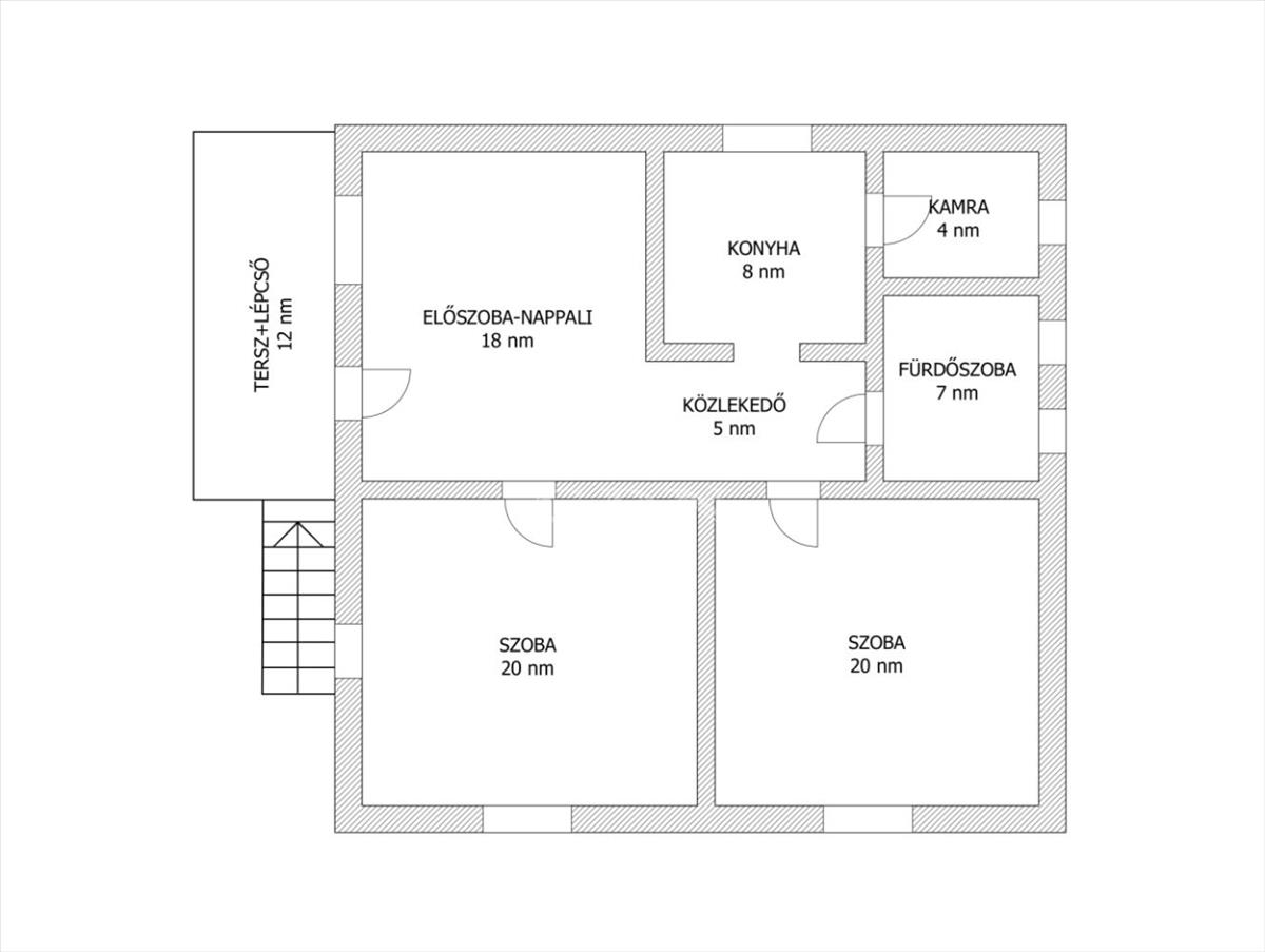
- Alapterület:100 m2
- Telekterület:685 m2
- Csere is:Nem
- Hirdető:Cég
- Élő videón megtekinthető:Nem
- Építés éve:1975
- Szobaszám:3
- Állapot:Felújított
- Hány szintes az ingatlan:Földszintes
- Tetőtér:nincs megadva
- Komfortosság:nincs megadva
- Pince:Van
- Parkolási lehetőség:Beállóban
- Fűtés:Gáz (cirko)
- Bútorozottság:nincs megadva
- Fényviszony:nincs megadva
- Tájolás:nincs megadva
- Kilátás:nincs megadva
- Internet:nincs megadva
- Klíma:nincs megadva
- Akadálymentesített:nincs megadva
- Energiatanúsítvány:nincs megadva
- Villany:Van
- Víz:Van
- Gáz:Van
- Csatorna:Van
- Kapcsolatfelvétel

Szalay Zsuzsanna
+36-(30)-895-1781
Mondd meg a hirdetőnek, hogy a megveszLAK-on találtad a hirdetést.
Hitel ajánlatok
Ingatlan hirdetés leírása
Érd, 685 nm-es telken felújított, napelemes, három szobás, föl...
Érd, 685 nm-es telken felújított, napelemes, három szobás, földszint + szuterénes, alacsony fenntartási költségű családi ház eladó.
Masszív építésű un. „Kádár-kocka” épület, 10 x 10 -es alapterülettel. Az épület szinte teljes egészében felújításra került az elmúlt 10-12 évben az energiahatékonysági szempontok figyelembe vételével.
Elvégzett korszerűsítés, felújítások:
Teljes elektromos hálózat cseréje, 3 fázis, 3 x 25 a, 380 V;
Napelem rendszer 4, 5 kW-os, öt évig még szaldóelszámolás alá esik. Költséghatékony, akár "0" Ft is lehet a villanyszámla. a napelemrendszer bővítve lett.
Fűtés: 2 db hűtő-fűtő klíma; fűtőpanel és vegyes tüzelésű kazán.
Teljes tetőfelújítás, 20 cm-es födémszigeteléssel, zsindely fedéssel.
Külső hőszigetelés 10 cm + gördülőszemcsés nemesvakolat. S
Új hő és hangszigetelt műa. Ablakok redőnnyel és szúnyoghálóval.
Új hideg (nappali, konyha, fürdőszoba és közlekedő) és melegburkolat (két hálószoba).
A 48 nm-es szuterén mennyezete és utcafrontja szintén szigetelve lett.
Az ingatlan utcafrontja új betonkerítést kapott.
A terasz burkolása még hátra van, de a burkolólapok megvannak hozzá.
Parkolás: kocsibeálló. Elektromos autó töltővel. Garázs elbontásra került, de visszaépíthető.
A kert 685 nm-es gyümölcs és díszfákkal beültetett.
Az ingatlan buszmegálló közelében található, városközpont (3, 5 km) közvetlen buszjárattal elérhető.
Amennyiben energiahatékony, alacsony fenntartási költséggel üzemelő ingatlant keres, akkor várom megtisztelő érdeklődését.
Amennyiben a vásárláshoz hitelt is igénybe szeretne venni, akkor
bankfüggetlen hitelcentrumunk minden elérhető bank és hitelintézet ajánlatát versenyezteti az Ön kedvéért, ráadásul díjmentesen. FIX 3% lakáshitelre megvehető

