Eladó felújítandó ház - Erdőkertes
- INGYENES HIRDETÉS FELADÁS
Ingatlan adatai
- Eladó vagy kiadó:Eladó
- Település:Erdőkertes
- Kategória:Ház
- Alkategória:Családi ház
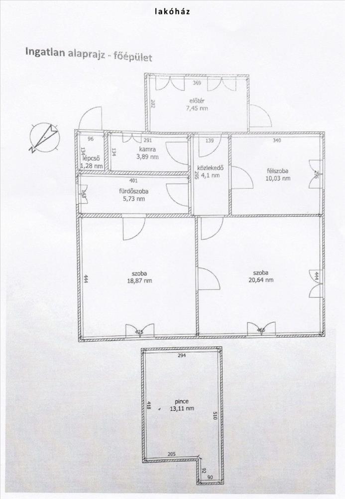
- Alapterület:72 m2
- Telekterület:1075 m2
- Csere is:Nem
- Hirdető:Magánszemély
- Élő videón megtekinthető:Nem
- Építés éve:1965
- Szobaszám:3
- Állapot:Felújítandó
- Hány szintes az ingatlan:Földszintes
- Tetőtér:Nem beépíthető
- Komfortosság:Félkomfortos
- Pince:Van
- Parkolási lehetőség:Udvaron
- Fűtés:Cserépkályha
- Bútorozottság:Bútorozatlan
- Fényviszony:Napfényes
- Tájolás:nincs megadva
- Kilátás:Utcai
- Internet:Nincs
- Klíma:nincs megadva
- Akadálymentesített:Nem akadálymentesített
- Energiatanúsítvány:nincs megadva
- Villany:Van
- Víz:Van
- Gáz:Utcában
- Csatorna:Utcában
- Kapcsolatfelvétel

Nagy Júlia
+36-(70)-670-1636
Mondd meg a hirdetőnek, hogy a megveszLAK-on találtad a hirdetést.
Hitel ajánlatok
Ingatlan hirdetés leírása
Eladó családi ház Erdőkertesen
Ingatlanosok, kérem, ne keressenek!
Érdeklődni kizárólag telefonon lehetséges.
Családi ház Erdőkertes központjában, tágas, szabályos telekkel eladó!
Erdőkertes központi, jól megközelíthető részén eladó egy 72 m²-es, felújítandó családi ház 34 m²-es melléképülettel, 1075 m²-es telken.
Telek jellemzői:
A telek szabályos téglalap alakú, kb. 19 Méter széles utcafronttal és 56–57 méter mélységgel. Három oldalról drótkerítéssel körbevett, szabadonálló beépítésű, mély előkerttel.
A kertben koros gyümölcsfák, szőlőtőkék, díszcserjék és gyümölcsbokrok találhatók, a terület átlagosan gondozott.
Épület és elhelyezkedés:
A ház szabadonálló elhelyezésű, a melléképület tárolásra, műhelynek vagy akár vendégház célra is alkalmas. a környék csendes, mégis központi – boltok, iskola, óvoda és buszmegálló pár perc sétával elérhető.
Közművek:
Az ingatlan részlegesen közművesített:
Villany (1×10 a) és vezetékes víz bevezetve.
Csatorna a telekre bekötve, de a ház még nincs rákötve.
Gázvezeték az utcában húzódik, a telekre nincs bevezetve.
Saját víz- és villanyórával rendelkezik.
Főbb adatok:
Lakóépület: 72 m²
Melléképület: 34 m²
Telek: 1075 m²
Állapot: felújítandó
Ár: 54, 9 M Ft
Remek elhelyezkedés, tágas, jól alakítható telek, sok zöldfelület – ideális választás azoknak, akik saját elképzelésük szerint szeretnék felújítani, bővíteni vagy újraálmodni otthonukat Erdőkertes kedvelt részén! FIX 3% lakáshitelre megvehető
Tetszett ez az eladó Erdőkertesi felújítandó 3 szobás családi ház? Hívd fel a hirdetőt most, és tudj meg mindent erről az eladó családi házról! Ha gondolod nézelődj tovább az eladó ház Erdőkertes oldal hirdetései között. Ennek az eladó háznak az ára 54900000 Ft és mivel az alapterülete 72 négyzetméter, ezért az átlagos négyzetméterára 762500 HUF/m2.
Az eladó házak menüpontban további hirdetések között is böngészhetsz. Ha van kedved, akkor böngészhetsz a Nagy Júlia összes hirdetése között.

