Eladó új építésű ház - Erdőkertes
- INGYENES HIRDETÉS FELADÁS
Ingatlan adatai
- Eladó vagy kiadó:Eladó
- Település:Erdőkertes
- Kategória:Ház
- Alkategória:Családi ház
- Alapterület:100 m2
- Telekterület:1100 m2
- Csere is:Nem
- Hirdető:Cég
- Élő videón megtekinthető:Nem
- Építés éve:2026
- Szobaszám:4
- Állapot:Új építésű
- Hány szintes az ingatlan:nincs megadva
- Tetőtér:nincs megadva
- Komfortosság:Összkomfortos
- Pince:nincs megadva
- Parkolási lehetőség:Beállóban
- Fűtés:nincs megadva
- Bútorozottság:nincs megadva
- Fényviszony:nincs megadva
- Tájolás:nincs megadva
- Kilátás:nincs megadva
- Internet:nincs megadva
- Klíma:nincs megadva
- Akadálymentesített:nincs megadva
- Energiatanúsítvány:nincs megadva
- Villany:Van
- Víz:Van
- Gáz:Van
- Csatorna:Van
- Kapcsolatfelvétel

Major Krisztina
+36-(20)-504-0399
Mondd meg a hirdetőnek, hogy a megveszLAK-on találtad a hirdetést.
Hitel ajánlatok
Ingatlan hirdetés leírása
ÖNÁLLÓ CSALÁDI HÁZ EXTRA NAGY TELEKKEL!! Erdőkertes 100 NM, 11...
Önálló családi ház extra nagy TELEKKEL! !
IGÉNYRE FORMÁLHATÓ! ! !
3% Otthon start hitellel megvásárolható, 30 % önrésszel!
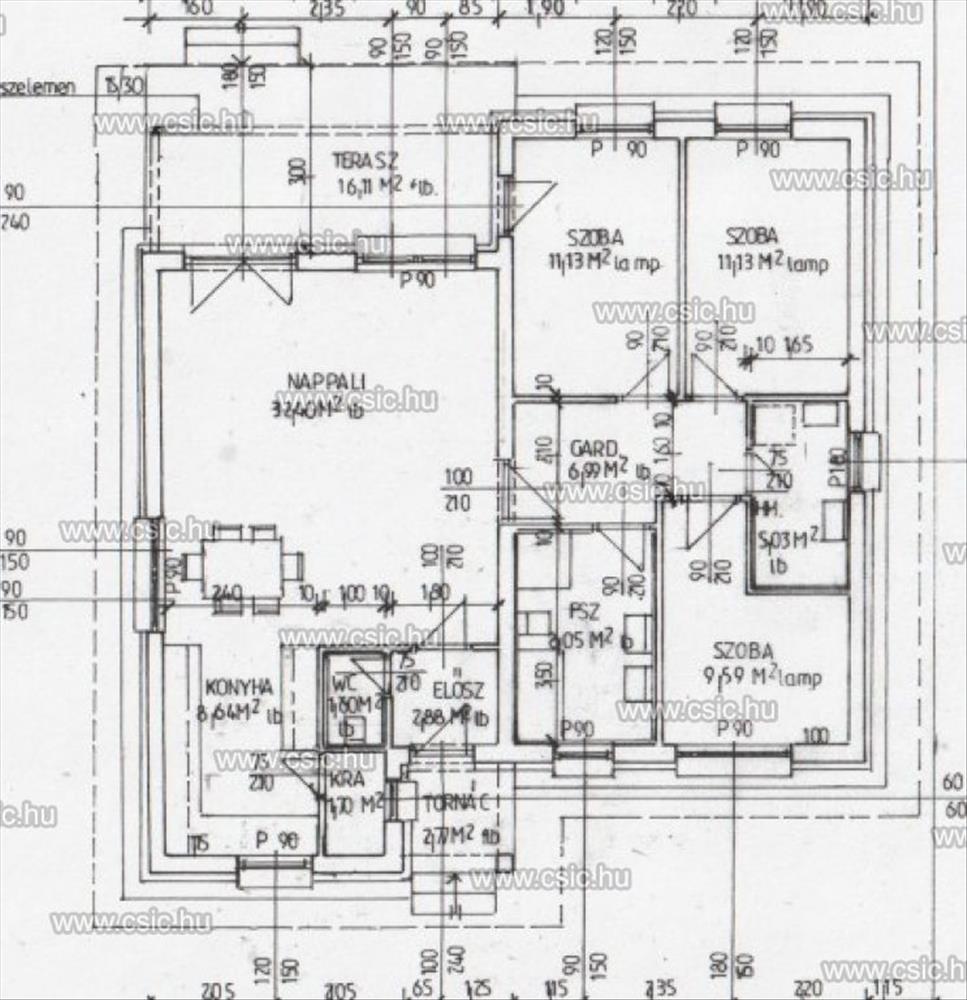
ERDŐKERTESEN, csendes utcában eladó egy új építésű, egyszintes, nettó 100 nm -es, Nappali + 3 szobás családi ház, 1100 nm -es telken.
A házban egy amerikai konyhás nappali: 41 nm , 3 hálószoba, háztartási helyiség: 5, 03 nm , fürdőszoba: 8, 05 nm , wc: 1, 7 nm , közlekedő, előszoba: 3, 26 nm , és egy 16, 11 nm -es kertkapcsolatos terasz kerül kialakításra.
A terv igény szerint még alakítható! ! !
Műszaki tartalomból:
- 30 pth téglából
- 10 cm dryvit szigetelés
- Bramac cserép
- Műanyag hőszigetelt nyílászáró
- járda és gépkocsi beálló
- Hőszivattyús fűtés, padlófűtéssel!
Ha ingatlan vásárláshoz még el kell adnia ingatlanát, kedvezményesen vállaljuk annak értékesítését!
Ha vásárláshoz hitelre van szüksége, ingyenesen segítünk önnek megtalálni a piacon fellelhető legkedvezőbb hitelkonstrukciót.
Miért érdemes velünk vásárolni?
Teljes körű, díjmentes hiteltanácsadás
Gyors és rugalmas ügyintézés
Megbízható ügyvédi háttér
Tapasztalt, professzionális értékesítési támogatás
Végig kísérjük a teljes folyamaton a megtekintéstől a birtokbaadásig Nálunk a vásárlás nem stressz, hanem biztonságos és átlátható folyamat.
Amennyiben egy modern, energiahatékony, hosszú távon is értékálló otthont keres alacsony fenntartási költséggel, keressen bizalommal! FIX 3% lakáshitelre megvehető
Tetszett ez az eladó Erdőkertesi új építésű 4 szobás családi ház? Hívd fel a hirdetőt most, és tudj meg mindent erről az eladó családi házról! Ha gondolod nézelődj tovább az eladó ház Erdőkertes oldal hirdetései között. Ennek az eladó háznak az ára 85000000 Ft és mivel az alapterülete 100 négyzetméter, ezért az átlagos négyzetméterára 850000 HUF/m2.
Az eladó házak menüpontban további hirdetések között is böngészhetsz. Ha van kedved, akkor böngészhetsz a Major Krisztina összes hirdetése között, vagy akár a/az Családi Ingatlan összes hirdetése között is.

