Eladó felújítandó ház Fehérgyarmat
| Kedvencbe | Megosztás | Árfigyelő |
| FIX 3% lakáshitelre megvehető | ||
| 26 500 000 HUF | ||
Ingatlan adatai
- Eladó vagy kiadó:Eladó
- Település:Fehérgyarmat
- Kategória:Ház
- Alkategória:Családi ház
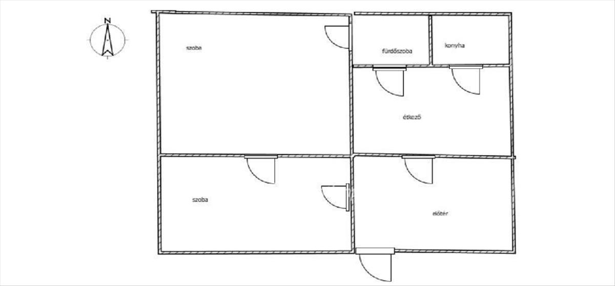
- Alapterület:56 m2
- Telekterület:1083 m2
- Csere is:Nem
- Hirdető:Cég
- Élő videón megtekinthető:Nem
- Építés éve:1970
- Szobaszám:2
- Állapot:Felújítandó
- Hány szintes az ingatlan:Földszintes
- Tetőtér:nincs megadva
- Komfortosság:nincs megadva
- Parkolási lehetőség:Udvaron
- Fűtés:Gáz (konvektor)
- Bútorozottság:nincs megadva
- Fényviszony:Jó
- Tájolás:nincs megadva
- Kilátás:nincs megadva
- Internet:nincs megadva
- Akadálymentesített:nincs megadva
- Energiatanúsítvány:nincs megadva
- Villany:nincs megadva
- Víz:nincs megadva
- Gáz:nincs megadva
- Csatorna:nincs megadva
- Üzenetküldés
- Hívás

Kissné Orosz Ildikó Kr...
Mondd meg a hirdetőnek, hogy a megveszLAK-on találtad a hirdetést.
Referencia szám: M319404

Hitel ajánlat
Ingatlan hirdetés leírása
Eladó Ház, Fehérgyarmat
Fehérgyarmat főutcáján eladó 2 szobás családi ház? 1083? Nm telek, felújítás alatt álló fürdőszoba, meleg otthon!Fehérgyarmat központjában, főutcai elhelyezkedéssel, kínáljuk eladásra ezt a 2 szobás, családi házat, mely 1083? Nm-es telken helyezkedik el. a ház felújítandó, de komfortos, a fürdőszoba éppen átmegy egy modern felújításon, így hamar használható, a ház többi részét pedig saját ízlésed szerint alakíthatod.
A fa nyílászárók kellemes hangulatot adnak, miközben hozzájárulnak a hőszigeteléshez, a gázkonvektor és a cserépkályha pedig biztosítja a kellemes meleget a hideg hónapokban. a tágas telek lehetőséget ad kert, konyhakert vagy akár garázs kialakítására.
Miért érdemes megvásárolni?
Akár azonnal lakható, vagy akár felújításra kész? Alakítsd saját ízlésed szerint
1083? Nm-es telek? Kertkapcsolat, privát tér és szabad lehetőségek
Felújítás alatt álló fürdőszoba? a komfort már biztosított
Meleg otthon: gázkonvektor + cserépkályha
Fa nyílászárók? Hangulatos és praktikus
remek belépő lehetőség első saját otthonhoz vagy befektetésre
Főutcai elhelyezkedés? Központi, mégis nyugodt környezet
Ajánljuk:
Családoknak, akik saját otthonukat szeretnék kialakítani
Befektetőknek, akik felújítanák és kiadnák
Első lakást vásárlóknak, akik központi, de nyugodt helyen keresnek otthont
Banki hátterünknek köszönhetően finanszírozási igényekben (pl. Otthon Start Hitelprogram, Babaváró, CSOK Plusz, Lakáshitel, Személyi kölcsön stb. ), Tekintetében is díjmentesen, soron kívüli ügyintézéssel segítem ügyfeleim! Ez a ház ideális választás mindazok számára, akik szeretnének egy saját ízlésre formálható vagy akár szinte azonnal költözhető költözhető otthont, ahol a külső megjelenést teljesen a saját stílusukra formálhatják. Kosvárosi életre vágyóknak, akik nagy kertet és kényelmes házat szeretnének
Referenciaszám: m319404 FIX 3% lakáshitelre megvehető

