Eladó újszerű állapotú ház Feldebrő
| Kedvencbe | Megosztás | Árfigyelő |
| FIX 3% lakáshitelre megvehető | ||
| 26 000 000 HUF | ||
Ingatlan adatai
- Eladó vagy kiadó:Eladó
- Település:Feldebrő
- Kategória:Ház
- Alkategória:Családi ház
- Alapterület:83 m2
- Telekterület:713 m2
- Csere is:Nem
- Hirdető:Cég
- Élő videón megtekinthető:Nem
- Építés éve:2001
- Szobaszám:2 + 1 fél
- Állapot:Újszerű, kitűnő
- Hány szintes az ingatlan:2 szintes
- Tetőtér:nincs megadva
- Komfortosság:nincs megadva
- Parkolási lehetőség:Teremgarázsban
- Fűtés:Gáz (konvektor)
- Bútorozottság:nincs megadva
- Fényviszony:Napfényes
- Tájolás:nincs megadva
- Kilátás:nincs megadva
- Internet:nincs megadva
- Klíma:Van
- Akadálymentesített:nincs megadva
- Energiatanúsítvány:nincs megadva
- Villany:nincs megadva
- Víz:nincs megadva
- Gáz:nincs megadva
- Csatorna:nincs megadva
- Üzenetküldés
- Hívás

Herger-Varga Hajnalka
Mondd meg a hirdetőnek, hogy a megveszLAK-on találtad a hirdetést.
Referencia szám: M319580

Hitel ajánlat
Ingatlan hirdetés leírása
Eladó Ház, Feldebrő, Eladó újszerű állapotú ház - Feldebrő
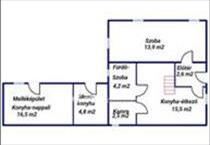
Szeretne a Mátra alján, egy csendes borvidéki faluban élni? Eladóvá vált Feldebrő egyik legcsendesebb pontján, egy zsákutca végén fekvő, tégla építésű családi ház. Ez az ingatlan a privát szféra és a vidéki nyugalom kedvelőinek ideális választása, ahol a telek természetes határát a kert végében húzódó patakmeder adja.Az ingatlan elosztása (összesen 83, 4 m2):
Az épületegyüttes két külön bejáratú egységből áll, ami kiválóan alkalmas generációk együttélésére vagy akár különálló hobbi-lakrész kialakítására:
Főépület: a földszinten konyha-étkező, szoba, fürdőszoba és kamra található. Az emeleten (tetőtérben) két további szoba és egy wc kapott helyet.
Melléképület: 16, 5 m2-es külön lakrész, amerikai konyhás nappalival és mosókonyhával.
Felszereltség és kert:
Kényelem: Az ingatlan klímával, valamint elektromos nagykapuval és elektromos garázsajtóval felszerelt.
Gazdálkodás: a kertben termő gyümölcsfák és egy gondozott konyhakert található. Az öntözést saját fúrt kút biztosítja, így a kert fenntartása költséghatékony.
Fűtés: Gázkonvektoros fűtés (a tetőtérben kéményes kivezetéssel).
Lokáció:
Az utca végén való elhelyezkedés garantálja a csendet, miközben minden fontos intézmény (bolt, busz, iskola, orvos) 5 perces sétával elérhető. a házzal szemben fodrászat működik, a kertnek pedig csak egyetlen közvetlen szomszédja van.
Amennyiben felkeltette érdeklődését az ingatlan, jöjjön el és győződjön meg személyesen is a leírtakról! Ingatlanirodánk ügyvédi háttérrel, csok, babaváró hitel, valamint kamatkedvezményes hitel ügyintézésével támogatja ügyfelei ingatlanvásárlását! Kérem érdeklődéskor hivatkozzon az m319580 számra.
Várom hívását, akár hétvégén is.
Referencia szám: m319580 FIX 3% lakáshitelre megvehető

