Eladó új építésű ház - Felpéc
- INGYENES HIRDETÉS FELADÁS
Ingatlan adatai
- Eladó vagy kiadó:Eladó
- Település:Felpéc
- Kategória:Ház
- Alkategória:Családi ház
- Alapterület:92 m2
- Telekterület:632 m2
- Csere is:Nem
- Hirdető:Cég
- Élő videón megtekinthető:Nem
- Építés éve:2025
- Szobaszám:4
- Állapot:Új építésű
- Hány szintes az ingatlan:nincs megadva
- Tetőtér:nincs megadva
- Komfortosság:nincs megadva
- Pince:nincs megadva
- Parkolási lehetőség:nincs megadva
- Fűtés:Gáz (cirko)
- Bútorozottság:nincs megadva
- Fényviszony:nincs megadva
- Tájolás:DK
- Kilátás:Kertre néző
- Internet:nincs megadva
- Klíma:nincs megadva
- Akadálymentesített:nincs megadva
- Energiatanúsítvány:nincs megadva
- Villany:Van
- Víz:Van
- Gáz:Van
- Csatorna:Van
- Kapcsolatfelvétel

Balogh János
+36-(30)-651-4841
Mondd meg a hirdetőnek, hogy a megveszLAK-on találtad a hirdetést.
Hitel ajánlatok
Ingatlan hirdetés leírása
Győrtől 20 km-re Felpécen, Új parcellázású részen, újonnan épü...
Győrtől 20 km-re Felpécen, Új parcellázású részen, újonnan épülő, igényes kialakítású, tégla építésű családi ház leköthető.
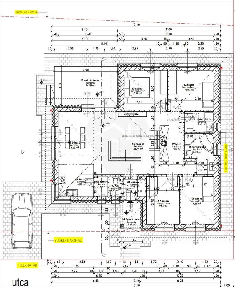
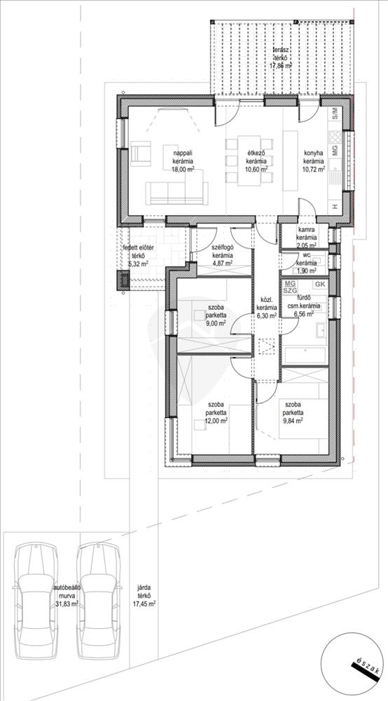
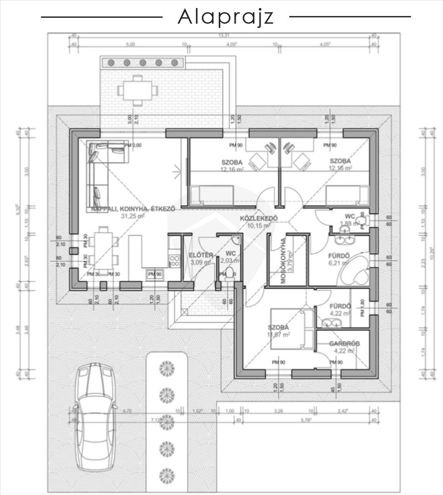
A nappali + három szobával(vagy akár 4 szobával) rendelkező ingatlan alapterülete nettó 92 m2 + 18 m2-es terasz, mely igény szerint módosítható.
A praktikusan tervezett házban a szobákon kívül tágas és napfényes amerikai konyhás nappali, gardrób, kamra, szélfogó, közlekedő, fürdőszoba+wc, háztartási helyiség és külön mellékhelyiség is kialakításra kerül.
Az élhető méretű telek összesen 632 m2-es, mely 30%-ban beépíthető.
A feltüntetett vételár az emelt szintű fűtés kész árat és a telek árát tartalmazza, de igény esetén kulcsra kész befejezésre is van lehetőség!
Az otthon melegéről Bosch Condens kombi gázkazán gondoskodik, a hőleadás padlófűtés és radiátorok kombinációja, de a fűtésrendszer is az ügyfél igényei alapján módosítható.
A részletes műszaki leírást kérésére e-mailben elküldöm.
Más az elképzelése? Válassza ki Ön a saját elképzeléseinek megfelelő alaprajzot!
Amennyiben teljesen egyedi tervezést szeretne, az is lehetséges!
A képek látványtervek.
Jól átgondolt tervezés, megfelelő szakmai tudás és háttér garantálja a minőségi otthon megvalósítását!
További kérdés esetén állok rendelkezésére!
Amennyiben megbízható építtetőt szeretne, referenciamunkákkal, minőségi anyagokkal és kivitelezéssel, hívjon bizalommal akár hétvégén is!
Teljes körű ügyintézéssel:
- ügyvéd
- biztosítás
- hiteltanácsadás
- Generálkivitelezés
- teljeskörű ingatlanfelújítás
- csok, babváró, áfa visszaigénylés - állunk rendelkezésére! FIX 3% lakáshitelre megvehető
Tetszett ez az eladó Felpéci új építésű 4 szobás családi ház? Hívd fel a hirdetőt most, és tudj meg mindent erről az eladó családi házról! Ha gondolod nézelődj tovább az eladó ház Felpéc oldal hirdetései között. Ennek az eladó háznak az ára 63900000 Ft és mivel az alapterülete 92 négyzetméter, ezért az átlagos négyzetméterára 694565 HUF/m2.
Az eladó házak menüpontban további hirdetések között is böngészhetsz. Ha van kedved, akkor böngészhetsz a Balogh János összes hirdetése között, vagy akár a/az B&B Ingatlaniroda összes hirdetése között is.

