Eladó jó állapotú ház Felsőzsolca
| Kedvencbe | Megosztás | Árfigyelő |
| FIX 3% lakáshitelre megvehető | ||
| 99 900 000 HUF | ||
Ingatlan adatai
- Eladó vagy kiadó:Eladó
- Település:Felsőzsolca
- Kategória:Ház
- Alkategória:Családi ház
- Alapterület:145 m2
- Telekterület:1079 m2
- Csere is:Nem
- Hirdető:Cég
- Élő videón megtekinthető:Nem
- Szobaszám:3 + 1 fél
- Állapot:Jó állapotú
- Hány szintes az ingatlan:nincs megadva
- Tetőtér:nincs megadva
- Komfortosság:nincs megadva
- Parkolási lehetőség:nincs megadva
- Fűtés:nincs megadva
- Bútorozottság:nincs megadva
- Fényviszony:nincs megadva
- Tájolás:nincs megadva
- Kilátás:nincs megadva
- Internet:nincs megadva
- Akadálymentesített:nincs megadva
- Energiatanúsítvány:nincs megadva
- Villany:nincs megadva
- Víz:nincs megadva
- Gáz:nincs megadva
- Csatorna:nincs megadva
- Üzenetküldés
- Hívás


Hitel ajánlat
Ingatlan hirdetés leírása
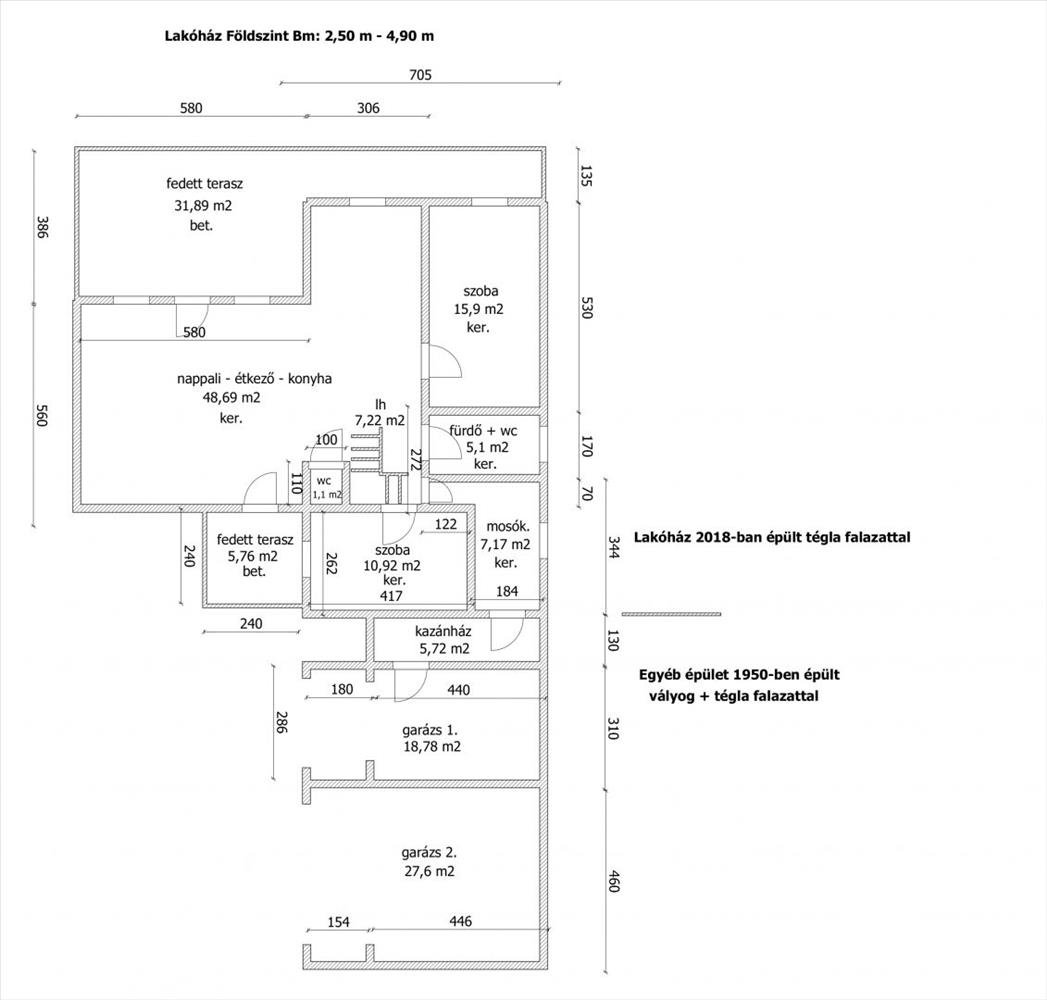
Eladó 145 m2 családi ház, Felsőzsolca
Eladó energiatakarékos családi ház Felsőzsolca, csendes, kertvárosi utcájában.Az ingatlan jellemzői:
- a családi ház 145 m2 alapterületű, földszint + beépített tetőtér kialakítású
- Falazata 38-as Porotherm tégla, + 20 cm-es nikecell hőszigetelés, nemesvakolattal
- a mennyezeti hőszigetelés 30 cm kőzetgyapot
- Fűtése és melegvíz ellátása levegő hőszivattyúval megoldott, 1000 literes hőtárolóval, padlófűtéssel
- a nappali - étkező térben beépítésre került egy öntvény kandalló, valamint egy 3, 2 kilowattos inverteres, hűtő-fűtő klíma is felszerelésre került
- a 7 kilowattos napelem rendszernek köszönhetően az elmúlt egy év villanyszámlája 11 000 Ft volt
- Az épület biztonságáról kültéri, mobilról látható kamera rendszer gondoskodik
- Az udvar utcafronti része díszkő burkolattal ellátott és parkosított, míg a hátsó része füvesített, 18 db gyümölcsfával beültetett
- Az utcafronti 1950-ben épült vegyes falazatú 52 m2-es melléképületben találhatóak a gépészeti berendezések, valamint a távirányítású garázsajtókkal felszerelt két állású garázs
Az ingatlanra CSOK és Hitel is igénybe vehető.
Irányár: 99 900 000 Ft
(hivatkozási szám: m105753) FIX 3% lakáshitelre megvehető

