Eladó jó állapotú ház Fót
| Kedvencbe | Megosztás | Árfigyelő |
| FIX 3% lakáshitelre megvehető | ||
| 150 000 000 HUF | ||
Ingatlan adatai
- Eladó vagy kiadó:Eladó
- Település:Fót
- Kategória:Ház
- Alkategória:Családi ház
- Alapterület:215 m2
- Telekterület:875 m2
- Csere is:Nem
- Hirdető:Cég
- Élő videón megtekinthető:Nem
- Építés éve:1986
- Szobaszám:3 + 3 fél
- Állapot:Jó állapotú
- Hány szintes az ingatlan:3 szintes
- Tetőtér:nincs megadva
- Komfortosság:nincs megadva
- Parkolási lehetőség:Udvaron
- Fűtés:Gáz (cirko)
- Bútorozottság:nincs megadva
- Fényviszony:Napfényes
- Tájolás:DK
- Kilátás:nincs megadva
- Internet:nincs megadva
- Klíma:Van
- Akadálymentesített:nincs megadva
- Energiatanúsítvány:nincs megadva
- Villany:Van
- Víz:Van
- Gáz:Van
- Csatorna:Van
- Üzenetküldés
- Hívás

Tamásné Mocsári Ildikó
Mondd meg a hirdetőnek, hogy a megveszLAK-on találtad a hirdetést.
Referencia szám: M309101

Hitel ajánlat
Ingatlan hirdetés leírása
Eladó Ház, Fót, Eladó jó állapotú ház - Fót
Eladó két generációs családi ház FÓTON! ! !Fót, Kisalag részén eladó egy 875 nm-es öszközműves telken lévő 3 szintes, 2 generációs, 215 nm-es csaldi ház.
Az ingatlan csendes, aszfaltos, átmenő forgalomtól mentes utcában található.
A szuterénben kapott helyet a mosókonyha, az edzőterem, több tároló helység és a garázs.
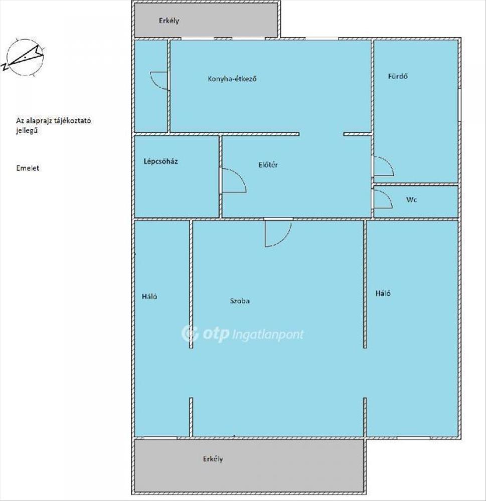
A földszinten több hálószoba, konyha, étkező és a vizesblokkok, az emeleti részen, szobák, konyha és természetesen fürdő és wc is van.
Rendezett szép kert, ahol egy jakuzzit is találunk - wellness nap bármikor.
Fűtés, ahogy szeretné: gázcirkó, vegyestüzelésű kazán és 4 db hűtő-fűtő klíma áll rendelkezésre.
Villanyháhózat néhány éve felújítva, 3 fázis bevezetve.
Műanyag nyílászárók, melyek redőnnyel és szúnyoghálóval szereltek.
Óvoda, iskola, közért, buszmegálló karnyújtásnyira.
m2 autópálya 2 percre, így Budapest könnyen megközelíthető.
Kiváló választás összeköltözőknek, nagycsaládosoknak, vagy azoknak, akik tágas tereket és nyugodt környéket keresnek.
Várom hívását a hét minden napján 9-20 h között.
Nézzük meg együtt a leendő otthonát.
Ügyfeleink részére teljes banki és jogi háttérrel állunk rendelkezésre.
Referencia szám: m309101-ml FIX 3% lakáshitelre megvehető

