- >>
- eladó ingatlanok
- >>
- eladó ház
- >>
- eladó ház Gádoros
- >>
Eladó felújítandó ház - Gádoros
| | |||
| Kedvencnek jelölöm | Elküldöm emailben | Megosztás | Szavazás |
| FIX 3% lakáshitelre megvehető | |||
| 16 000 000 HUF | |||
Ingatlan adatai
- Eladó vagy kiadó:Eladó
- Település:Gádoros
- Kategória:Ház
- Alkategória:Családi ház
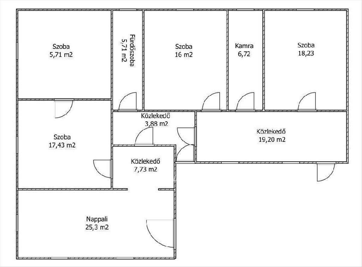
- Alapterület:130 m2
- Telekterület:1457 m2
- Csere is:Nem
- Hirdető:Cég
- Élő videón megtekinthető:Nem
- Építés éve:1950
- Szobaszám:4
- Állapot:Felújítandó
- Hány szintes az ingatlan:Földszintes
- Tetőtér:nincs megadva
- Komfortosság:nincs megadva
- Parkolási lehetőség:Teremgarázsban
- Fűtés:Gáz (konvektor)
- Bútorozottság:nincs megadva
- Fényviszony:Közepes
- Tájolás:nincs megadva
- Kilátás:nincs megadva
- Internet:nincs megadva
- Akadálymentesített:nincs megadva
- Energiatanúsítvány:nincs megadva
- Villany:nincs megadva
- Víz:nincs megadva
- Gáz:nincs megadva
- Csatorna:nincs megadva
- Üzenetküldés
- Hívás

Referencia szám: M298309

Hitel ajánlat
Ingatlan hirdetés leírása
Eladó Ház, Gádoros, Eladó felújítandó ház - Gádoros
Eladásra kínálom Békés vármegyében Gádoroson, ezt a 1457 m2 es telken lévő 130 m2 -es házat. Az ingatlan korszerűsítésre szorul, így saját igényei szerint alakíthatja ki leendő otthonát! Fűtése gázkonvektoros, falazata vegyes. a házban található 4 szoba és egy nappali, konyha és fürdőszoba.Közelben található bolt, étterem és buszmegálló is. Ideális nagy családosoknak, a vidéki nyugalom kedvelőinek!
Legyen Ön is megbízónk, és adja el rajtunk keresztül ingatlanát! Kedvező hitel ajánlatokkal (babaváró hitel, piaci hitel, és szabadfelhasználású hitel) várjuk jelentkezését. Számos konstrukció közül választhatnak. Irodáink Szentes, Petőfi utca 12. (A buszmegálló felől) és Csongrád, Fő utca 54. Szám alatt várja a személyes érdeklődőket. ***Válasszuk ki együtt az önnek legmegfelelőbb ajánlatot banki sorban állás nélkül! ***
Referencia szám: m298309 FIX 3% lakáshitelre megvehető

