- >>
- eladó ingatlanok
- >>
- eladó ház
- >>
- eladó ház Gádoros
- >>
Eladó felújítandó ház - Gádoros
| | |||
| Kedvencnek jelölöm | Elküldöm emailben | Megosztás | Szavazás |
| FIX 3% lakáshitelre megvehető | |||
| 16 000 000 HUF | |||
Ingatlan adatai
- Eladó vagy kiadó:Eladó
- Település:Gádoros
- Kategória:Ház
- Alkategória:Családi ház
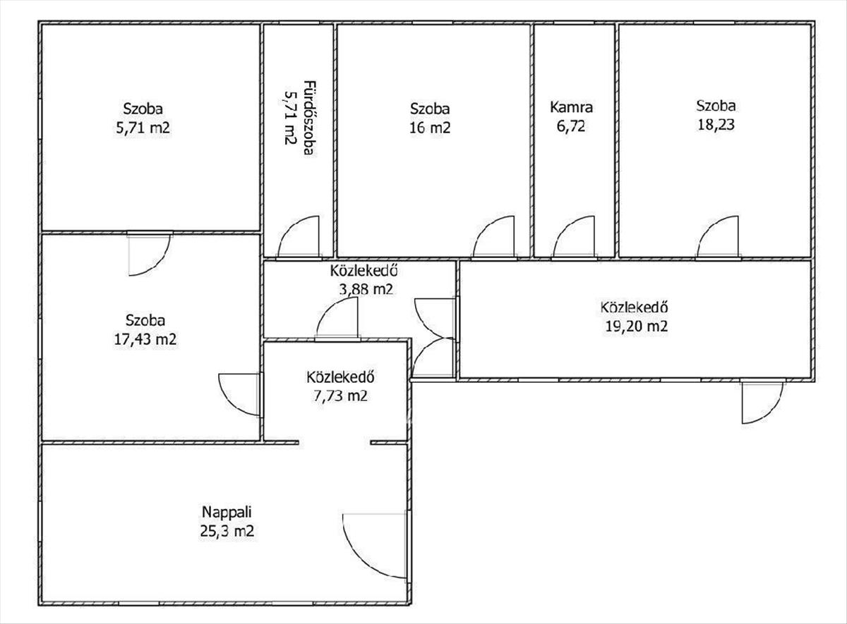
- Alapterület:130 m2
- Telekterület:1457 m2
- Csere is:Nem
- Hirdető:Cég
- Élő videón megtekinthető:Nem
- Építés éve:1950
- Szobaszám:4
- Állapot:Felújítandó
- Hány szintes az ingatlan:Földszintes
- Tetőtér:nincs megadva
- Komfortosság:nincs megadva
- Parkolási lehetőség:Teremgarázsban
- Fűtés:Gáz (konvektor)
- Bútorozottság:nincs megadva
- Fényviszony:Közepes
- Tájolás:nincs megadva
- Kilátás:nincs megadva
- Internet:nincs megadva
- Akadálymentesített:nincs megadva
- Energiatanúsítvány:nincs megadva
- Villany:nincs megadva
- Víz:nincs megadva
- Gáz:nincs megadva
- Csatorna:nincs megadva
- Üzenetküldés
- Hívás

Referencia szám: M298309

Hitel ajánlat
Ingatlan hirdetés leírása
Eladó Ház, Gádoros, Eladó felújítandó ház - Gádoros
Eladásra kínálom Békés vármegyében Gádoroson, ezt a 1457 m2 es telken lévő 130 m2 -es házat. Az ingatlan korszerűsítésre szorul, így saját igényei szerint alakíthatja ki leendő otthonát! Fűtése gázkonvektoros, falazata vegyes. a házban található 4 szoba és egy nappali, konyha és fürdőszoba.Közelben található bolt, étterem és buszmegálló is. Ideális nagy családosoknak, a vidéki nyugalom kedvelőinek!
Legyen Ön is megbízónk, és adja el rajtunk keresztül ingatlanát! Kedvező hitel ajánlatokkal (babaváró hitel, piaci hitel, és szabadfelhasználású hitel) várjuk jelentkezését. Számos konstrukció közül választhatnak. ***Válasszuk ki együtt az önnek legmegfelelőbb ajánlatot banki sorban állás nélkül! ***
Referencia szám: m298309-ml FIX 3% lakáshitelre megvehető

