Eladó átlagos állapotú ház - Galgahévíz
- INGYENES HIRDETÉS FELADÁS
Ingatlan adatai
- Feladva:45 napja a megveszLAK-on
- Eladó vagy kiadó:Eladó
- Település:Galgahévíz
- Kategória:Ház
- Alkategória:Családi ház
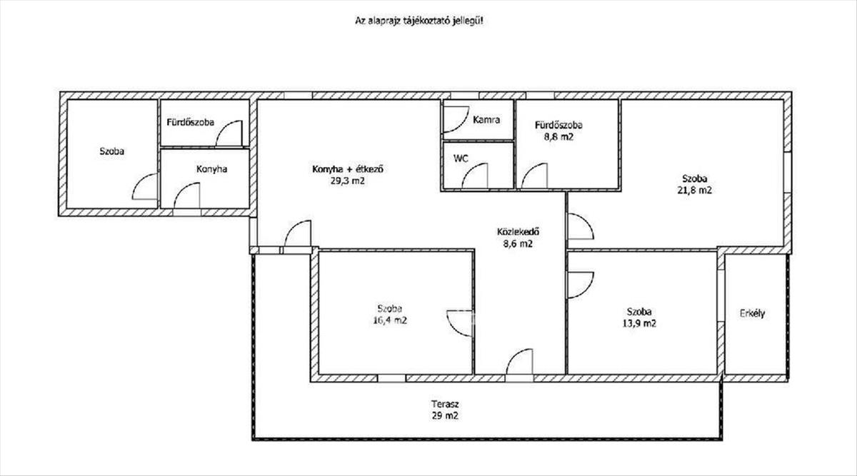
- Alapterület:101 m2
- Telekterület:474 m2
- Csere is:Nem
- Hirdető:Cég
- Élő videón megtekinthető:Nem
- Építés éve:1987
- Szobaszám:3
- Állapot:Átlagos állapotú
- Hány szintes az ingatlan:Földszintes
- Tetőtér:nincs megadva
- Komfortosság:nincs megadva
- Pince:nincs megadva
- Parkolási lehetőség:Udvaron
- Fűtés:Gáz (cirko)
- Bútorozottság:nincs megadva
- Fényviszony:Jó
- Tájolás:nincs megadva
- Kilátás:nincs megadva
- Internet:nincs megadva
- Klíma:nincs megadva
- Akadálymentesített:nincs megadva
- Energiatanúsítvány:nincs megadva
- Villany:nincs megadva
- Víz:nincs megadva
- Gáz:nincs megadva
- Csatorna:nincs megadva
- Kapcsolatfelvétel

Szabó Sándor
+36-(20)-220-4440
Mondd meg a hirdetőnek, hogy a megveszLAK-on találtad a hirdetést.
Referencia szám: M323755
Hitel ajánlatok
Ingatlan hirdetés leírása
Eladó Ház, Galgahévíz
Tágas családi ház eladó Galgahévízen kétgenerációs lehetőséggel!
Megvételre kínálok Galgahévízen, egy csendes mellékutcában található, 101 nm -es alapterületű családi házat, 474 nm -es telken. Az ingatlan 1987-ben épült szilikát falazattal, szerkezetileg stabil, belső részek felújítandó állapotúak, így új tulajdonosa saját igényei szerint alakíthatja.
A főépületben 3 kényelmes hálószoba található, a belső terek tágasak és jól kihasználhatók.
A telken külön melléképület is található, amelyben egy önálló, egyszobás lakás került kialakításra. Ez ideális megoldás lehet két generáció együttélésére, vendéglakásként, vagy akár kiadásra is.
Műszaki jellemzők:
-Fűtés: gázkazán radiátoros hőleadással
-Alternatív fűtés: vegyestüzelésű kazán
-Összközműves ingatlan: víz, villany, gáz, csatorna
-Falazat: szilikát
-Állapot: felújítandó
- Tetőtér beépíthető
- Födémen 25 cm szigetelés
Főbb előnyök:
-101 nm -es lakótér + különálló lakrész
-474 nm -es telek, könnyen gondozható méret
-Kétgenerációs elrendezés lehetősége
-Csendes, nyugodt környezet
-Egyéni igényekre szabható kialakítás
Ne hagyja ki ezt a kiváló adottságú ingatlant, amely remek lehetőséget kínál akár nagyobb családok, akár befektetők számára!
Az ingatlan jelenleg csak Falusi CSOK-ra és Piaci hitelre alkalmas!
További információért és megtekintésért keressen bizalommal, akár hétvégén is!
Energetikai tanúsítvány még nem áll rendelkezésre.
Az energetikai tanúsítvány készítése folyamatban van, amint rendelkezésre áll, úgy azzal a hirdetés frissítésre kerül.
Érd. : Szabó Sándor +3620-220 4440
Referencia szám: m323755-ml FIX 3% lakáshitelre megvehető
Tetszett ez az eladó Galgahévízi átlagos állapotú 3 szobás családi ház? Hívd fel a hirdetőt most, és tudj meg mindent erről az eladó családi házról! Ha gondolod nézelődj tovább az eladó ház Galgahévíz oldal hirdetései között. Ennek az eladó háznak az ára 38000000 Ft és mivel az alapterülete 101 négyzetméter, ezért az átlagos négyzetméterára 376238 HUF/m2.
Az eladó házak menüpontban további hirdetések között is böngészhetsz. Ha van kedved, akkor böngészhetsz a Szabó Sándor összes hirdetése között, vagy akár a/az OTPip Gregoryan Artur összes hirdetése között is.

