Eladó jó állapotú ház - Gégény
- INGYENES HIRDETÉS FELADÁS
Ingatlan adatai
- Eladó vagy kiadó:Eladó
- Település:Gégény
- Kategória:Ház
- Alkategória:Családi ház
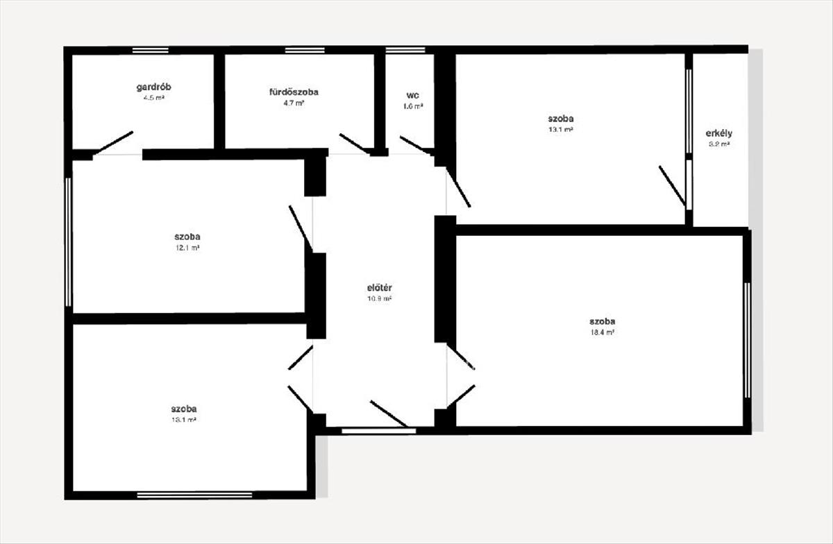
- Alapterület:164 m2
- Telekterület:947 m2
- Csere is:Nem
- Hirdető:Cég
- Élő videón megtekinthető:Nem
- Építés éve:1983
- Szobaszám:5
- Állapot:Jó állapotú
- Hány szintes az ingatlan:2 szintes
- Tetőtér:nincs megadva
- Komfortosság:nincs megadva
- Pince:nincs megadva
- Parkolási lehetőség:Teremgarázsban
- Fűtés:nincs megadva
- Bútorozottság:nincs megadva
- Fényviszony:nincs megadva
- Tájolás:nincs megadva
- Kilátás:nincs megadva
- Internet:nincs megadva
- Klíma:nincs megadva
- Akadálymentesített:nincs megadva
- Energiatanúsítvány:nincs megadva
- Villany:nincs megadva
- Víz:nincs megadva
- Gáz:nincs megadva
- Csatorna:nincs megadva
- Kapcsolatfelvétel

Harsányi Nikolett
+36-30-722-0822
Mondd meg a hirdetőnek, hogy a megveszLAK-on találtad a hirdetést.
Hitel ajánlatok
Ingatlan hirdetés leírása
Gégény település jól frekventált, csendes részén eladó egy 947...
Gégény település jól frekventált, csendes részén eladó egy 947 nm -es telken elhelyezkedő, 164, 5 nm alapterületű, B30-as tégla falazatú, kétszintes családi ház, melléképülettel. Az ingatlan külön bejárattal rendelkezik mindkét szinten, így kiváló választás több generáció együttélésére vagy akár befektetési célra is. Az alsó szinten a nyílászárók műanyagra lettek cserélve, a fürdőszoba két éve teljes körű felújításon esett át, valamint a gázkazán és a klíma is két évvel ezelőtt került korszerűsítésre. a felső szinten fa nyílászárók találhatók. a burkolatok tekintetében az emeleti szobák parkettásak, az alsó szobában laminált padló, míg a többi helyiségben járólap került kialakításra. Az alsó szinten egy tágas garázs is helyet kapott. Az ingatlan rendezett, barátságos környezetben található, kedves szomszédokkal, a közelben iskola, óvoda és minden fontos intézmény könnyen elérhető, így ideális választás családok számára.
OTP Banki hátterünknek köszönhetően finanszírozási igényekben (pl. Otthon Start Hitelprogram, Babaváró, Falusi csok, CSOK Plusz, Lakáshitel, Személyi kölcsön stb. ), Illetve biztosítások tekintetében is díjmentesen, soron kívüli ügyintézéssel segítem ügyfeleim! Referenciaszám:M323151
Virtuális séta: https://my. Matterport. Com/show/? M=3tmpym88303p83pt0xg9gfkdd&views=0&mls=1 FIX 3% lakáshitelre megvehető
Tetszett ez az eladó Gégényi jó állapotú 5 szobás családi ház? Hívd fel a hirdetőt most, és tudj meg mindent erről az eladó családi házról! Ha gondolod nézelődj tovább az eladó ház Gégény oldal hirdetései között. Ennek az eladó háznak az ára 32900000 Ft és mivel az alapterülete 164 négyzetméter, ezért az átlagos négyzetméterára 200610 HUF/m2.
Az eladó házak menüpontban további hirdetések között is böngészhetsz. Ha van kedved, akkor böngészhetsz a Harsányi Nikolett összes hirdetése között, vagy akár a/az Nyíregyháza Bocskai utca 18-20 - OTP Ingatlanpont Iroda összes hirdetése között is.

