Eladó felújítandó ház - Gemzse
- INGYENES HIRDETÉS FELADÁS
Ingatlan adatai
- Eladó vagy kiadó:Eladó
- Település:Gemzse
- Kategória:Ház
- Alkategória:Családi ház
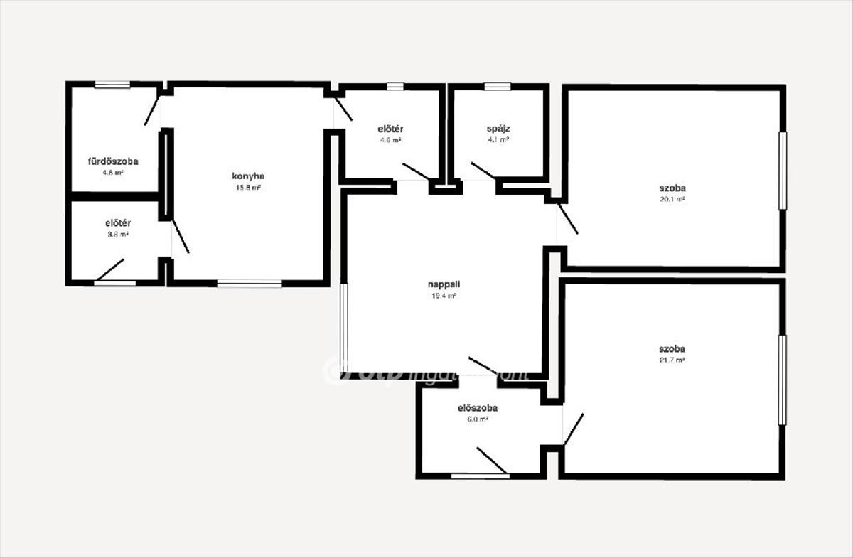
- Alapterület:110 m2
- Telekterület:2133 m2
- Csere is:Nem
- Hirdető:Cég
- Élő videón megtekinthető:Nem
- Építés éve:1970
- Szobaszám:2
- Állapot:Felújítandó
- Hány szintes az ingatlan:Földszintes
- Tetőtér:nincs megadva
- Komfortosság:nincs megadva
- Pince:nincs megadva
- Parkolási lehetőség:Beállóban
- Fűtés:nincs megadva
- Bútorozottság:nincs megadva
- Fényviszony:nincs megadva
- Tájolás:nincs megadva
- Kilátás:nincs megadva
- Internet:nincs megadva
- Klíma:nincs megadva
- Akadálymentesített:nincs megadva
- Energiatanúsítvány:nincs megadva
- Villany:nincs megadva
- Víz:nincs megadva
- Gáz:nincs megadva
- Csatorna:nincs megadva
- Kapcsolatfelvétel

Luterán Lászlóné
+36-70-615-6858
Mondd meg a hirdetőnek, hogy a megveszLAK-on találtad a hirdetést.
Hitel ajánlatok
Ingatlan hirdetés leírása
Eladó felújítandó családi ház Gemzse fő utcáján nagy telekkel,...
Eladó felújítandó családi ház Gemzse fő utcáján nagy telekkel, melléképületekkel!
Gemzse fő utcáján kínálok megvételre egy 110 m2, 2 szobás, felújítandó családi házat, amely kiváló lehetőség akár saját otthon kialakítására, akár befektetés céljára.
Az ingatlan főbb jellemzői:
2 tágas szoba
konyha
fürdőszoba és WC
vályog falazat
fűtés: konvektor és cserépkályha
A ház egy 2133 m2 telken helyezkedik el, amely bőséges teret biztosít kertészkedésre, gazdálkodásra vagy akár további fejlesztésekre.
Az udvaron található:
- melléképület
- garázs
- pince
Elhelyezkedésének köszönhetően könnyen megközelíthető, a fő utcai fekvés miatt minden fontosabb intézmény gyorsan elérhető.
Ha olyan ingatlant keres, amelyet saját elképzelései szerint újíthat fel, és értéket szeretne teremteni, akkor ez a ház kiváló választás lehet!
Érdeklődni privát üzenetben vagy telefonon lehetséges. Ez az ingatlan ideális választás családoknak, gazdálkodóknak vagy azoknak, akik nagy telekre és biztos értékre vágynak.
Hívjon most, és foglaljon időpontot megtekintésre az ilyen adottságú ingatlanok ritkán maradnak sokáig a piacon!
OTP Banki hátterünknek köszönhetően finanszírozási igényekben (pl. Otthon Start Hitelprogram, Babaváró, Falusi csok, CSOK Plusz, Lakáshitel, Személyi kölcsön stb. ), Illetve biztosítások tekintetében is díjmentesen, soron kívüli ügyintézéssel segítem ügyfeleim! Referenciaszám: M323806
https://my. Matterport. Com/show/? M=p48fart40q34z3prigkhupwib&views=0&mls=1 FIX 3% lakáshitelre megvehető
Tetszett ez az eladó Gemzsei felújítandó 2 szobás családi ház? Hívd fel a hirdetőt most, és tudj meg mindent erről az eladó családi házról! Ha gondolod nézelődj tovább az eladó ház Gemzse oldal hirdetései között. Ennek az eladó háznak az ára 13000000 Ft és mivel az alapterülete 110 négyzetméter, ezért az átlagos négyzetméterára 118182 HUF/m2.
Az eladó házak menüpontban további hirdetések között is böngészhetsz. Ha van kedved, akkor böngészhetsz a Luterán Lászlóné összes hirdetése között, vagy akár a/az Nyíregyháza Bocskai utca 18-20 - OTP Ingatlanpont Iroda összes hirdetése között is.

