Eladó jó állapotú ház - Geresdlak
- INGYENES HIRDETÉS FELADÁS
Ingatlan adatai
- Feladva:81 napja a megveszLAK-on
- Eladó vagy kiadó:Eladó
- Település:Geresdlak
- Kategória:Ház
- Alkategória:Családi ház
- Alapterület:133 m2
- Telekterület:681 m2
- Csere is:Nem
- Hirdető:Cég
- Élő videón megtekinthető:Nem
- Szobaszám:5
- Állapot:Jó állapotú
- Hány szintes az ingatlan:nincs megadva
- Tetőtér:nincs megadva
- Komfortosság:Összkomfortos
- Pince:Nincs
- Parkolási lehetőség:Nincs
- Fűtés:nincs megadva
- Bútorozottság:nincs megadva
- Fényviszony:nincs megadva
- Tájolás:nincs megadva
- Kilátás:nincs megadva
- Internet:nincs megadva
- Klíma:nincs megadva
- Akadálymentesített:nincs megadva
- Energiatanúsítvány:nincs megadva
- Villany:Van
- Víz:Van
- Gáz:Van
- Csatorna:Van
- Kapcsolatfelvétel
Szabó Róbert
+36-(20)-251-0667
Mondd meg a hirdetőnek, hogy a megveszLAK-on találtad a hirdetést.
Hitel ajánlatok
Ingatlan hirdetés leírása
Eladó Családi ház, Geresdlak, Nincs megadva, 133nm, 48000000 Ft
Két külön lakrész, jó állapot – ideális többgenerációs otthon Geresdlakon
Geresdlak csendes, rendezett településén eladó egy jó állapotú, két külön lakóépületből álló ingatlan, amely kiváló választás lehet nagyobb családoknak, többgenerációs családnak vagy akár összeköltözőknek. a faluban minden fontos szolgáltatás megtalálható: iskola, óvoda, orvosi rendelő, posta, benzinkút, Polgármesteri Hivatal, így a mindennapi élet kényelmesen megszervezhető.
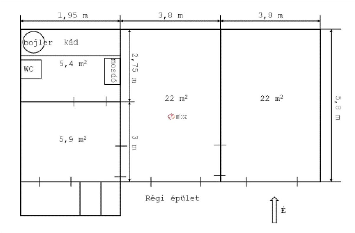
Főépület – 78 m²
Előszoba, konyha, fürdő, külön wc és három szoba biztosítja az élhető, családbarát elrendezést.
•Hőszigetelt külső nyílászárók
•Részben felújított elektromos és szennyvízhálózat
•Felújított tető és ereszcsatorna
•Kiváló állapotú konyha, fürdő és burkolatok
•Az egyik szoba légkondicionált
A fűtés vegyes tüzelésű kazánnal és gázkazánnal is megoldott, a kazánok az épület alatti alagsorban kaptak helyet – gazdaságos és rugalmas megoldás.
Külön bejáratú lakrész – 55 m²
Előszoba, fürdő WC-vel és két szoba.
Fűtése gázkonvektoros, a meleg vizet itt is villanybojler biztosítja.
A két lakrész között tágas terasz került kialakításra, ami közös családi térként vagy nyári pihenőhelyként is ideális.
Az ingatlanhoz tartozik továbbá:
✔ nyári konyha
✔ kamra, tárolók
✔ kút
✔ rendezett, gondozott udvar
Ha meg szeretné tekinteni az ingatlant hívjon bizalommal! FIX 3% lakáshitelre megvehető
Tetszett ez az eladó Geresdlaki jó állapotú 5 szobás családi ház? Hívd fel a hirdetőt most, és tudj meg mindent erről az eladó családi házról! Ha gondolod nézelődj tovább az eladó ház Geresdlak oldal hirdetései között. Ennek az eladó háznak az ára 48000000 Ft és mivel az alapterülete 133 négyzetméter, ezért az átlagos négyzetméterára 360902 HUF/m2.
Az eladó házak menüpontban további hirdetések között is böngészhetsz. Ha van kedved, akkor böngészhetsz a Szabó Róbert összes hirdetése között.

