Eladó felújított ház Gödöllő
| Kedvencbe | Megosztás | Árfigyelő |
| Kedvezményes lakáshitel ajánlatok | ||
| 199 000 000 HUF | ||
Ingatlan adatai
- Eladó vagy kiadó:Eladó
- Település:Gödöllő
- Kategória:Ház
- Alkategória:Családi ház
- Alapterület:516 m2
- Telekterület:1408 m2
- Csere is:Nem
- Hirdető:Cég
- Élő videón megtekinthető:Nem
- Szobaszám:14
- Állapot:Felújított
- Hány szintes az ingatlan:2 szintes
- Tetőtér:Beépített
- Komfortosság:nincs megadva
- Parkolási lehetőség:nincs megadva
- Fűtés:Vegyes tüzelésű kazán
- Bútorozottság:nincs megadva
- Fényviszony:nincs megadva
- Tájolás:nincs megadva
- Kilátás:nincs megadva
- Internet:nincs megadva
- Akadálymentesített:Nem akadálymentesített
- Energiatanúsítvány:nincs megadva
- Villany:Van
- Víz:nincs megadva
- Gáz:Van
- Csatorna:Van
- Üzenetküldés
- Hívás


Hitel ajánlat
Ingatlan hirdetés leírása
Eladó Gödöllő, Fenyves városrészén, a Fenyvesi Nagyúton egy je...
Eladó Gödöllő, Fenyves városrészén, a Fenyvesi Nagyúton egy jelenleg 6 darab apartmannak kialakított, 516 m2 hasznos alapterületű (bruttó 600 m2-es) épület, egy 1. 408 m2-es telken.A telken jogilag is 2 db lakóház épült.
A 3 szintes lakóházban 2 apartman, a 2 szintes lakóházban 3 apartman, és a tágas melléképületben 1 apartman lett kialakítva.
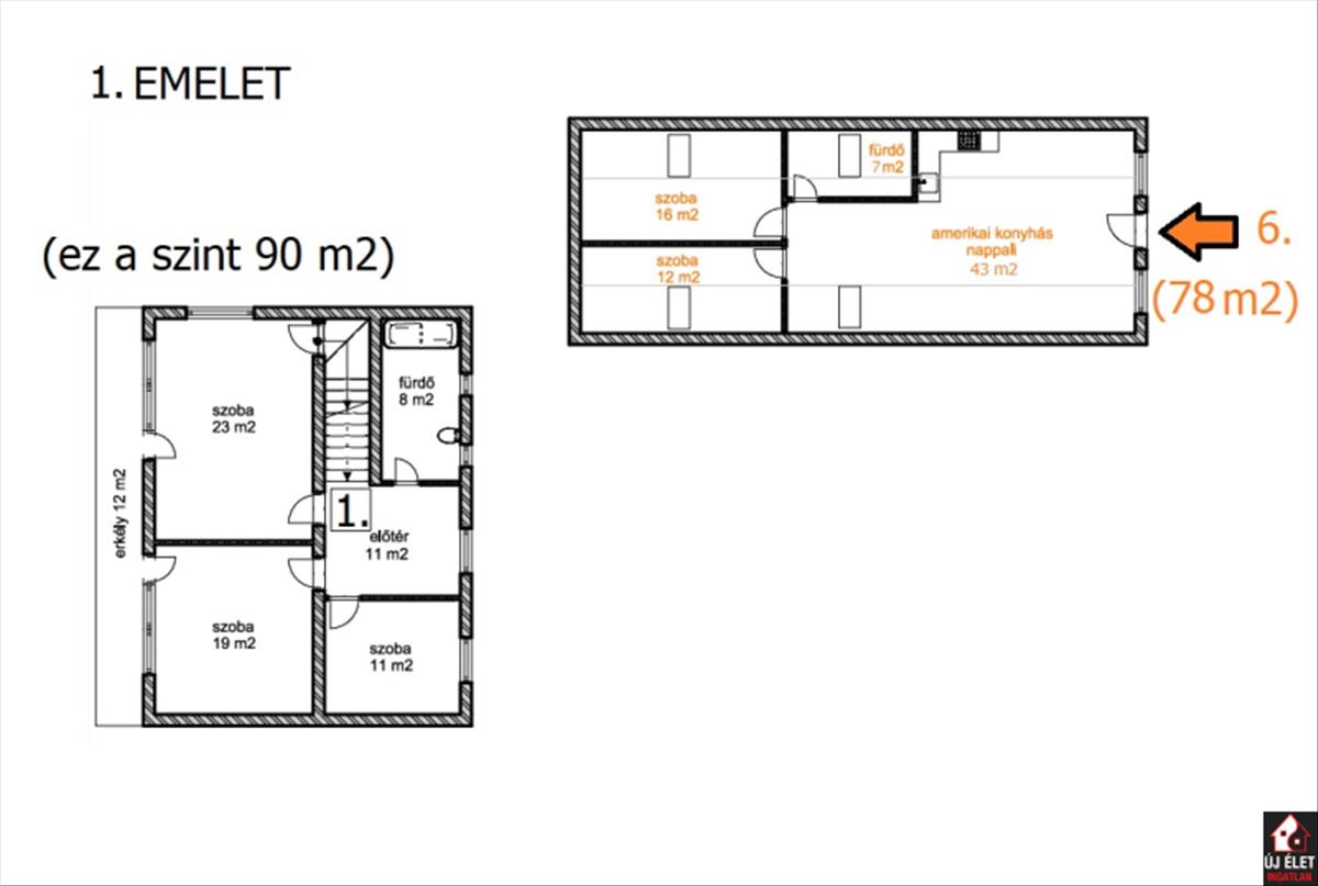
A legnagyobb lakás az utcafronti házban, 3 szinten helyezkedik el. Összesen 240 m2. (Az alaprajzon az 1-es apartman)
A földszinti rész 60 m2, ami valójában egy tágas amerikai konyhát, a lépcsőházat és a teraszt jelenti.
Az 1. emeleten 3 szoba, a kádas fürdőszoba és az erkély található, 90 m2-en.
A 2. emeleten pedig beépíthető pluszban bruttó 90 m2. Vagy a lenti apartmant bővíthetjük még 3-4 szobával és egy újabb fürdőszobával, vagy kialakítható akár egy új, amerikai konyhás + 3 szobás + fürdőszobás apartman. (Az áram, víz, csatorna, fűtés feljön erre az emeletre, de ez a szint nincs kiépítve. )
Innen az ablakból, az erkélyről gyönyörű panoráma tárul a szemünk elé.
A két épület közül ez a ház épült korábban, 1984-ben, és ez tavaly teljeskörűen fel lett újítva. a villanyvezetékek, a gépészet, az ablakok, a burkolatok, a konyhabútor, minden új. (Igény esetén, mivel a lépcsőház az épület szélén található és kívülről még van hely a telken, így megoldható, hogy az emeleti részek, akár kívülről, közvetlenül megközelíthetőek legyenek. )
Ugyanennek az épületnek a földszintjén, egy oldalsó bejárattal egy 28 m2-es kis apartman is helyet kapott. (Az alaprajzon a 2-es apartman)
A másik épület 2007-ben épült. Ez a ház földszint + egy emelet magas. (30 Cm-es Porotherm téglából épült + szigetelés. )
A földszinten két apartman található.
Az egyik egy tágasabb nappali + 2 szobás, 78 m2-es, sarokkádas külön fürdő, külön wc-vel rendelkező modern apartman. (Az alaprajzon a 4-es apartman)
A másik kisebb, összesen 32 m2-es lakrész.
Itt jelenleg egymás mellett van maga a lakás és a fürdőszoba, amit külön ajtón keresztül közelíthetünk meg, de megoldható, hogy a fürdő a lakásból belülről nyíljon, vagy a fedett terasz egy kis részének beépítésével egy tágas előszobából nyílhatna a szoba is és a fürdőszoba is. (Az alaprajzon a 3-as apartman)
Ennek az épületnek az emeletén, külső lépcsőn megközelítve, egy nappali + 2 szobás, bruttó 78 m2-es lakásba jutunk. (Az alaprajzon a 6-os apartman)
A fűtés mindkét lakóházban, azaz a fentebb felsorolt apartmanokban gázkazán és vegyes tüzelésű kazánnal is megoldható.
A melléképületben kialakított apartmanban csak fa tüzelésű kazán van.
A melléképületben kialakított apartmanban pedig egy stúdiólakás lett kialakítva. (60 m2). a tágas térből csak a fürdőszoba van külön helyiségben. Tartozik hozzá egy méretes fedett terasz is. (Az alaprajzon az 5-ös apartman)
De megoldható, hogy kényelmesen leválasszunk egy hálószobát is.
Vagy ha nyitottak vagyunk némi átalakításra, akkor 2 pici apartman is lehet belőle. Ezesetben egy plusz fürdőszobát kell ide kiépítenünk. De ez megoldható.
A telken 2 db vízóra, 2 db villanyóra és 2 db gázóra található. Egyik a 3 szintes épületé, a másik pedig a többié.
Az apartmanok egy része felújított, a más része felújításra szorul.
Kiváló lehetőség befektetőknek, vagy bárkinek, aki a kiadott ingatlanjaiból szeretne megélni.
. . . És ha nem ijed meg egy kis átalakítástól, akkor a 6 helyett, akár 8 apartman is kiépíthető.
(A fentebb leírtak szerint. )
Siófoki csere vagy kisebb ingatlan beszámítása szóba jöhet.
Hívjon, akár az esti órákban, akár hétvégén is! Hitel.hu - Hasonlítsa össze a bankok lakáshitel ajánlatait

