Eladó felújított ház Gödöllő
| Kedvencbe | Megosztás | Árfigyelő |
| FIX 3% lakáshitelre megvehető | ||
| 115 000 000 HUF | ||
Ingatlan adatai
- Eladó vagy kiadó:Eladó
- Település:Gödöllő
- Kategória:Ház
- Alkategória:Családi ház
- Alapterület:169 m2
- Telekterület:548 m2
- Csere is:Nem
- Hirdető:Cég
- Élő videón megtekinthető:Nem
- Építés éve:2004
- Szobaszám:4
- Állapot:Felújított
- Hány szintes az ingatlan:Földszintes
- Tetőtér:nincs megadva
- Komfortosság:nincs megadva
- Pince:Van
- Parkolási lehetőség:Garázsban
- Fűtés:Gáz (cirko)
- Bútorozottság:nincs megadva
- Fényviszony:nincs megadva
- Tájolás:nincs megadva
- Kilátás:nincs megadva
- Internet:nincs megadva
- Akadálymentesített:nincs megadva
- Energiatanúsítvány:nincs megadva
- Villany:Van
- Víz:Van
- Gáz:Van
- Csatorna:Van
- Üzenetküldés
- Hívás


Hitel ajánlat
Ingatlan hirdetés leírása
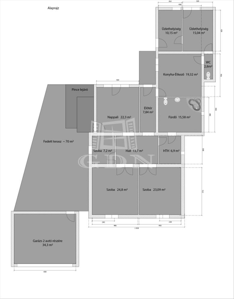
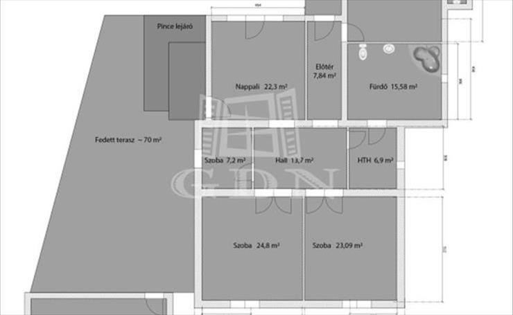
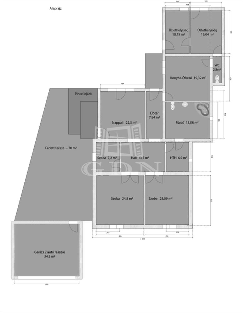
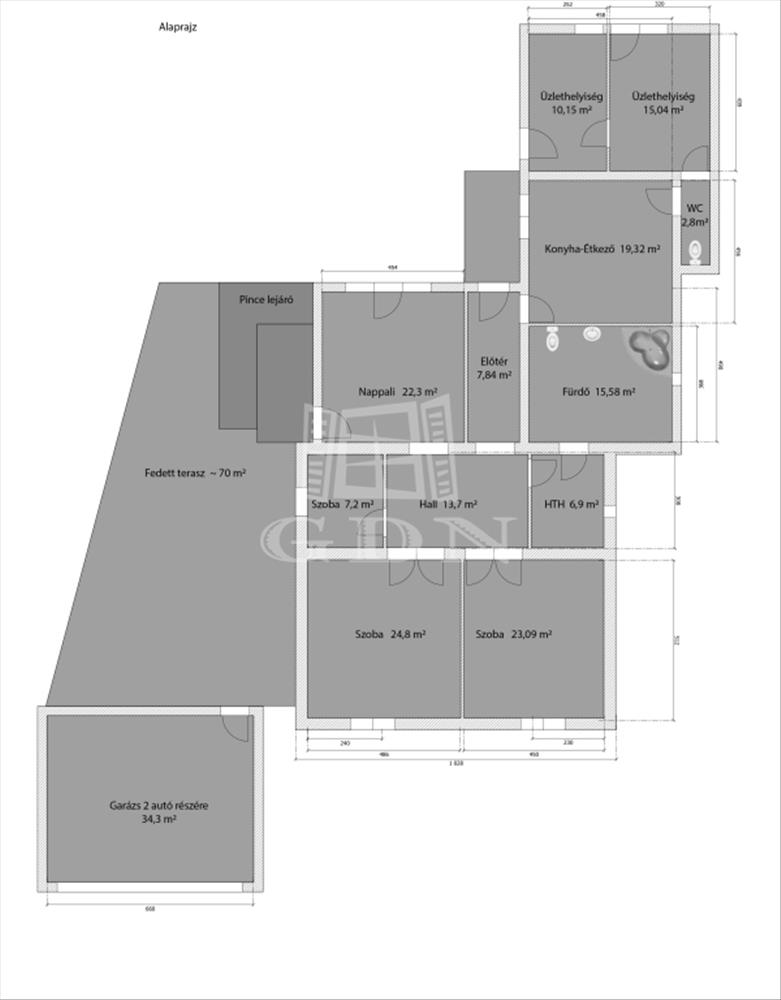
Gödöllőn 548 m2-es telken a Szilágyi Erzsébet utca és a Hunyad...
Gödöllőn 548 m2-es telken a Szilágyi Erzsébet utca és a Hunyadi János utca között, két utcafronttal, nettó 168, 72m2-es + 34, 3m2-es kétautós garázzsal, 13, 5m2-es pincével és 70 m2-es fedett terasszal rendelkező családi ház eladó!A 2004-ben épült és folyamatosan modernizált ingatlanban a Hunyadi János utca felőli utcafronti bejárattal egy 35 m2-es üzlethelyiség található. a homlokzati falak 30-as és 38-as tégla falazattal épültek, melyeket 10cm-es eps dryvit szigeteléssel láttak el. a külső nyílászárók műanyag thermó üvegekkel szereltek. a tetőt zsindely fedi.
A fűtésről kombi gázkazán gondoskodik.
A parkosított kertet öntözőrendszer locsolja helyettünk. a megközelítőleg 70m2-es fedett terasz kiválló helyszíne a családi összejöveteleknek és a pihenésnek. Az itt található jacuzzi is a vételár részét képezi.
Parkolni a Sziláégyi Erzsébet utcáról elektromos garázsajtón megközelíthető 2 autó tárolására kialakított garázsban tudunk.
A villamos áram terhelhetőseége 1x32A.
Az üzlethelyiség gipszakrtonnal lett elválasztva, hogy akár 2 üzletet is üzemeltethessünk. a könnyedén elbontható válaszfallal 35m2-es helyiséget tudunk kialakítani.
Tárolásra a nappali alatt kialakított 13, 5m2-es pince kiváló lehetőséget ad.
Készpénzes vevők jelentkezését várjuk.
Amennyiben hirdetésem felkeltette az érdeklődését vagy egyéb információra van szüksége hívjon bizalommal! FIX 3% lakáshitelre megvehető

