Eladó új építésű ház - Gomba
- INGYENES HIRDETÉS FELADÁS
Ingatlan adatai
- Eladó vagy kiadó:Eladó
- Település:Gomba
- Kategória:Ház
- Alkategória:Családi ház
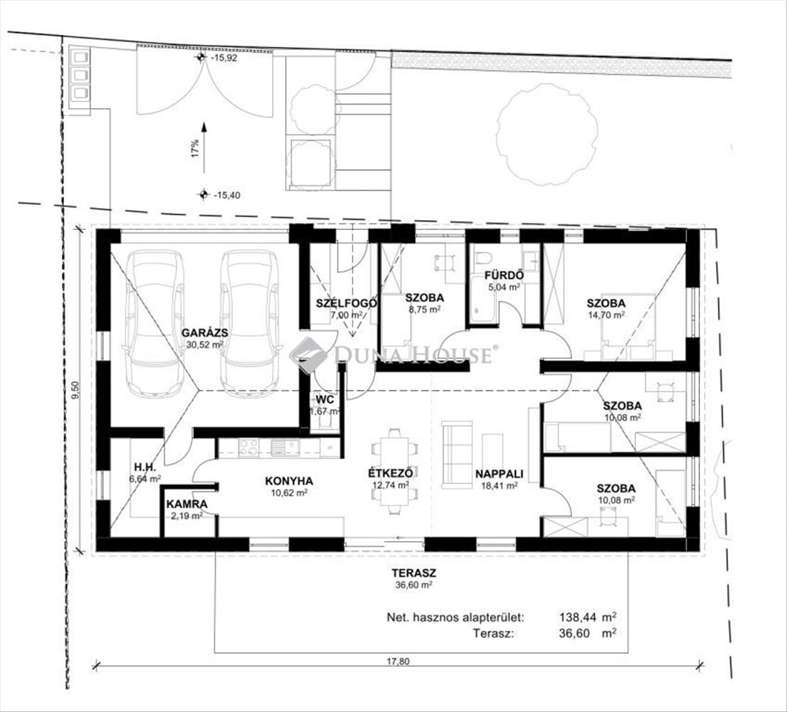
- Alapterület:138 m2
- Telekterület:1000 m2
- Csere is:Nem
- Hirdető:Cég
- Élő videón megtekinthető:Nem
- Építés éve:2026
- Szobaszám:5
- Állapot:Új építésű
- Hány szintes az ingatlan:Földszintes
- Tetőtér:nincs megadva
- Komfortosság:nincs megadva
- Pince:nincs megadva
- Parkolási lehetőség:nincs megadva
- Fűtés:Hőszivattyús
- Bútorozottság:nincs megadva
- Fényviszony:Napfényes
- Tájolás:DNY
- Kilátás:nincs megadva
- Internet:nincs megadva
- Klíma:nincs megadva
- Akadálymentesített:nincs megadva
- Energiatanúsítvány:nincs megadva
- Villany:Van
- Víz:Van
- Gáz:Utcában
- Csatorna:Utcában
- Kapcsolatfelvétel

Megyeriné Mikus Melinda
+36-(30)-665-2848
Mondd meg a hirdetőnek, hogy a megveszLAK-on találtad a hirdetést.
Referencia szám: HZ045641
Hitel ajánlatok
Ingatlan hirdetés leírása
Eladó ház, Gomba, Eladó új építésű ház - Gomba
Eladásra kínálunk egy 2026-ban épülő, földszintes, 4 szoba + amerikai-konyhás nappalival rendelkező, napfényes, önálló családi házat, amely 2027 tavaszán kerül átadásra, 1000 nm -es telekkel!
Az otthon hőszivattyús fűtésrendszerrel, padlófűtéssel és elektromos törölközőszárító radiátorral a fürdőszobában rendelkezik.
A nappaliban split klíma került beépítésre.
Az udvarra belépve a szemet az utcafronti 3d kerítés, a térkövezett gyalogos és gépkocsi bejáró fogja meg. a gépkocsitárolásról szekcionált garázskapuval ellátott garázs gondoskodik, az elektromos nagykapu tovább növeli a kényelmet. Otthona környezete nemcsak szép, de biztonságos is, köszönhetően a megbízható kivitelezésnek és az elővigyázatosan megtervezett építési anyagoknak, mint a 30 cm vastag Porfix falak, a 15 cm vastag eps hőszigetelés és a 30 cm vastag üveggyapot tetőhőszigetelés.
Az ingatlanban fehér műanyag 5 kamrás, 3 rétegű üvegezéssel ellátott ablakok garantálják a jó hőszigetelést és a fényáradatot. a belső terek kialakításához magas minőségű, bruttó 10. 000 Ft/nm ² értékű padló- és csempeburkolatok, valamint bruttó 80. 000 Ft/db árú beltéri ajtók kerültek kiválasztásra.
Gomba település egy igazán csodálatos hely, ahol a nyugalom és a természet közelsége mellett a modern életvitel is helyet kap. Az itt épülő ingatlan lehetőséget kínál arra, hogy a város zajától távol, de mégis minden kényelmi szolgáltatáshoz közel élhessen. a kivételes panorámás kilátás, a szép környezet, valamint a kiemelkedő minőségű építkezés garantálja, hogy az új tulajdonosok életminőségben és komfortban egyaránt csak a legjobbat kapják. Gomba így nemcsak egy hely az otthonteremtéshez, hanem egy kapu a harmónikus és tartalmas élethez.
Hitelügyintézés, eladás és vétel teljes körű ügyintézése, ingyenes tanácsadás, értékbecslés, megbízható ügyvédi háttér biztosítása.
Érd. : Megyeriné Mikus Melinda tel. :06306652848 Email:mikus. Melinda@dh. Hu
Referencia szám: hz045641 FIX 3% lakáshitelre megvehető
Tetszett ez az eladó Gombai új építésű 5 szobás családi ház? Hívd fel a hirdetőt most, és tudj meg mindent erről az eladó családi házról! Ha gondolod nézelődj tovább az eladó ház Gomba oldal hirdetései között. Ennek az eladó háznak az ára 127000000 Ft és mivel az alapterülete 138 négyzetméter, ezért az átlagos négyzetméterára 920290 HUF/m2.
Az eladó házak menüpontban további hirdetések között is böngészhetsz. Ha van kedved, akkor böngészhetsz a Megyeriné Mikus Melinda összes hirdetése között, vagy akár a/az Duna House Villa Gyömrő összes hirdetése között is.

