- >>
- eladó ingatlanok
- >>
- eladó ház
- >>
- eladó ház Gyál
- >>
Eladó új építésű ház - Gyál
| | |||
| Kedvencnek jelölöm | Elküldöm emailben | Megosztás | Szavazás |
| FIX 3% lakáshitelre megvehető | |||
| 115 500 000 HUF | |||
Ingatlan adatai
- Eladó vagy kiadó:Eladó
- Település:Gyál
- Kategória:Ház
- Alkategória:Családi ház
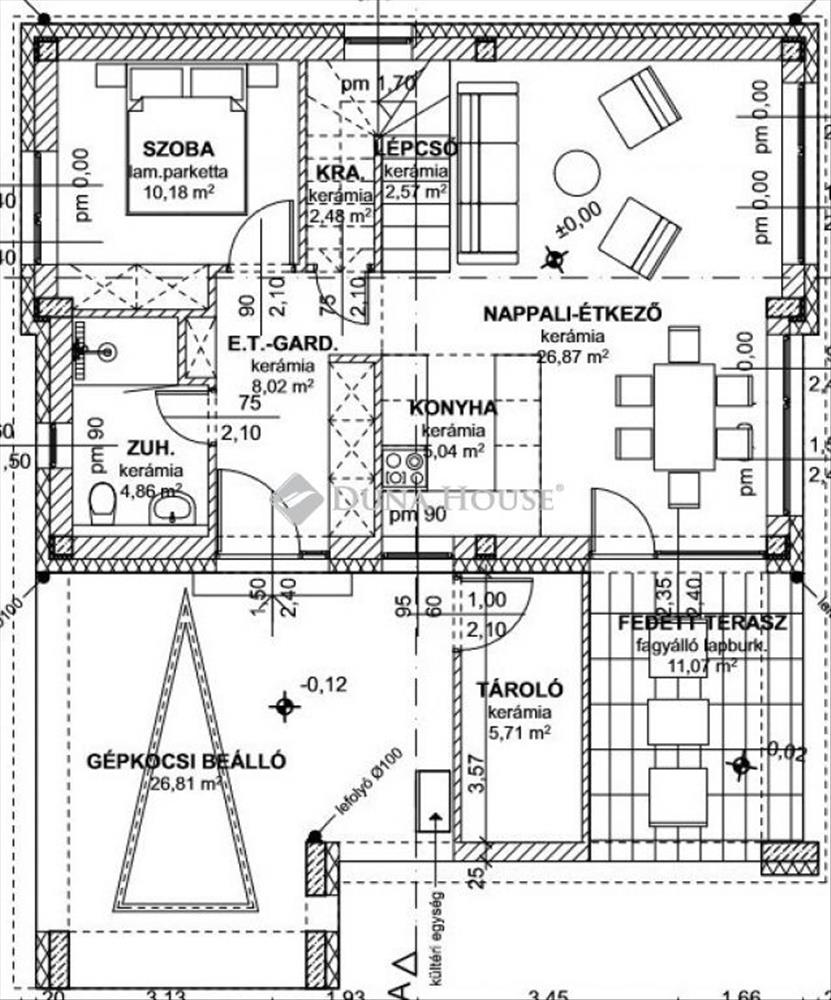
- Alapterület:118 m2
- Telekterület:423 m2
- Csere is:Nem
- Hirdető:Cég
- Élő videón megtekinthető:Nem
- Építés éve:2025
- Szobaszám:5
- Állapot:Új építésű
- Hány szintes az ingatlan:Földszintes
- Tetőtér:nincs megadva
- Komfortosság:nincs megadva
- Parkolási lehetőség:nincs megadva
- Fűtés:Hőszivattyús
- Bútorozottság:nincs megadva
- Fényviszony:Napfényes
- Tájolás:ÉNY
- Kilátás:nincs megadva
- Internet:nincs megadva
- Akadálymentesített:nincs megadva
- Energiatanúsítvány:nincs megadva
- Villany:nincs megadva
- Víz:nincs megadva
- Gáz:nincs megadva
- Csatorna:nincs megadva
- Üzenetküldés
- Hívás

Referencia szám: HZ042230

Hitel ajánlat
Ingatlan hirdetés leírása
Eladó ház, Gyál, Eladó új építésű ház - Gyál
Önálló családi ház extra alacsony fenntartás a++ energetikai BESOROLÁS! Modern, energiatakarékos otthon nyújtotta kényelemre vágysz Budapest közelében? Gyál új mini LAKÓPARKja neked épül! Ez a ház nem csak szép technológiában felső kategória, hosszú távon is pénzt és energiát spórol a tulajdonosának. Eladásra kínálunk egy önálló, új építésű, 118 m²-es családi házat, amerikai konyhás nappalival, 4 hálószobával, 2 fürdővel, fedett terasszal és autóbeállóval, 423 m²-es saját telekrésszel. EXTRA magas műszaki felszereltség - a jövő otthona már MA! Prémium építőanyagok porotherm 30 X-Therm teherhordó falazat 18 cm grafitos külső hőszigetelés 40 cm kőzetgyapot tetőszigetelés 15 cm lépésálló padlószigetelés télen meleg, nyáron hűvösHőszivattyús fűtés és mennyezethűtés a legmodernebb megoldások Mitsubishi vagy Bosch Ecoinverter 6 kW-os hőszivattyú H tarifa alacsony hőszivattyús energiaárakhoz Padlófűtés minden helyiségben (igen, a garázsban is! ) Mennyezetbe integrált hűtő/fűtő panelek klímakomfort huzat nélkül Szintenként termosztát, helyiségenkénti szabályozás opcióval 200 literes indirekt melegvíztároló + extra puffer hűtéshez Modern elektromos infrastruktúraTovábbi jó híreim vannak! Most még választható szaniterek! ! Burkolatok 10 000 Ft/m² árig! Várható átadás: 2026. II. NegyedévMIÉRT válaszd gyált? Néhány perc az m0 és számtalan lehetőség a fővárosba való bejutásra ( kötött pálya is) Kiváló ár-érték arány az agglomerációban Gyermek- és család centrikus környezetNem elegendő készpénzed? Áthidalnál? CSOK-ot, babavárót, felújítási hitelt igényelnél? Credipass hitelcentrumunk teljes körű és díjmentes hitel ügyintézéssel áll szolgálatodra, valamint irodánk ügyvédje is készségesen áll rendelkezésére. Ha szeretnél egy modern, energiatakarékos és hosszú távon fenntartható otthont az agglomeráció legjobb részén hívj bizalommal!Referencia szám: hz042230 FIX 3% lakáshitelre megvehető

