Eladó befejezetlen ház - Gyermely
- INGYENES HIRDETÉS FELADÁS
Ingatlan adatai
- Eladó vagy kiadó:Eladó
- Település:Gyermely
- Kategória:Ház
- Alkategória:Családi ház
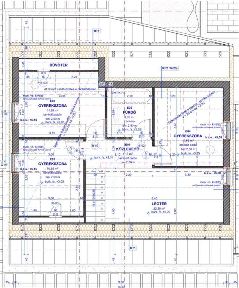
- Alapterület:125 m2
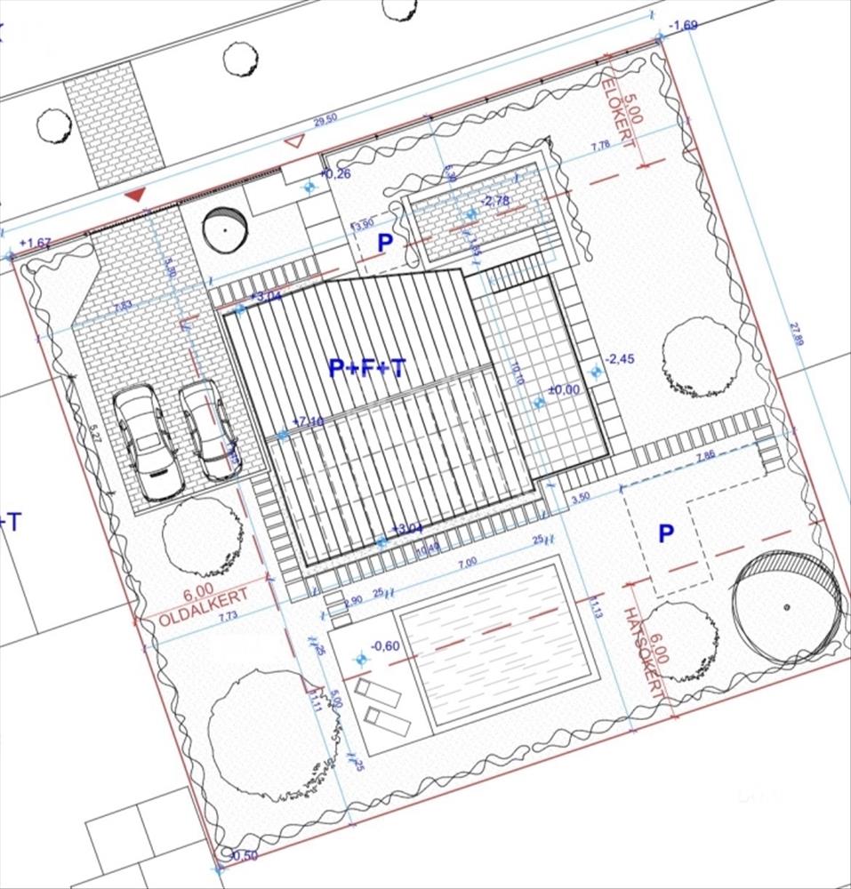
- Telekterület:822 m2
- Csere is:Nem
- Hirdető:Cég
- Élő videón megtekinthető:Nem
- Építés éve:2022
- Szobaszám:5 + 2 fél
- Állapot:Befejezetlen
- Hány szintes az ingatlan:2 szintes
- Tetőtér:nincs megadva
- Komfortosság:nincs megadva
- Pince:Van
- Parkolási lehetőség:Beállóban
- Fűtés:Egyéb
- Bútorozottság:nincs megadva
- Fényviszony:nincs megadva
- Tájolás:nincs megadva
- Kilátás:nincs megadva
- Internet:nincs megadva
- Klíma:nincs megadva
- Akadálymentesített:nincs megadva
- Energiatanúsítvány:nincs megadva
- Villany:Van
- Víz:Van
- Gáz:Utcában
- Csatorna:Van
- Kapcsolatfelvétel

Göbölyös Ágnes
+36-(30)-397-6489
Mondd meg a hirdetőnek, hogy a megveszLAK-on találtad a hirdetést.
Hitel ajánlatok
Ingatlan hirdetés leírása
Eladó családi ház panorámás telken! Megvételre kínálunk Budap...
Eladó családi ház panorámás telken!
Megvételre kínálunk Budapesttől 40 km távolságra, M1-es autópálya zsámbéki leágazásától 10 km-re, a nyugalom és béke érzését nyújtó Gyermely település központjában egy nettó 125 nm alapterületű, építés alatt álló, önálló családi házat 822 nm -es telken.
A munkálatokat 15 évvel ezelőtt megkezdték, az új tervek 2 éve készültek, aminek már elkezdték a munkálatait, családi okokból nem fejezték be, a terveket mellékeltük a hirdetésben.
Amivel segítjük az Ön ingatlan vásárlását:
- ingyenes hitelügyintézés (csok és Babaváró és egyéb hitel
ügyintézése is)
- jogi háttér,
- földhivatali ügyintézés,
- energetikai tanúsítvány ügyintézése,
- a vevő számára ingyenes az ingatlanközvetítés.
Várom szíves megkeresését. FIX 3% lakáshitelre megvehető
Tetszett ez az eladó Gyermelyi befejezetlen 5 egész és 2 fél szobás családi ház? Hívd fel a hirdetőt most, és tudj meg mindent erről az eladó családi házról! Ha gondolod nézelődj tovább az eladó ház Gyermely oldal hirdetései között. Ennek az eladó háznak az ára 29900000 Ft és mivel az alapterülete 125 négyzetméter, ezért az átlagos négyzetméterára 239200 HUF/m2.
Az eladó házak menüpontban további hirdetések között is böngészhetsz. Ha van kedved, akkor böngészhetsz a Göbölyös Ágnes összes hirdetése között, vagy akár a/az GDN Ingatlanhálózat összes hirdetése között is.

