Eladó újszerű állapotú ház - Gyöngyös
- INGYENES HIRDETÉS FELADÁS
Ingatlan adatai
- Eladó vagy kiadó:Eladó
- Település:Gyöngyös
- Kategória:Ház
- Alkategória:Családi ház
- Alapterület:477 m2
- Telekterület:1419 m2
- Csere is:Nem
- Hirdető:Cég
- Élő videón megtekinthető:Nem
- Építés éve:2003
- Szobaszám:9
- Állapot:Újszerű, kitűnő
- Hány szintes az ingatlan:nincs megadva
- Tetőtér:nincs megadva
- Komfortosság:Összkomfortos
- Pince:Van
- Parkolási lehetőség:Garázsban
- Fűtés:Vegyes tüzelésű kazán
- Bútorozottság:nincs megadva
- Fényviszony:nincs megadva
- Tájolás:nincs megadva
- Kilátás:Panorámás
- Internet:nincs megadva
- Klíma:nincs megadva
- Akadálymentesített:nincs megadva
- Energiatanúsítvány:nincs megadva
- Villany:Van
- Víz:Van
- Gáz:Van
- Csatorna:Nincs
- Kapcsolatfelvétel

Megyesi Éva
+36-(20)-329-3443
Mondd meg a hirdetőnek, hogy a megveszLAK-on találtad a hirdetést.
Hitel ajánlatok
Ingatlan hirdetés leírása
Eladó Családi ház, Mátraháza, 477nm, 254900000 Ft
Meseház a Mátrában!
Fantasztikus környezetben, páratlan elhelyezkedésű és adottságú, 1419 m2-es telken, 477 m2-es, háromszintes családi ház/vendégház/panzió eladó.
Figyelem! Néhány kép virtuális, nem a valóságot mutatja!
Kérem, tekintse meg ezen a linken a róla készült videót is:
https://www. Youtube. Com/watch? V=zyhFHbypXxk
Az ingatlan a Mátra szívében, Kékestető, Mátraháza, Galyatető és Parádsasvár ölelésében található. Ennek köszönheti üzleti szempontból is páratlan elhelyezkedését. Különleges, mesebeli hangulatát az adja, hogy erdővel körülvett, mindentől távoli, mégis főúthoz közel fekszik, 627 méter magasságban.
Az ide költözők egy teljesen más világba kerülnek. Megtalálják mindazt a nyugalmat, csendet, békességet, természetközelséget, elcsendesedést, amit a városban nem.
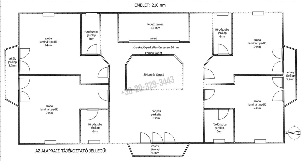
A ház szintjei: emelet, földszint, pince.
EMELET
Ezen a szinten 4 db 24 m2-es, igényesen berendezett fürdőszobás, erkélyes szoba található. Köztük közlekedő van beépített szekrényekkel, a hatalmas eltolható ajtón keresztül egy nagy méretű, fedett terasz fogad bennünket. Itt kényelmes, rattan ülőgarnitúra biztosítja a pihenést és a csodás panorámát az erdőkre. a berendezett nappali rész közösségi térként szolgál, melyhez saját erkély tartozik.
A földszintet és az emeletet az átriummal egyedi falépcső köti össze.
A megfelelő világosságról felülvilágítók gondoskodnak.
FÖLDSZINT
Ezen a szinten 3 db fürdőszobás szoba, egy további szoba, kandallós nappali, étkező, konyha, kazánház/fürdőszoba, kamra, wc, előtér és közlekedő található.
Belmagassága 2, 64 méter.
A nappali varázslatos hangulatát a fatüzeléses kandalló adja, amely mellé a téli estéken szívesen lekuporodunk. Ez a ház szíve, lelke!
A nagyméretű konyhában beépített konyhabútor mosogatógéppel, konyhasziget grillapos gáztűzhellyel és sütővel, étkező és kandalló is helyet kapott.
A bejárathoz és az étkezőhöz egy-egy nagyméretű tornác csatlakozik, ahol kellemesen eltölthetjük az időt egy-egy pohár bor, vagy kávé mellett. a hátsó tornácra az étkezőként funkcionáló, cserépkályhás, panorámás, téliesített, zárt verandáról lehet kijutni. Az őzeket, rókákat és mókusokat is megfigyelhetjük.
PINCE
3 db egymásba nyíló helyiséggel, aljzatbetonozott, teljesen vízmentes. Itt lehetőség van borospince, vagy wellness rész kialakítására, akár szaunával és élménymedencével is. a földszint alapterülete 248 m2, az emeleté 210 m2, míg
a pincéé 37 m2.
MELLÉKÉPÜLET
Duplaállásos garázs, fatároló, és 3 db \"ól\" található benne. Alapterülete 65 m2.
Az eredeti ház az 1940-es években, mátrai kőből épült. a 2000-es évek elején újították fel az egészet, valamint akkor alakították ki a mai konyhát, emeletet és a melléképületet is. Az új részek ytong téglából épültek.
A házban természetes anyagokat használtak fel, rengeteg a faborítás és famunka (pl. Lépcső, lépcsőkorlát). Az ablakokat új hő- és hangszigetelt üvegezésű fa nyílászárókra cserélték. Az ablakok és az erkélyajtók redőnyözettek, szúnyoghálóval. a helyiségei hagyományos parkettával, járólappal vagy laminált padlóval burkoltak. a kapu és a kültéri rácsok igényes, kovácsoltvas munkák.
A fűtésről és a melegvízről Vaillant cirkókazán gondoskodik hőfokszabályzós szeleppel ellátott radiátorokkal.
A mindennapi használathoz vezetékes víz biztosított, locsoláshoz fúrt kút hidroforral adja a vizet.
A szennyvíz tárolására 12 m3-es emésztőt telepítettek. a gázellátást telepített tartályos gáz biztosítja.
A ház szabadonálló, napszaktól függően mindig átjárja a nap fénye. Közvetlen környezete térkövezett, ami biztosítja több autó számára is a kényelmes parkolást.
Autóval, tömegközlekedéssel, vagy gyalogosan is könnyen megközelíthető, a Budapestről érkező busz a háztól 2 percre áll meg.
A mátrai kirándulóközpontokhoz jelzett túristautak vezetnek. Itt halad át a Kéktúra útvonala is. Galyatető 8 km, Kékestető 5 km gyalogos távolságra fekszik.
A vételár magába foglalja a teljes bútorzatot és minden, a házhoz tartozó felszerelést. Az elmúlt évtizedekben vendégházként működött, melyhez minden engedélyt megkaptak, a booking. Comon 9. 8 Pontos minősítést kapott.
Ajánlom ezt a szívemhez közelálló ingatlant családi házként akár több generáció számára is, vendégházként, panzióként, céges nyaralóként, vagy étteremként is funkcionálhat. Az ide látogatók télen-nyáron megtalálják a számításukat, kiváló, jól jelzett túristautak, síterepek, remek éttermek, felvonók, szánkópályák és egyéb turisztikai látványosságok találhatók a környéken.
Használja ki ezt a páratlan, lenyűgöző lehetőséget, mert biztos vagyok benne, hogy ilyet máshol nem talál.
Ne habozzon, hívjon most!
Irodánk teljeskörű ügyintézéssel áll az eladók és a vevők rendelkezésére! a kínálatunkból választott ingatlan finanszírozásához kedvezményes hitelkonstrukciókat kínálunk. Az adásvételi szerződés megkötéséhez igény szerint megbízható ügyvédi közreműködést biztosítunk, és segítséget nyújtunk az adásvételhez kapcsolódó ügyek intézéséhez is.
Fairytale house in Mátra!
A 477 m2, three-story family house/guest house/pension is for sale in a fantastic environm ent, with an unparalleled location and amenities, on a 1419 m2 plot.
Attention! Some images are virtual and do not show reality!
Please visit the video link about the property:
https://www. Youtube. Com/watch? V=zyhFHbypXxk
The property is located in the heart of Mátra, between Kékestetó, Mátraháza, Galyatetó and Parádsasvár. This is also thanks to its unique location from a business point of view. It is surrounded by forest, far from everything, yet close to the main road, at an altitude of 627 meters.
Those who move here find themselves in a completely different world. They will find all the calmness, silence, peace, closeness to nature, and stillness that they cannot find in the city.
The levels of the house: first floor, ground floor, basement.
FLOOR
On this level, there are 4 rooms of 24 m2, elegantly furnished with bathrooms and balconies. Between them there is a corridor with built-in wardrobes, through the huge sliding door a large, covered terrace welcomes us. Here, a comfortable rattan sofa ensures relaxation and a wonderful panorama of the forests. The furnished living room serves as a community space with a private balcony.
The ground floor and upper floor are connected to the atrium by a unique wooden staircase.
Adequate light is provided by skylights.
GROUND FLOOR
On this level there are 3 rooms with bathrooms, an additional room, a living room with a fireplace, a dining room, a kitchen, a boiler room/bathroom, a pantry, a toilet, an entrance hall and a corridor.
Its interior height is 2. 64 Meters.
The magical atmosphere of the living room is provided by the wood-burning fireplace, next to which we like to curl up on winter evenings. This is the heart and soul of the house!
The large kitchen has built-in kitchen furniture with a dishwasher, a kitchen island with a gas stove and oven, a dining area and a fireplace.
A large porch is connected to the entrance and the dining room, where you can spend time pleasantly with a glass of wine or coffee. The back porch can be accessed from the panoramic, winterized, closed veranda with a tile stove, which functions as a dining room. Deer, foxes and squirrels can also be observed.
CELLAR
With 3 interconnecting rooms, concrete base, completely waterproof. Here it is possible to create a wine cellar or a wellness area, even with a sauna and an experience pool. The floor area of the ground floor is 248 m2, the upper floor is 210 m2, while
the basement is 37 m2.
OUTBUILDING
It has a double garage, wood storage and 3 sheds. Its floor area is 65 m2.
The original house was built in the 1940s, from Mátra stone. It was all renovated in the early 2000s, and the present-day kitchen, first floor and the annex were also created then. The new parts were built of ytong bricks.
Natural materials were used in the house, there is a lot of wood covering and woodwork (e. G. Stairs, stair railings). The windows were replaced with new wooden doors and windows with thermal and sound-insulated glazing. The windows and balcony doors are shuttered with mosquito nets. Its rooms are covered with traditional parquet, flagstone or laminate flooring. The gate and the outdoor grilles are high-quality wrought iron works.
Heating and hot water are provided by a Vaillant circular boiler with radiators equipped with temperature control valves.
Piped water is provided for everyday use, and a well drilled for irrigation provides water with a hydrophor.
A 12 m3 digester was installed to store the wastewater. The gas supply is provided by installed tank gas.
The house is free-standing, depending on the time of day, the light of the sun always shines through. Its immediate surroundings are paved, which ensures comfortable parking for several cars.
It is easily accessible by car, public transport or on foot, the bus from Budapest stops 2 minutes from the house.
Marked hiking trails lead to the hiking centers in Mátra. The route of the Blue Tour also passes through here. Galyatetó is 8 km away, Kékestetó 5 km away on foot.
The purchase price includes the entire furniture and all equipment belonging to the house. In the past decades, it operated as a guest house, for which all permits were obtained, and it received a rating of 9. 8 Points on booking. Com.
I recommend this property close to my heart as a family home for several generations, it can also function as a guest house, boarding house, company vacation, or restaurant. Visitors here will find what they are looking for in winter and summer, there are excellent, well-marked hiking trails, ski resorts, great restaurants, cable cars, toboggan runs and other tourist attractions in the area.
Take advantage of this unique, amazing opportunity, because I\'m sure you won\'t find it anywhere else.
Don\'t hesitate, call now!
Our office is available to sellers and buyers with full administration! We offer discounted loan schemes to finance the property you choose from our range. For the conclusion of the sales contract, we provide reliable legal assistance as needed, and we also provide assistance in managing matters related to the sale. Hitel.hu - Hasonlítsa össze a bankok lakáshitel ajánlatait
Tetszett ez az eladó Gyöngyösi újszerű állapotú 9 szobás családi ház? Hívd fel a hirdetőt most, és tudj meg mindent erről az eladó családi házról! Ha gondolod nézelődj tovább az eladó ház Gyöngyös oldal hirdetései között. Ennek az eladó háznak az ára 254900000 Ft és mivel az alapterülete 477 négyzetméter, ezért az átlagos négyzetméterára 534382 HUF/m2.
Az eladó házak menüpontban további hirdetések között is böngészhetsz. Ha van kedved, akkor böngészhetsz a Megyesi Éva összes hirdetése között.

