Eladó újszerű állapotú ház - Gyöngyösoroszi
- INGYENES HIRDETÉS FELADÁS
Ingatlan adatai
- Eladó vagy kiadó:Eladó
- Település:Gyöngyösoroszi
- Kategória:Ház
- Alkategória:Családi ház
- Alapterület:142 m2
- Telekterület:745 m2
- Csere is:Nem
- Hirdető:Cég
- Élő videón megtekinthető:Nem
- Építés éve:2007
- Szobaszám:7
- Állapot:Újszerű, kitűnő
- Hány szintes az ingatlan:Földszintes
- Tetőtér:nincs megadva
- Komfortosság:nincs megadva
- Pince:nincs megadva
- Parkolási lehetőség:nincs megadva
- Fűtés:Elektromos
- Bútorozottság:nincs megadva
- Fényviszony:Napfényes
- Tájolás:DNY
- Kilátás:nincs megadva
- Internet:nincs megadva
- Klíma:nincs megadva
- Akadálymentesített:nincs megadva
- Energiatanúsítvány:E
- Villany:Van
- Víz:Van
- Gáz:nincs megadva
- Csatorna:Van
- Kapcsolatfelvétel

Tóth Krisztina
+36-(30)-274-5874
Mondd meg a hirdetőnek, hogy a megveszLAK-on találtad a hirdetést.
Referencia szám: HZ076851
Hitel ajánlatok
Ingatlan hirdetés leírása
Eladó ház, Gyöngyösoroszi
A Mátra hegységben, Budapesttől egy óra távolságra, festői, erdei környezetben eladó egy kiváló adottságokkal, és remek befektetési lehetőséggel rendelkező, jelenleg turistaházként üzemelő ingatlan.
Az ingatlan fekvésének köszönhetően tökéletesen alkalmas mostani funkciójához, és vendégházként, nagyobb társaságok igényeinek kiszolgálására is alkalmas, de akár magáncélra több generáció összeköltözése is lehetséges.
Tíz évvel ezelőtt teljes felújításon esett át, mielőtt jelenlegi tulajdonosa megvásárolta. Új burkolatok, nyílászárók kerültek beépítésre, és karbantartása, állagának megőrzése és fejlesztése folyamatos volt.
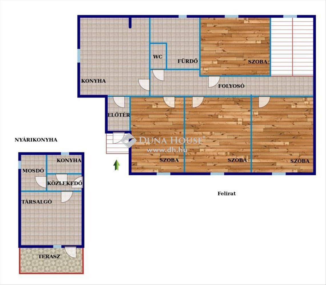
Az ingatlan jelenleg étkező-konyhával melléképülettel és garázzsal is rendelkezik. Mindkét szintjén fürdő helyiség és külön wc, az alsó szinten négy, a felső szinten három szoba várja a vendégeket.
A külön álló melléképület szintén konyhával és mosdó helyiséggel ellátott.
Fűtéséről energiagazdaságos villanykazán gondoskodik.
Amennyiben befektetési céllal keres ingatlan a helyszínen megoldható a ház folyamatos felügyelete és karbantartása.
További ingatlanok az alábbi linken elérhetőek: https://otthon. Dh. Hu/elado-ingatlan/lakas-haz FIX 3% lakáshitelre megvehető
Tetszett ez az eladó Gyöngyösoroszi újszerű állapotú 7 szobás családi ház? Hívd fel a hirdetőt most, és tudj meg mindent erről az eladó családi házról! Ha gondolod nézelődj tovább az eladó ház Gyöngyösoroszi oldal hirdetései között. Ennek az eladó háznak az ára 42000000 Ft és mivel az alapterülete 142 négyzetméter, ezért az átlagos négyzetméterára 295775 HUF/m2.
Az eladó házak menüpontban további hirdetések között is böngészhetsz. Ha van kedved, akkor böngészhetsz a Tóth Krisztina összes hirdetése között, vagy akár a/az Duna House Ferenc tér összes hirdetése között is.

