Eladó jó állapotú ház - Győr
- INGYENES HIRDETÉS FELADÁS
Ingatlan adatai
- Eladó vagy kiadó:Eladó
- Település:Győr
- Kategória:Ház
- Alkategória:Családi ház
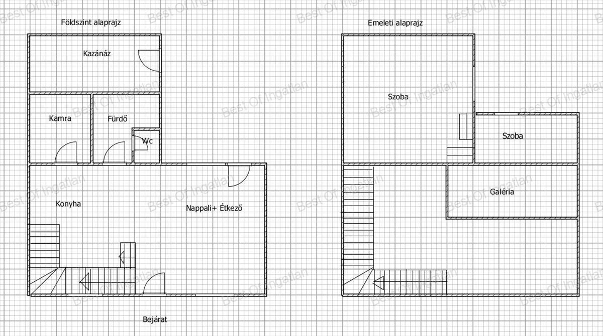
- Alapterület:86 m2
- Telekterület:1298 m2
- Csere is:Nem
- Hirdető:Cég
- Élő videón megtekinthető:Nem
- Szobaszám:2
- Állapot:Jó állapotú
- Hány szintes az ingatlan:Földszintes
- Tetőtér:nincs megadva
- Komfortosság:nincs megadva
- Pince:Nincs
- Parkolási lehetőség:Udvaron
- Fűtés:Vegyes tüzelésű kazán
- Bútorozottság:nincs megadva
- Fényviszony:nincs megadva
- Tájolás:nincs megadva
- Kilátás:nincs megadva
- Internet:nincs megadva
- Klíma:nincs megadva
- Akadálymentesített:Nem akadálymentesített
- Energiatanúsítvány:nincs megadva
- Villany:Van
- Víz:Van
- Gáz:nincs megadva
- Csatorna:Van
- Kapcsolatfelvétel

Tankovics Dóra
+36-(30)-216-1372
Mondd meg a hirdetőnek, hogy a megveszLAK-on találtad a hirdetést.
Hitel ajánlatok
Ingatlan hirdetés leírása
Győrszentiván- Kertvárosi részén, 85,83 m2-es zártkerti ingatl...
A "Best of Ingatlan Győr" Ingatlaniroda, eladásra kínálja Győr- Szentiván- Kertvárosi részén lévő családi házat, 85, 83 m2-es, nappali + 2szobás családi házat!
NE maradjon le RÓLA!
Az ingatlan rövid időn belül költözhető!
Győrszentiván ismert kertvárosi részén, eladó egy téglaépítésű tetőteres családi ház.
Az ingatlan tulajdoni lap szerinti besorolása:
- Kivett zártkerti mûvelés alól kivett terület és gazdasági épület,
A ház szinteltolásos, földszint: 38, 82-m2-es, a tetőtér 27, 71 m2-es, a hozzá tartozó telek: 1298 m2-es.
A ház alsó szint elosztása:
Fedett teraszon keresztül lépünk be az amerikai konyhás nappaliba, kamra, fürdőszobába egy sarokkád és egy zuhanyzó kapott helyet, wc,
Az emeleten egy galéria és egy hálószoba található.
Hőszigetelt jó minőségű fa ablakok kerültek beépítésre.
A szennyvízelvezetés zártrendszerű derítőbe történik.
A házon 10 cm-es külső szigetelés van.
Fűtéséről vegyestűzelésű kazán gondoskodik radiátoros hőleadókkal.
A kertben dísznövények és termőgyümölcsfák találhatóak.
Bővebb információért hívjon bizalommal!
Tankovics Dóra
+36 30/216-1372
bestofgyor4@gmail. Com
További szolgáltatásaink:
díjmentes, bankfüggetlen hitelügyintézés
értékbecslés
energetikai tanúsítvány
ügyvédi ügyintézés
biztosítás FIX 3% lakáshitelre megvehető
Tetszett ez az eladó Győri jó állapotú 2 szobás családi ház? Hívd fel a hirdetőt most, és tudj meg mindent erről az eladó családi házról! Ha gondolod nézelődj tovább az eladó ház Győr oldal hirdetései között. Ennek az eladó háznak az ára 70000000 Ft és mivel az alapterülete 86 négyzetméter, ezért az átlagos négyzetméterára 813953 HUF/m2.
Az eladó házak menüpontban további hirdetések között is böngészhetsz. Ha van kedved, akkor böngészhetsz a Tankovics Dóra összes hirdetése között, vagy akár a/az Best Of Ingatlan összes hirdetése között is.

