Eladó új építésű ház Győrzámoly
| Kedvencbe | Megosztás | Árfigyelő |
| FIX 3% lakáshitelre megvehető | ||
| 90 900 000 HUF | ||
Ingatlan adatai
- Eladó vagy kiadó:Eladó
- Település:Győrzámoly
- Kategória:Ház
- Alkategória:Családi ház
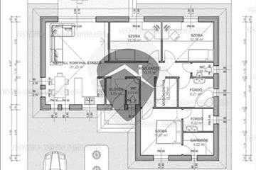
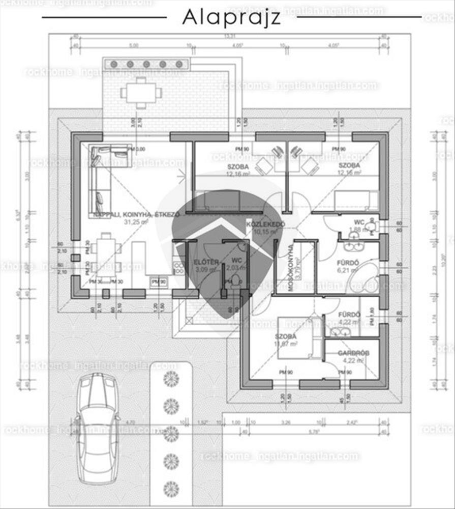
- Alapterület:100 m2
- Telekterület:873 m2
- Csere is:Nem
- Hirdető:Cég
- Élő videón megtekinthető:Nem
- Építés éve:2025
- Szobaszám:4
- Állapot:Új építésű
- Hány szintes az ingatlan:nincs megadva
- Tetőtér:nincs megadva
- Komfortosság:nincs megadva
- Parkolási lehetőség:nincs megadva
- Fűtés:Gáz + alternatív
- Bútorozottság:Bútorozott
- Fényviszony:nincs megadva
- Tájolás:DNY
- Kilátás:nincs megadva
- Internet:nincs megadva
- Akadálymentesített:nincs megadva
- Energiatanúsítvány:nincs megadva
- Villany:nincs megadva
- Víz:nincs megadva
- Gáz:Van
- Csatorna:nincs megadva
- Üzenetküldés
- Hívás

Kolofon-Balogh Noémi
Mondd meg a hirdetőnek, hogy a megveszLAK-on találtad a hirdetést.

Hitel ajánlat
Ingatlan hirdetés leírása
Győr szomszédságában Győrzámolyon, újonnan épülő, igényes kial...
Győr szomszédságában Győrzámolyon, újonnan épülő, igényes kialakítású családi ház leköthető.A nappali + három szobával(vagy akár 4 szobával)rendelkező ingatlan alapterülete nettó 100 m2.
A praktikusan tervezett házban a szobákon kívül tágas és napfényes amerikai konyhás nappali, gardrób, kamra, szélfogó, közlekedő, fürdőszoba, háztartási helyiség és egy külön mellékhelyiség is kialakításra kerül.
Az élhető méretű telek összesen 873 m2-es, mely 30%-ban beépíthető.
A feltüntetett vételár a nettó emelt szintű fűtés kész árat és a telek árát tartalmazza, de igény esetén kulcsra kész befejezésre is van lehetőség!
Komoly érdeklődés esetén a részletes műszaki leírást kérésére e-mailben elküldöm.
A 2021-től érvénybe lépő energetikai szabványnak megfelelő műszaki tartalom és a terasz egyedileg az ügyfél igényeinek alapján kerül kialakításra.
Más az elképzelése? Válassza ki Ön a saját elképzeléseinek megfelelő alaprajzot!
Amennyiben teljesen egyedi tervezést szeretne, az is lehetséges!
A képek látványtervek.
Jól átgondolt tervezés, megfelelő szakmai tudás és háttér garantálja a minőségi otthon megvalósítását!
További kérdés esetén állok rendelkezésére!
Amennyiben megbízható építtetőt szeretne, referenciamunkákkal, minőségi anyagokkal és kivitelezéssel, hívjon bizalommal akár hétvégén is!
Teljes körű ügyintézéssel - ügyvéd, bank - független hiteltanácsadással, biztosítás, csok, babaváró - állunk rendelkezésére! FIX 3% lakáshitelre megvehető

