Eladó újszerű állapotú ház - Hajdúszoboszló
- INGYENES HIRDETÉS FELADÁS
Ingatlan adatai
- Eladó vagy kiadó:Eladó
- Település:Hajdúszoboszló
- Kategória:Ház
- Alkategória:Családi ház
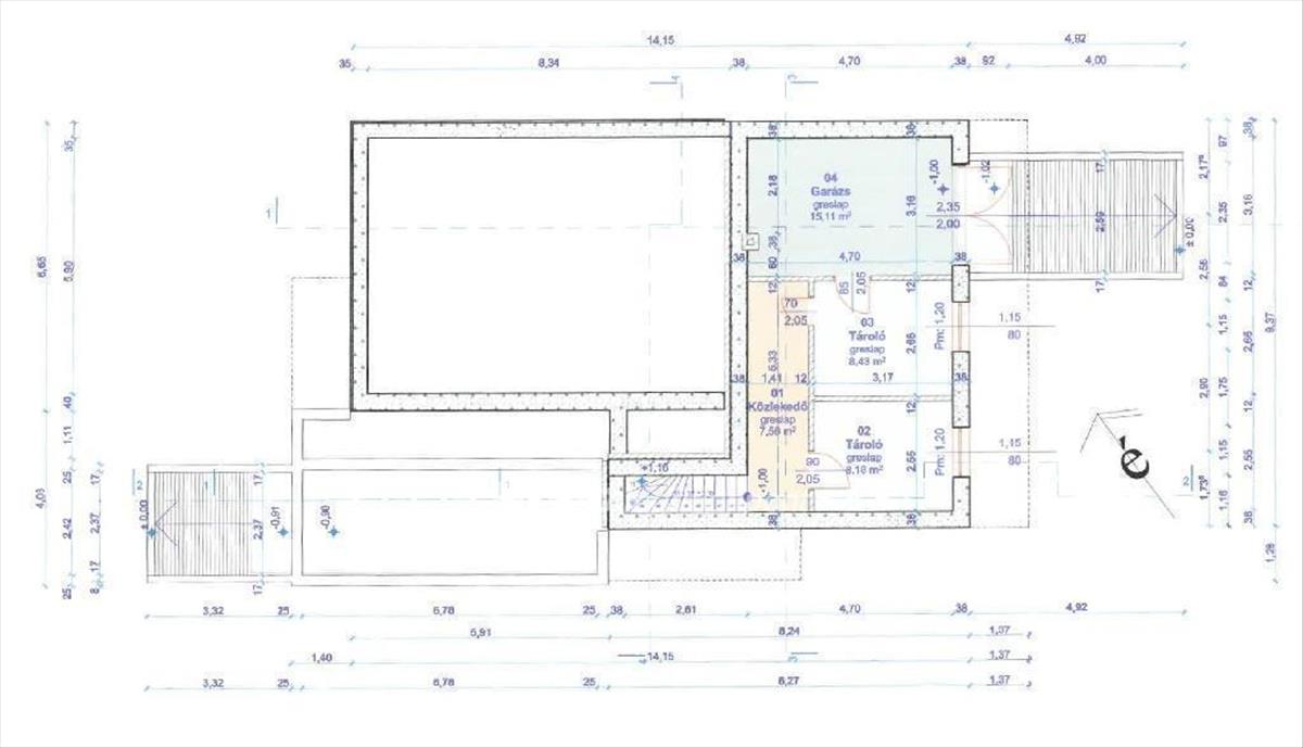
- Alapterület:400 m2
- Telekterület:761 m2
- Csere is:Nem
- Hirdető:Cég
- Élő videón megtekinthető:Nem
- Építés éve:2018
- Szobaszám:12
- Állapot:Újszerű, kitűnő
- Hány szintes az ingatlan:3 szintes
- Tetőtér:nincs megadva
- Komfortosság:nincs megadva
- Pince:nincs megadva
- Parkolási lehetőség:Udvaron
- Fűtés:Gáz (cirko)
- Bútorozottság:nincs megadva
- Fényviszony:Jó
- Tájolás:nincs megadva
- Kilátás:nincs megadva
- Internet:nincs megadva
- Klíma:nincs megadva
- Akadálymentesített:nincs megadva
- Energiatanúsítvány:nincs megadva
- Villany:Van
- Víz:Van
- Gáz:Van
- Csatorna:Van
- Kapcsolatfelvétel

Hódos Gergő
+36-(70)-595-3201
Mondd meg a hirdetőnek, hogy a megveszLAK-on találtad a hirdetést.
Referencia szám: M299950
Hitel ajánlatok
Ingatlan hirdetés leírása
Eladó Ház, Hajdúszoboszló
Megvételre kínálok Hajdúszoboszlón a gyógyfürdő és a Mátyás király sétány közvetlen közelében egy 10 apartmanból és egy teljes értékű lakrészből álló újszerű apartmanházat!
Főbb paraméterek a következőek:
-Az ingatlan 2016-18 között épült téglából
-Hőszigetelt nyílászárókkal, külső homlokzati és födémszigeteléssel a mai elvárásoknak megfelelően, minimális rezsiköltséggel fenntartható
-Telek: 761m2
-A fűtésről mindkét épületben gázkazán gondoskodik puffertartállyal, radiátor hőleadókkal, illetve a saját lakrészben padlófűtéssel is
-A szuterén kivételével mindegyik apartmanban és a lakásban is hűtő- fűtő klíma került beépítésre
-Az ingatlanon 8kW napelemrendszer került elhelyezésre, melynek paraméterei: 24 db Luxor Solar 330w panel + 1 db Fronius Symo inverter.
-Az udvar nagyobb része térkövezett, igényesen parkosított
-Parkolásra a két épület között fedett gépkocsi beálló került kialakításra, térkövezett részen igény szerint 3-4 autó tud parkolni kényelmesen
-Az épület mögött a vendégek számára fedett külső konyha és társalgó hely lett kialakítva
-Az ingatlan újszerű állapotú, mai igényeknek minden téren megfelelő, azonnal üzemeltethető
Az első épületben található egy 92 nm -es, 2 szobás, nagy nappalis lakás, melyet a tulajdonos saját lakrészként hasznosít. a lakrész egy fedett teraszról közelíthető meg, és erkély is tartozik hozzá, mely a nappaliból és a konyhából egyaránt megközelíthető.
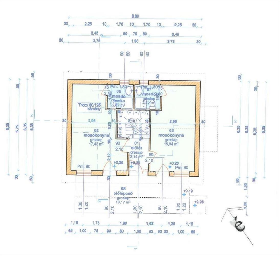
Szuterén szinten egy 40 nm -es apartman került kialakításra, melyben egy szoba, konyha, fürdőszoba, folyosó, valamint egy szauna is található. Ez az épületrész a lakrészből és közvetlenül az udvarról is megközelíthető.
A lakás fölött 4 különálló, egyenként ~20 nm -es apartman található, valamint egy közös étkezőkonyha.
Mindegyik apartmanban helyet kapott konyha és zuhanyzós fürdőszoba.
Az apartmanokhoz erkély, illetve tágas terasz is tartozik.
A hátsó épület 3 szinten, összesen 5 apartmanból áll. a földszinten és az emeleten 2-2, a tetőtérben egy, egyenként szintén ~20 nm -es, szintén konyhával, zuhanyzós fürdőszobával felszerelt apartman található. Itt is minden apartmanhoz tartozik terasz vagy erkély.
Az OTP bankcsoport teljes körű ügyintézéssel áll rendelkezésre az eladók és a vevők részére!
További kérdéseivel, megtekintésre való egyeztetés kapcsán keressen bátran a hét bármely napján! Hitel.hu - Hasonlítsa össze a bankok lakáshitel ajánlatait
Tetszett ez az eladó Hajdúszoboszlói újszerű állapotú 12 szobás családi ház? Hívd fel a hirdetőt most, és tudj meg mindent erről az eladó családi házról! Ha gondolod nézelődj tovább az eladó ház Hajdúszoboszló oldal hirdetései között. Ennek az eladó háznak az ára 269000000 Ft és mivel az alapterülete 400 négyzetméter, ezért az átlagos négyzetméterára 672500 HUF/m2.
Az eladó házak menüpontban további hirdetések között is böngészhetsz. Ha van kedved, akkor böngészhetsz a Hódos Gergő összes hirdetése között, vagy akár a/az OTPip Hajdúszoboszló Bethlen utca 23 - OTP Ingatlanpont Iroda összes hirdetése között is.

