Eladó újszerű állapotú ház - Hatvan
- INGYENES HIRDETÉS FELADÁS
Ingatlan adatai
- Eladó vagy kiadó:Eladó
- Település:Hatvan
- Kategória:Ház
- Alkategória:Családi ház
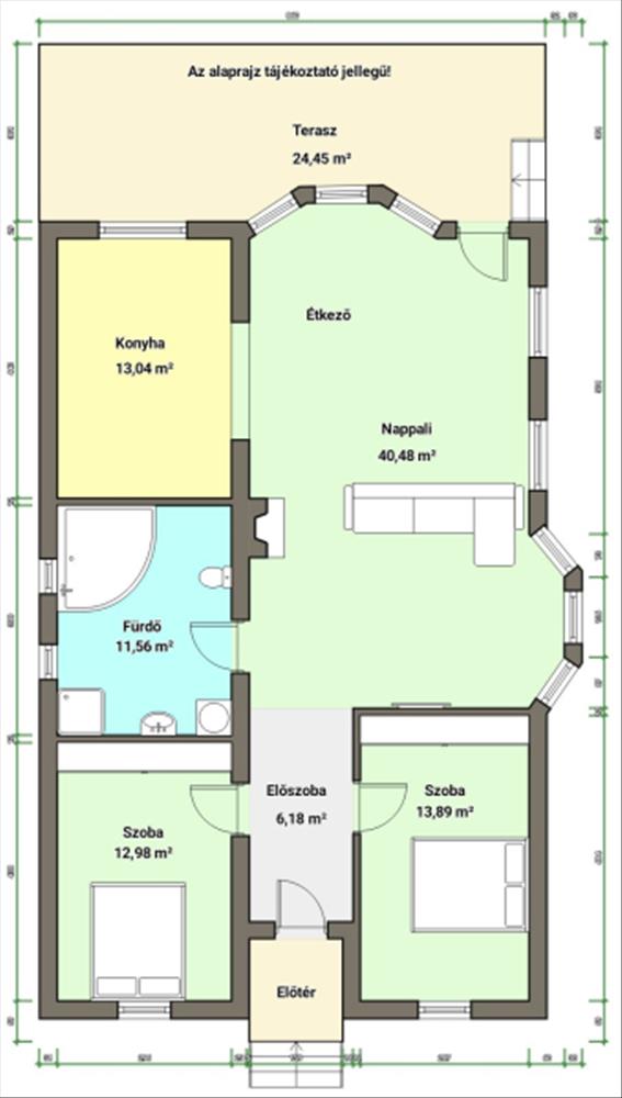
- Alapterület:98 m2
- Telekterület:847 m2
- Csere is:Nem
- Hirdető:Cég
- Élő videón megtekinthető:Nem
- Építés éve:2017
- Szobaszám:3
- Állapot:Újszerű, kitűnő
- Hány szintes az ingatlan:nincs megadva
- Tetőtér:nincs megadva
- Komfortosság:nincs megadva
- Pince:nincs megadva
- Parkolási lehetőség:nincs megadva
- Fűtés:Egyéb
- Bútorozottság:Bútorozott
- Fényviszony:nincs megadva
- Tájolás:DNY
- Kilátás:Utcai
- Internet:nincs megadva
- Klíma:nincs megadva
- Akadálymentesített:nincs megadva
- Energiatanúsítvány:nincs megadva
- Villany:Van
- Víz:nincs megadva
- Gáz:Van
- Csatorna:nincs megadva
- Kapcsolatfelvétel

Horváth Tibor
+36-(70)-467-6871
Mondd meg a hirdetőnek, hogy a megveszLAK-on találtad a hirdetést.
Hitel ajánlatok
Ingatlan hirdetés leírása
Keresed a tökéletes otthont családod számára? Akkor figyelj, m...
Keresed a tökéletes otthont családod számára? Akkor figyelj, mert ezt az ingatlant nem érdemes kihagynod!
Kerekharaszt csendes, barátságos utcájában épült 2017-ben 38-as porotherm téglából + 10 cm-es dryvit hőszigeteléssel ez a kiváló állapotú, használt lakóingatlan, amely minden igényt kielégít. Az ingatlan alapterülete 98 nm , és egy 847 nm -es telken helyezkedik el, így bőven van hely a gyerekeknek játszani vagy a kertészkedésre.
Az ingatlanban 2 db hálószoba található, illetve egy tágas nappali, amely kandallós, tökéletes helyszín lehet a közös családi estékhez. a fürdőszoba közel 12 m2, ezért helyet kapott egy sarokkád, egy zuhanyzó és minden egyéb háztartási gép is elfér kényelmesen. a hátsó terasz pedig a nyári estéken garantálja a kellemes, szabadtéri programokat, ahol barátokkal és családdal élvezheted a szép időt. a fűtés pellet kazánnal megoldott, így mindig meleg és otthonos lesz az ingatlan. a nappaliban egy 5 kw-os hűtő-fűtő klíma is biztosítja a kellemes érzetet. a gázcsonk a telken belül található, igény szerint gázkazán is kialakítható. Az ablakok minőségi fából készültek 3 rétegű üvegezéssel!
A környék kiváló adottságokkal rendelkezik. a közlekedési lehetőségek is kedvezőek: az ingatlan közelében található buszmegálló, amely gyors és kényelmes eljutást biztosít a közeli városokba vagy a fővárosba. Az autóval közlekedők számára pedig könnyen megközelíthető az M3-as autópálya (3 perc), így Budapest kb. 30-35 Perc alatt elérhető.
Ez a tehermentes ingatlan ráadásul Falusi Csok kompatibilis, így ha gyermekes család vagytok, akkor különösen érdemes megfontolnotok ezt a lehetőséget, hiszen 1-2 kisebb ráfordítás utána egy tökéletes újszerű, modern otthonotok lehet, amely kiszolgálja az egész családot hosszú időn keresztül.
Ne habozz, ha kérdéseid vannak, vagy szeretnéd megtekinteni ezt a remek otthont, bátran keress meg! FIX 3% lakáshitelre megvehető
Tetszett ez az eladó Hatvani újszerű állapotú 3 szobás családi ház? Hívd fel a hirdetőt most, és tudj meg mindent erről az eladó családi házról! Ha gondolod nézelődj tovább az eladó ház Hatvan oldal hirdetései között. Ennek az eladó háznak az ára 76000000 Ft és mivel az alapterülete 98 négyzetméter, ezért az átlagos négyzetméterára 775510 HUF/m2.
Az eladó házak menüpontban további hirdetések között is böngészhetsz. Ha van kedved, akkor böngészhetsz a Horváth Tibor összes hirdetése között.

