Eladó átlagos állapotú ház - Hernád
- INGYENES HIRDETÉS FELADÁS
Ingatlan adatai
- Eladó vagy kiadó:Eladó
- Település:Hernád
- Kategória:Ház
- Alkategória:Családi ház
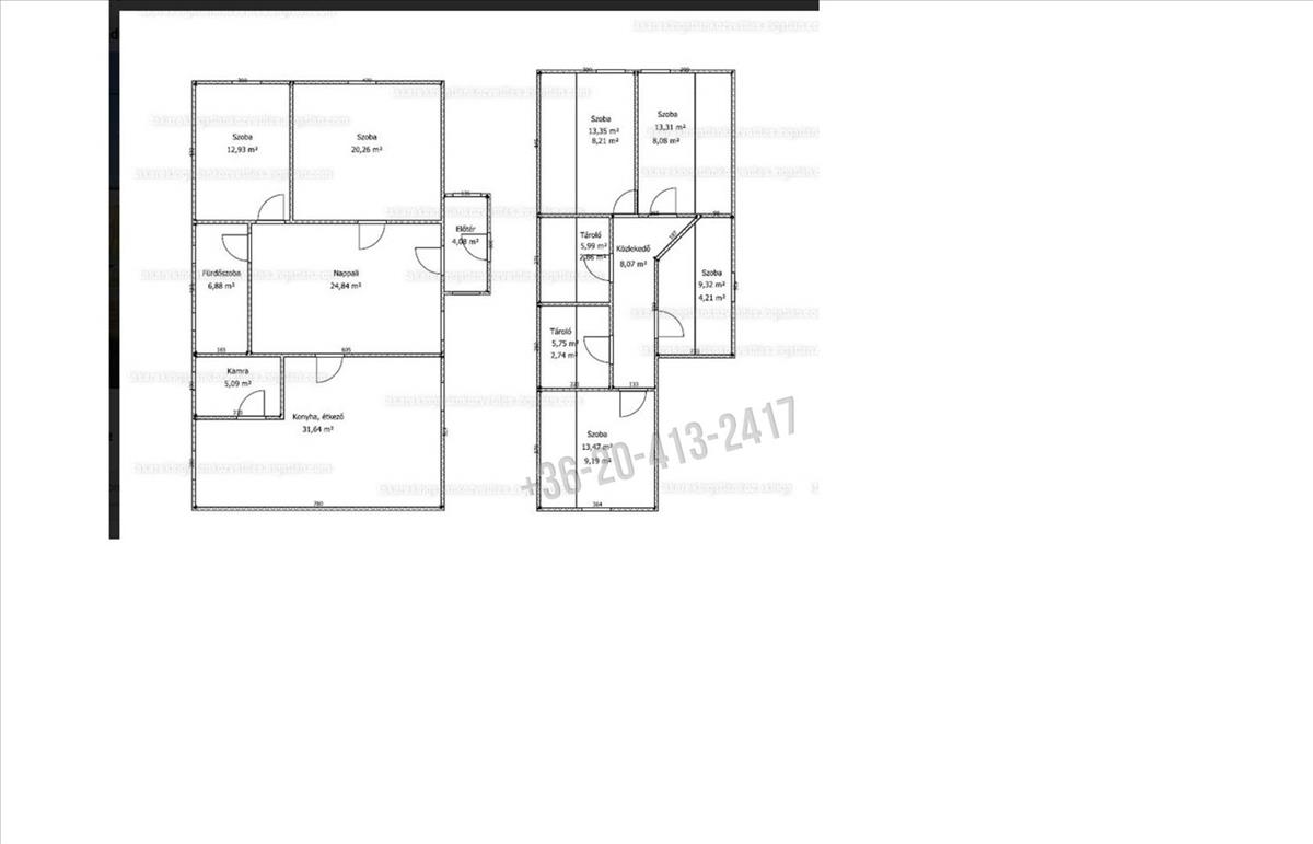
- Alapterület:175 m2
- Telekterület:1438 m2
- Csere is:Nem
- Hirdető:Cég
- Élő videón megtekinthető:Nem
- Építés éve:1980
- Szobaszám:7 + 2 fél
- Állapot:Átlagos állapotú
- Hány szintes az ingatlan:nincs megadva
- Tetőtér:nincs megadva
- Komfortosság:Összkomfortos
- Pince:Nincs
- Parkolási lehetőség:Nincs
- Fűtés:nincs megadva
- Bútorozottság:nincs megadva
- Fényviszony:nincs megadva
- Tájolás:nincs megadva
- Kilátás:nincs megadva
- Internet:nincs megadva
- Klíma:nincs megadva
- Akadálymentesített:nincs megadva
- Energiatanúsítvány:nincs megadva
- Villany:Van
- Víz:Van
- Gáz:Nincs
- Csatorna:Van
- Kapcsolatfelvétel

Borbély Hajnalka
+36-(20)-413-2417
Mondd meg a hirdetőnek, hogy a megveszLAK-on találtad a hirdetést.
Hitel ajánlatok
Ingatlan hirdetés leírása
Eladó Családi ház, Hernád, 175nm, 31500000 Ft
Hernádon, 175m2-es Tégla építésű befejezésre váró Családi ház, 1438m2-es telekkel eladó!
Az ingatlan Beton alapra, tégla, ytong, falazatból épült. Tetőszerkezete, stabil. Külső falazata, vakolt szigeteléssel nem rendelkezik. Területe részben körbekerített, hátsó telek része egy erdőre néz. Igazán csendes nyugodt környéken található. Belső terei, befejezésre várnak, így olyan ingatlan lehet az Öné, amit saját magának alakíthat, igényeinek megfelelően fejezhet be. Fűtés jelenleg nincs kialakítva, fürdőszoba, és konyha helyiségek is befejezésre várnak. Födém része beton gerendás, emeleti része lakó résznek lett kialakítva. a fölszinti rész: 101, 64m2 az emeleti rész: 69, 26m2. Közmű ellátottsága, gáz nincs bevezetve, Víz és csatorna, valamint a villany bevezetésre került. Villanyhálózat cseréje, részlegesen megtörtént, illetve 3x20 Amper, éjszakai áram, „H”-tarifa, Leadó, valamint ipari áram kiépítése megtörtént. Fűtésére több alternatíva ad lehetőséget. Rendelkezik egy pellet-fa tüzelésű kazánnal, illetve igény esetén elektromos, vagy napelemes fűtés is kialakítható. Vízvezeték rendszere is új. Az ingatlan befejezésre vár, jelenleg nem lakható, terei nagyok, kényelmes otthont lehet belőle kialakítani.
Elhelyezkedését tekintve, kiváló utcában található, vonatállomás könnyen elérhető. Orvosi rendelő, és Hernád központja, 10-15 perc sétával megközelíthető. Csendes nyugodt utca, átmenő forgalom nincs. Telke, sík téglalap alakú, a hátsó részen már erdő található, így igazán szemet gyönyörködtető részen helyezkedik el. Az Ingatlan telekkönyvileg rendezett, a térkép szelvényre fel van rajzolva, a tulajdoni lap alapján az ingatlan tehermentes. Besorolása, Kivett Lakóház, udvar, és gazdasági épület
Hívjon bizalommal, amennyiben egy olyan házba költözne, amit magának álmodhat meg. FIX 3% lakáshitelre megvehető

