Eladó ház - Hernádkak
- INGYENES HIRDETÉS FELADÁS
Ingatlan adatai
- Eladó vagy kiadó:Eladó
- Település:Hernádkak
- Kategória:Ház
- Alkategória:Családi ház
- Alapterület:105 m2
- Telekterület:897 m2
- Csere is:Nem
- Hirdető:Cég
- Élő videón megtekinthető:Nem
- Építés éve:2016
- Szobaszám:2 + 3 fél
- Állapot:nincs megadva
- Hány szintes az ingatlan:nincs megadva
- Tetőtér:nincs megadva
- Komfortosság:nincs megadva
- Pince:nincs megadva
- Parkolási lehetőség:nincs megadva
- Fűtés:nincs megadva
- Bútorozottság:nincs megadva
- Fényviszony:nincs megadva
- Tájolás:nincs megadva
- Kilátás:nincs megadva
- Internet:nincs megadva
- Klíma:Van
- Akadálymentesített:nincs megadva
- Energiatanúsítvány:nincs megadva
- Villany:nincs megadva
- Víz:nincs megadva
- Gáz:nincs megadva
- Csatorna:nincs megadva
- Kapcsolatfelvétel

Kerek Edina
+36307795042
Mondd meg a hirdetőnek, hogy a megveszLAK-on találtad a hirdetést.
Hitel ajánlatok
Ingatlan hirdetés leírása
„Mindent is” kategóriás, 105 m²-es családi ház eladó Hernádkak...
„Mindent is” kategóriás, 105 m²-es családi ház eladó Hernádkakon!
Hernádkak csendes, rendezett utcájában, kiváló szomszédok mellett kínálok megvételre egy 105 m²-es, 2016-ban épült, téglából készült családi házat, amely valóban minden igényt kielégít.
Az ingatlan két ütemben épült: egy korábban megépített nyaraló rész kibővítésével nyerte el jelenlegi, tágas és praktikus kialakítását. Az eredmény egy jól átgondolt, élhető, kényelmes otthon.
Az épület masszív, cseréptetővel fedett, homlokzata 10 cm-es nikecel szigeteléssel ellátott. a műanyag nyílászárók hozzájárulnak az energiahatékony működéshez.
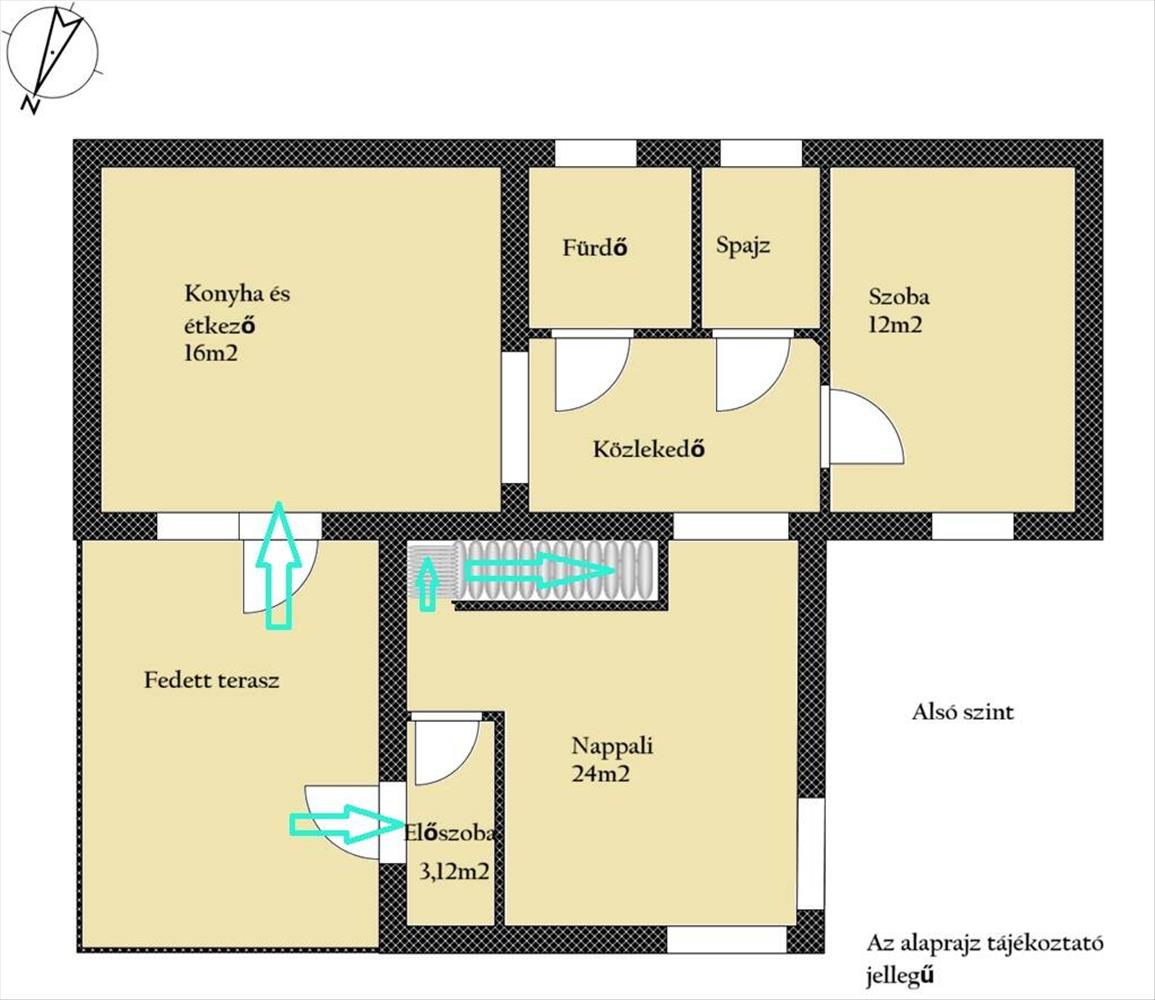
Helyiségek elosztása
Felső szint:
3 külön nyíló szoba
Dolgozórész
Fürdőszoba
Alsó szint:
Nappali
1 szoba
Nagy méretű konyha
Fürdőszoba
Spájz
Előszoba
Fűtés és komfort
Kondenzációs gázkazán
Vegyes tüzelésű kazán
2 x 600 literes puffertartály
1 db klíma a nyári kellemes hőmérsékletért
Riasztórendszer a biztonság érdekében
Udvar, ahol élmény az élet
A térkövezett, szépen rendezett udvar igazi közösségi tér.
40 M²-es hangulatos filagória, ahol a jelenlegi tulajdonosok is családi összejöveteleket, ünnepségeket tartanak.
Felszereltsége:
Kemence
Sparhelt – hagyományos sütés-főzés élményéhez
Továbbá:
Egy autó számára alkalmas garázs
Műhelynek vagy irodának alkalmas helyiség
Külön tároló
Elhelyezkedés és közlekedés
Hernádkak elhelyezkedése rendkívül kedvező:
Gyors, négy sávos úton megközelíthető Miskolc és Szerencs irányába
Kiváló tömegközlekedés
Autópálya felhajtó néhány perces autóúttal elérhető
Nyugodt, családbarát környezet, mégis kiváló kapcsolattal a város felé.
Ez az ingatlan nem csupán egy ház, hanem egy jól felszerelt, átgondolt, szerethető otthon, amely új lakóit várja.
Hitelügyintézésben is segítünk!
Banksemleges hitelügyintézőnk készséggel áll rendelkezésre. FIX 3% lakáshitelre megvehető

