Eladó jó állapotú ház - Igrici
- INGYENES HIRDETÉS FELADÁS
Ingatlan adatai
- Eladó vagy kiadó:Eladó
- Település:Igrici
- Kategória:Ház
- Alkategória:Családi ház
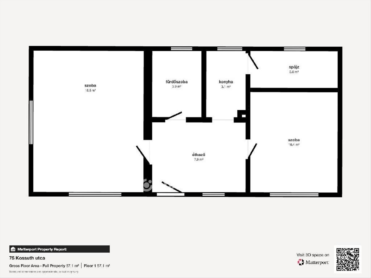
- Alapterület:54 m2
- Telekterület:444 m2
- Csere is:Nem
- Hirdető:Cég
- Élő videón megtekinthető:Nem
- Építés éve:1996
- Szobaszám:2
- Állapot:Jó állapotú
- Hány szintes az ingatlan:Földszintes
- Tetőtér:nincs megadva
- Komfortosság:nincs megadva
- Pince:nincs megadva
- Parkolási lehetőség:Udvaron
- Fűtés:Gáz (konvektor)
- Bútorozottság:nincs megadva
- Fényviszony:Napfényes
- Tájolás:nincs megadva
- Kilátás:nincs megadva
- Internet:nincs megadva
- Klíma:nincs megadva
- Akadálymentesített:nincs megadva
- Energiatanúsítvány:nincs megadva
- Villany:nincs megadva
- Víz:nincs megadva
- Gáz:nincs megadva
- Csatorna:nincs megadva
- Kapcsolatfelvétel

Nagy István György
+36-(20)-449-3075
Mondd meg a hirdetőnek, hogy a megveszLAK-on találtad a hirdetést.
Referencia szám: M320553
Hitel ajánlatok
Ingatlan hirdetés leírása
Eladó Ház, Igrici, Eladó jó állapotú ház - Igrici
Eladó igriciben jó állapotú kétszobás ház! Eladó Igriciben egy 53 nm -es kétszobás ház, 444 nm -es telken! a ház 1996-ban épült és 2025-ben részleges felújítás történt. Az étkezőben új ablak és burkolat, új bejárati ajtó, új csaptelepek. Fűtése gázkonvektorokkal, illetve a kisebbik szobában elektromos fűtéssel megoldott. a használati meleg víz hőtárolós villanybojlerből vételezhető. a telken több melléképület és egy gyűrűs kút is található. Igazi lehetőség mindazoknak, akik vidéken egy olcsó, költözhető állapotú és könnyen rendben tartható portával rendelkező házat keresnek.
Várom hívását, hétvégén is!
OTP Banki hátterünknek köszönhetően finanszírozási igényekben (pl. Otthon Start Hitelprogram, Babaváró, Falusi csok, CSOK Plusz, Lakáshitel, Személyi kölcsön stb. ), Illetve biztosítások tekintetében is díjmentesen, soron kívüli ügyintézéssel segítem ügyfeleim!
Referenciaszám: M320553
Virtuális séta: https://my. Matterport. Com/show/? M=d0bwuwnyzz74di347n2cit9sd&views=0&mls=1 FIX 3% lakáshitelre megvehető
Tetszett ez az eladó Igrici jó állapotú 2 szobás családi ház? Hívd fel a hirdetőt most, és tudj meg mindent erről az eladó családi házról! Ha gondolod nézelődj tovább az eladó ház Igrici oldal hirdetései között. Ennek az eladó háznak az ára 12900000 Ft és mivel az alapterülete 54 négyzetméter, ezért az átlagos négyzetméterára 238889 HUF/m2.
Az eladó házak menüpontban további hirdetések között is böngészhetsz. Ha van kedved, akkor böngészhetsz a Nagy István György összes hirdetése között, vagy akár a/az OTPip Miskolc Szemere Bertalan utca 20 - OTP Ingatlanpont Iroda összes hirdetése között is.

