- >>
- eladó ingatlanok
- >>
- eladó ház
- >>
- eladó ház Ináncs
- >>
Eladó felújítandó ház - Ináncs
| | |||
| Kedvencnek jelölöm | Elküldöm emailben | Megosztás | Szavazás |
| FIX 3% lakáshitelre megvehető | |||
| 11 500 000 HUF | |||
Ingatlan adatai
- Eladó vagy kiadó:Eladó
- Település:Ináncs
- Kategória:Ház
- Alkategória:Családi ház
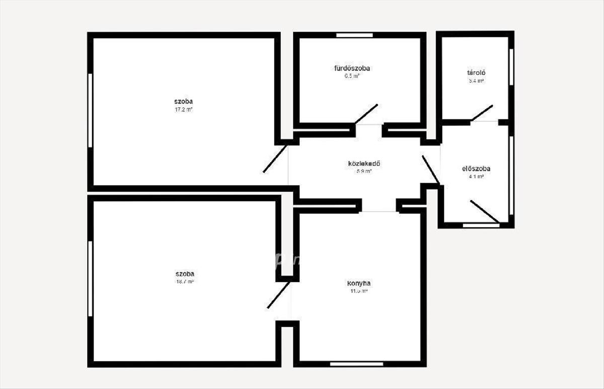
- Alapterület:67 m2
- Telekterület:1407 m2
- Csere is:Nem
- Hirdető:Cég
- Élő videón megtekinthető:Nem
- Építés éve:1960
- Szobaszám:2
- Állapot:Felújítandó
- Hány szintes az ingatlan:Földszintes
- Tetőtér:nincs megadva
- Komfortosság:nincs megadva
- Parkolási lehetőség:Udvaron
- Fűtés:Gáz (cirko)
- Bútorozottság:nincs megadva
- Fényviszony:Jó
- Tájolás:nincs megadva
- Kilátás:nincs megadva
- Internet:nincs megadva
- Akadálymentesített:nincs megadva
- Energiatanúsítvány:nincs megadva
- Villany:Telken belül
- Víz:Telken belül
- Gáz:Telken belül
- Csatorna:nincs megadva
- Üzenetküldés
- Hívás

Piskóti Tibor Lajos
Mondd meg a hirdetőnek, hogy a megveszLAK-on találtad a hirdetést.
Referencia szám: M300833

Hitel ajánlat
Ingatlan hirdetés leírása
Eladó Ház, Ináncs, Eladó felújítandó ház - Ináncs
Eladó Ináncs községben 67 m2 családi ház 1403 m2 telekkel jó lakókörnyezetben. Vasútállomás, buszmegálló 300 m-re, 3-as főút 1 km re található. Az ingatlan helyiségei:2 szoba 1 konyha, 1 előszoba, 1 fürdőszoba, 1 tároló. a faluban orvosi rendelő, fogorvos, általános iskola, bölcsöde, óvoda, 3 élelmiszerbolt található. a ház felújítandó. Felújítás esetén megbízható kivitelezőt tudok ajánlani. Ingatlanirodánk teljes banki háttérrel díjmentes ügyintézéssel támogatja az ingatlan megvásárlását. Hívása során hivatkozzon az alábbi referenciaszámra : M300833Referencia szám: m300833 FIX 3% lakáshitelre megvehető

