Eladó jó állapotú ház - Inárcs
- INGYENES HIRDETÉS FELADÁS
Ingatlan adatai
- Eladó vagy kiadó:Eladó
- Település:Inárcs
- Kategória:Ház
- Alkategória:Családi ház
- Alapterület:108 m2
- Telekterület:742 m2
- Csere is:Nem
- Hirdető:Cég
- Élő videón megtekinthető:Nem
- Építés éve:2000
- Szobaszám:4
- Állapot:Jó állapotú
- Hány szintes az ingatlan:2 szintes
- Tetőtér:Beépíthető
- Komfortosság:nincs megadva
- Pince:nincs megadva
- Parkolási lehetőség:nincs megadva
- Fűtés:Gáz + alternatív
- Bútorozottság:nincs megadva
- Fényviszony:Közepes
- Tájolás:DNY
- Kilátás:nincs megadva
- Internet:nincs megadva
- Klíma:nincs megadva
- Akadálymentesített:Nem akadálymentesített
- Energiatanúsítvány:nincs megadva
- Villany:Van
- Víz:nincs megadva
- Gáz:Van
- Csatorna:Van
- Kapcsolatfelvétel
Kecskés Zoltán
+36-(70)-772-2430
Mondd meg a hirdetőnek, hogy a megveszLAK-on találtad a hirdetést.
Hitel ajánlatok
Ingatlan hirdetés leírása
Inárcs nagyközségben kínálok megvételre egy kiváló lehetőségek...
Inárcs nagyközségben kínálok megvételre egy kiváló lehetőségeket rejtő, úgynevezett „ráckevei gyorsházat”, amely szerkezetében a panelépítéshez hasonló, előregyártott elemekből készült.
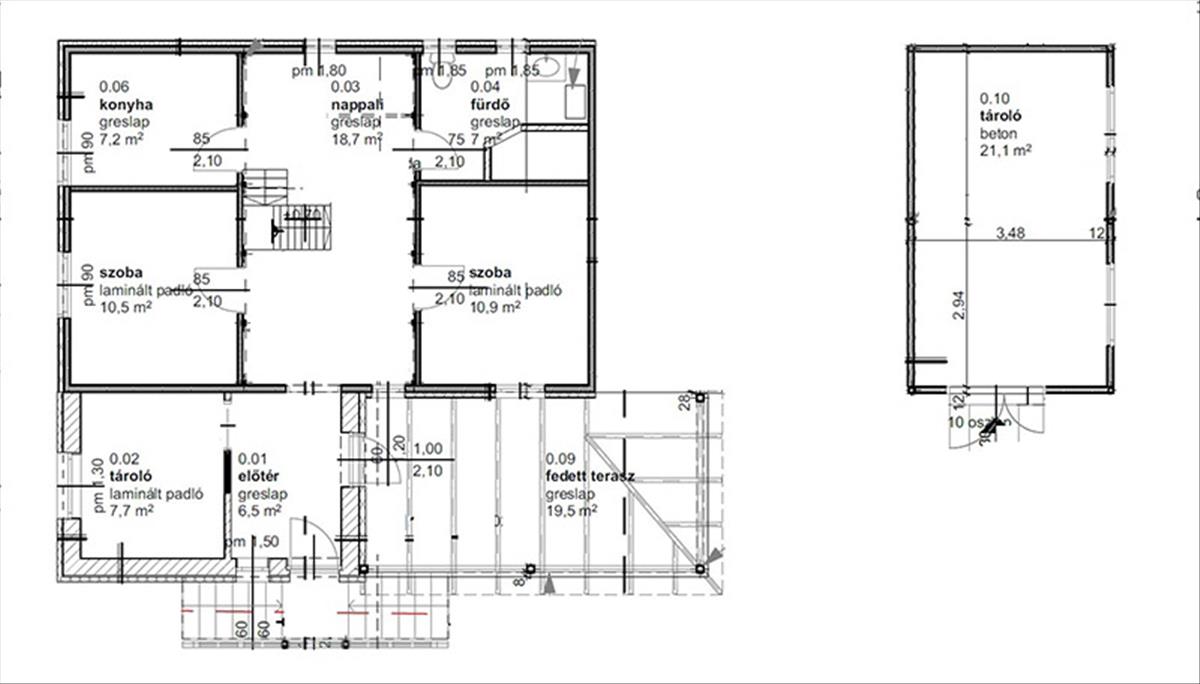
Az ingatlan egy 742 nm -es telken helyezkedik el, nyugodt, élhető környezetben. a ház földszinti alapterülete 68, 5 nm , a tetőtérben pedig további 40 nm hasznos tér került kialakításra, így ideális családi otthon 4 szobával.
Az épület külső falazata már 10 cm grafitos hőszigeteléssel részben ellátott, ami kedvező energiahatékonyságot biztosít a későbbiekben. a közművek tekintetében teljes az ellátottság, az ingatlan összközműves. Nyílászárói 2 éve cserélve lettek. Fűtése gázcirkó, radiátorokkal, illetve klíma. a hasznos alapterület egy tágas fedett terasszal van kibővítve. Az ingatlan telekkönyvileg rendezve van, tulajdoni lapján teher nincs bejegyezve. Az épület tervrajzokkal és emi engedéllyel rendelkezik.
A ház jelenleg befejezetlen állapotban van, ami lehetőséget ad arra, hogy az új tulajdonos saját elképzelései szerint alakítsa ki a belső tereket. Ideális választás mindazoknak, akik nem szeretnének kompromisszumot kötni egy kész ingatlan adottságaival kapcsolatban.
Főbb jellemzők:
•„ráckevei” (előregyártott, panel jellegű) építési technológia
•68, 5 nm földszint (Nappali, 2 szoba, konyha, fürdő, tároló + 40 nm tetőtér (2 szoba)
•742 nm telek
•10 cm grafitos hőszigetelés
•összközműves
•befejezetlen állapot – saját igényre alakítható
Amennyiben érdekes lehet önnek ez a családi ház, kérem, keressen a megadott elérhetőségen. FIX 3% lakáshitelre megvehető
Tetszett ez az eladó Inárcsi jó állapotú 4 szobás családi ház? Hívd fel a hirdetőt most, és tudj meg mindent erről az eladó családi házról! Ha gondolod nézelődj tovább az eladó ház Inárcs oldal hirdetései között. Ennek az eladó háznak az ára 47000000 Ft és mivel az alapterülete 108 négyzetméter, ezért az átlagos négyzetméterára 435185 HUF/m2.
Az eladó házak menüpontban további hirdetések között is böngészhetsz. Ha van kedved, akkor böngészhetsz a Kecskés Zoltán összes hirdetése között, vagy akár a/az Nagy Ingatlan összes hirdetése között is.

