Eladó átlagos állapotú ház - Kálló
- INGYENES HIRDETÉS FELADÁS
Ingatlan adatai
- Eladó vagy kiadó:Eladó
- Település:Kálló
- Kategória:Ház
- Alkategória:Családi ház
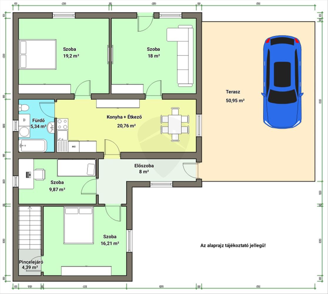
- Alapterület:101 m2
- Telekterület:998 m2
- Csere is:Nem
- Hirdető:Cég
- Élő videón megtekinthető:Nem
- Építés éve:1970
- Szobaszám:3 + 1 fél
- Állapot:Átlagos állapotú
- Hány szintes az ingatlan:nincs megadva
- Tetőtér:nincs megadva
- Komfortosság:nincs megadva
- Pince:nincs megadva
- Parkolási lehetőség:nincs megadva
- Fűtés:Gáz (konvektor)
- Bútorozottság:nincs megadva
- Fényviszony:nincs megadva
- Tájolás:DK
- Kilátás:Utcai
- Internet:nincs megadva
- Klíma:nincs megadva
- Akadálymentesített:nincs megadva
- Energiatanúsítvány:nincs megadva
- Villany:Van
- Víz:nincs megadva
- Gáz:Van
- Csatorna:nincs megadva
- Kapcsolatfelvétel

Horváth Tibor
+36-(70)-467-6871
Mondd meg a hirdetőnek, hogy a megveszLAK-on találtad a hirdetést.
Hitel ajánlatok
Ingatlan hirdetés leírása
Kálló csendes részén mégis közel a központhoz kínáljuk eladásr...
Kálló csendes részén mégis közel a központhoz kínáljuk eladásra ezt a 101 nm-es, részben felújított lakóingatlant, amely tökéletes választás lehet családosok számára. Az ingatlan szerkezetileg jó állapotú, de rengeteg lehetőséget rejt magában, hogy a saját ízlésed szerint alakítsd át. a három tágas szobával és egy félszobával, valamint egy fürdőszobával a család minden tagjának kényelmes teret biztosít.
A 998 nm-es telek lehetőséget ad a szabadban való pihenésre, a gyerekek biztonságos játékára, vagy akár egy kis kert kialakítására is. Az fedett udvari beálló és a garázs férőhelye biztosítja, hogy autóddal mindig kényelmesen parkolj.
A gázkonvektoros fűtés + 1 éves vegyestüzelésű kazán és a légkondicionáló rendszer gondoskodik arról, hogy az ingatlanban mindig kellemes hőmérséklet legyen, bármilyen évszakban. a ház alatt száraz pince található.
A környék előnyei között említést érdemel a központi elhelyezkedés, amely lehetővé teszi, hogy könnyedén elérd a szükséges szolgáltatásokat, boltokat és iskolákat. a tömegközlekedési lehetőségek is kedvezőek: a helyi buszjáratok gyorsan elérhetővé teszik a közeli településeket, míg autóval a főbb utak is könnyen megközelíthetők.
Ez az ingatlan tehermentes, ha érdekel a lehetőség, hogy saját otthonod legyen egy csendes, mégis központi elhelyezkedésű környéken, ne habozz, keress bizalommal! FIX 3% lakáshitelre megvehető

