Eladó jó állapotú ház - Kálmánháza
- INGYENES HIRDETÉS FELADÁS
Ingatlan adatai
- Eladó vagy kiadó:Eladó
- Település:Kálmánháza
- Kategória:Ház
- Alkategória:Családi ház
- Alapterület:151 m2
- Telekterület:1591 m2
- Csere is:Nem
- Hirdető:Cég
- Élő videón megtekinthető:Nem
- Építés éve:1988
- Szobaszám:3 + 1 fél
- Állapot:Jó állapotú
- Hány szintes az ingatlan:2 szintes
- Tetőtér:nincs megadva
- Komfortosság:nincs megadva
- Pince:nincs megadva
- Parkolási lehetőség:Udvaron
- Fűtés:Gáz (cirko)
- Bútorozottság:nincs megadva
- Fényviszony:Napfényes
- Tájolás:nincs megadva
- Kilátás:nincs megadva
- Internet:nincs megadva
- Klíma:Van
- Akadálymentesített:nincs megadva
- Energiatanúsítvány:nincs megadva
- Villany:nincs megadva
- Víz:nincs megadva
- Gáz:nincs megadva
- Csatorna:nincs megadva
- Kapcsolatfelvétel

Szücs-Hajdú Angelika
+36-(70)-262-4299
Mondd meg a hirdetőnek, hogy a megveszLAK-on találtad a hirdetést.
Referencia szám: M308022
Hitel ajánlatok
Ingatlan hirdetés leírása
Eladó Ház, Kálmánháza
Kiváló állapotú, duplakomfortos, napelemes családi ház eladó Kálmánházán - gazdálkodásra, vállalkozásra és nagycsaládosoknak is tökéletes választás!
Eladásra kínálom ezt a szigetelt, korszerű és rendkívül jól felszerelt családi házat, amely egyaránt ideális állandó lakhatásra, többgenerációs életformára, vagy akár gazdasági, vállalkozási célokra is.
A csendes, jól megközelíthető környéken található ingatlan nemcsak otthonként, hanem lehetőségként is megállja a helyét.
Főbb jellemzők:
Telek mérete: 1591 nm szépen karbantartott, gondozott udvarral.
Lakóház: 151 nm szigetelt, jó állapotú.
Duplakomfortos kialakítás, 3 fürdőszoba, kényelmes belső elrendezés.
Fűtés: gázkazán és vegyestüzelésű kazán egyaránt rendelkezésre áll.
Napelemes rendszer -alacsony fenntartási költségek önfenntartó ház.
4 Db hűtő-fűtő klímák.
Garázs és 60 nm-es, több helységes száraz pince.
Kerekes kút - öntözéshez, gazdasági használatra ideális.
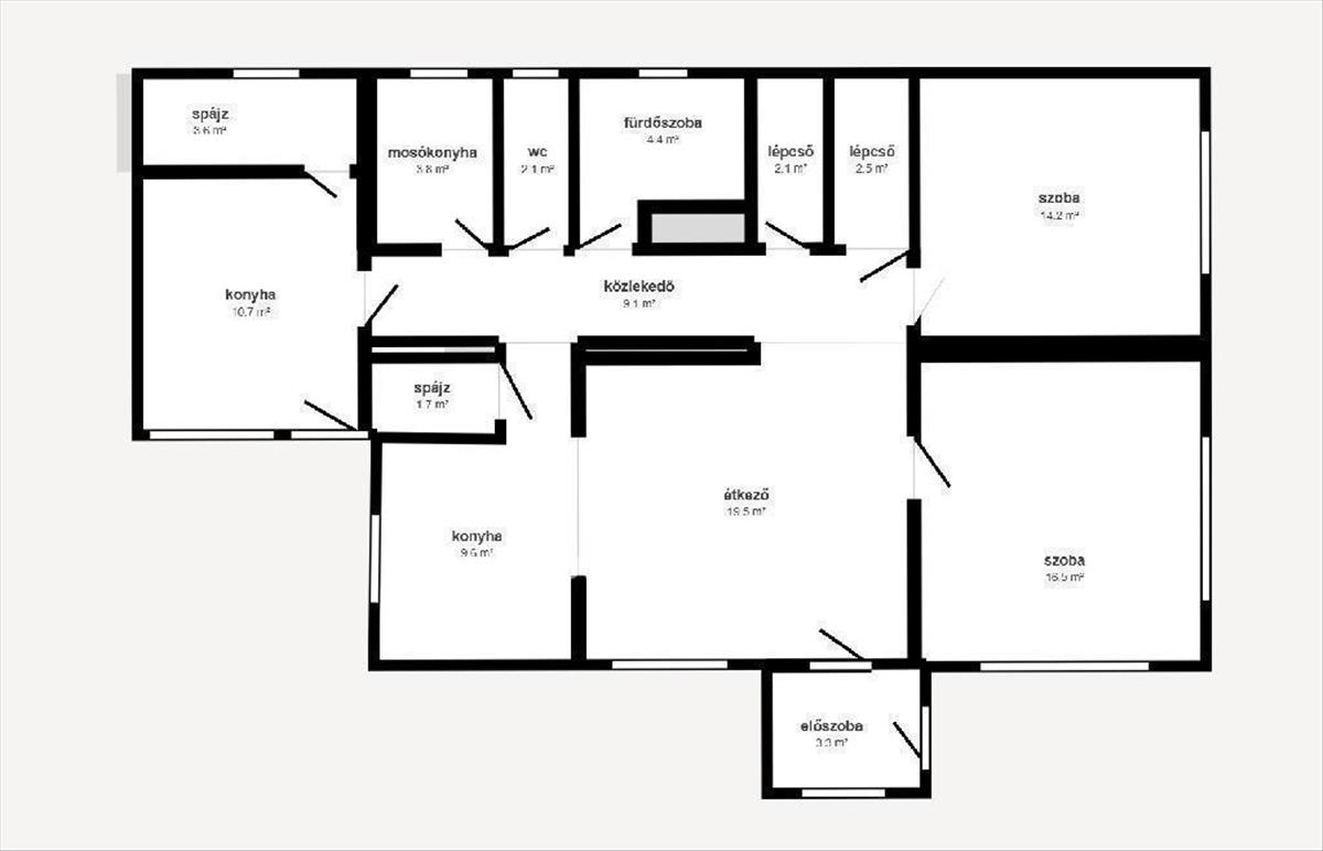
Belső elrendezés:
Földszint: nappali, konyha, 2 szoba, fürdőszoba és külön mosókonyha. Lejárat a pincébe, illetve feljárat az emeletre.
Emelet: 2 különnyíló hálószoba, gardróbszoba, fürdőszoba.
Gazdálkodásra és vállalkozásra alkalmas melléképületek:
Hűtőház - kiváló kereskedelmi vagy háztáji célokra, Füstölő - házi húsfeldolgozáshoz.
Több melléképület, melyek állattartásra alkalmas állapotban.
Óriási, könnyűszerkezetes tárolócsarnok - akár traktor vagy nagyobb mezőgazdasági gépek elhelyezésére is megfelelő.
Kinek ajánlom?
Olyan vevőnek, aki a kényelmet, a praktikumot és a gazdasági lehetőségeket egyszerre keresi. Nagycsaládosoknak vagy több generáció együttélésére. Gazdálkodóknak, vállalkozóknak. Akik egy minden szempontból jól felszerelt, önellátásra is alkalmas otthont keresnek.
Ez az ingatlan többet nyújt, mint egy egyszerű otthon - valódi érték, hosszú távú lehetőségekkel!
Hívjon bizalommal vagy írjon üzenetet a megtekintéshez!
OTP Ingatlanpont - megbízhat bennünk.
OTP Banki hátterünknek köszönhetően finanszírozási igényekben (pl. Babaváró, Falusi csok, CSOK Plusz, Lakáshitel, Személyi kölcsön stb. ), Illetve biztosítások tekintetében is díjmentesen, soron kívüli ügyintézéssel segítem ügyfeleim! Referenciaszám: M308022
72000000 Ft
Referencia szám: m308022 FIX 3% lakáshitelre megvehető

